







3 bedroom Flat to rent, Bull Green, Halifax, West Yorkshire, HX1
Available Unfurnished, from 06/09/2026
Features and Description
- Penthouse Apartment
- Three Bedrooms
- Available Early November
- Recently Renovated
- Three Piece Bathroom
- Town Centre Location
- EPC Rating E
- Council Tax Band C
Reeds Rains is delighted to welcome back to the market this superb THREE BEDROOM penthouse apartment situated only a stones throw away from Halifax town centre. Available from the beginning of November onwards, this incredibly spacious apartment would make a perfect home for any professional or couple seeking space for themselves as well as guests or a small or growing family seeking accommodation close to the town centre providing a very short commute to your place of work. There are excellent public transport routes available right on your doorstep with the bus and train stations only a brief 10 minute walk away. Briefly comprising of three bedrooms comprising of one generous double and two compact singles, a large open plan lounge space leading into a well appointed kitchen as well as a three piece suite, family bathroom. Externally, the property benefits from secure communal entry and nearby on-street permit parking applicable through the council. It's not often you come across such a well proportioned, 3 bedroom apartment with scope to make it your own in the town centre so contact the office now to book your viewing appointment and avoid missing out on this gem! EPC Rating - E Council Tax Band - C
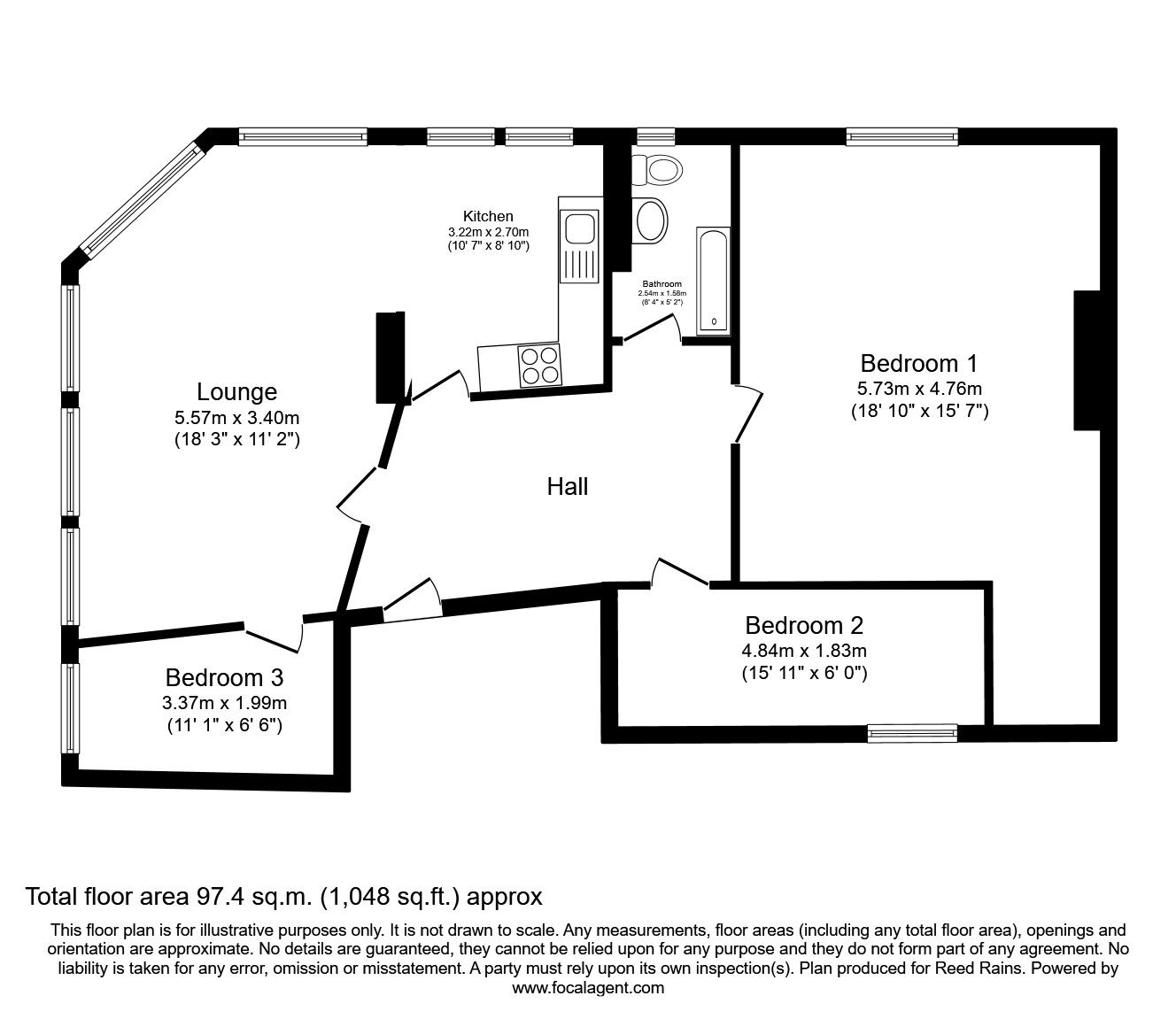
Lounge
18'3" x 11'2" (5.56m x 3.40m)
A generous sized lounge with large windows to three aspects giving views over Halifax. Open plan leading to the kitchen complete with ceiling light, electric wall heater and neutral décor throughout.
Kitchen
10'7" x 8'10" (3.23m x 2.70m)
Fitted with wall and base units, work surfaces to two sides and an inset sink and drainer unit. Integral electric oven and hob with an extractor fan over, integrated washing machine and space for an under counter fridge. Windows to the side and ceiling light.
Bedroom 1
18'10" x 15'7" (5.74m x 4.75m)
A generous, carpeted double bedroom with windows to the rear, electric wall mounted heater and ceiling light.
Bedroom 2
18'10" x 15'7" (5.74m x 4.75m)
Carpeted single bedroom with skylight window, ceiling light and wall mounted electric heater.
Bedroom 3
11'1" x 6'6" (3.38m x 1.98m)
Carpeted single bedroom with skylight window, ceiling light and wall mounted electric heater.
Bathroom
8'4" x 5'2" (2.54m x 1.57m)
A three piece bathroom with a panelled bath and an electric shower over, wash basin and a WC.
IMPORTANT NOTE TO POTENTIAL RENTERS:
We endeavour to make our particulars accurate and reliable, however, they do not constitute or form part of an offer or any contract and none is to be relied upon as statements of representation or fact. The services, systems and appliances listed in this specification have not been tested by us and no guarantee as to their operating ability or efficiency is given. All photographs and measurements have been taken as a guide only and are not precise. Floor plans where included are not to scale and accuracy is not guaranteed. If you require clarification or further information on any points, please contact us, especially if you are travelling some distance to view.
All properties are available for a minimum of six months, with the exception of short term accommodation. A security deposit of at least one month’s rent is required. Rent is to be paid one month in advance. It is the tenant’s responsibility to insure any personal possessions. Payment of all utilities including water rates or metered supply and Council Tax is the responsibility of the tenant in every case.
Client Money Protection is provided by Propertymark. Redress through The Property Ombudsman Scheme.
Bull Green, Halifax, West Yorkshire, HX1








The pin shows the exact address of the property
Energy Efficiency Rating
Very energy efficient - lower running costs
Not energy efficient - higher running costs
Current
39Potential
61CO2 Rating
Very energy efficient - lower running costs
Not energy efficient - higher running costs