This calculator provides a guide to the amount of residential stamp duty you may pay and does not guarantee this will be the actual cost. This calculation is based on the Stamp Duty Land Tax Rates for residential properties purchased from 23rd September 2022 and second homes from 31st October 2024. For more information on Stamp Duty Land Tax, click here.




































3 bedroom Detached Bungalow for sale, Brunswick Road, Bangor, County Down, BT20
Features and Description
- Detached bungalow on a generous site
- Three well-proportioned bedrooms
- Bright lounge / dining room
- Kitchen leading to conservatory with garden views
- Bathroom with coloured suite plus separate cloakroom
- Attached garage and carport with ample driveway parking
- Expansive rear garden with lawns and mature trees
- Private and tranquil outdoor setting
- Convenient to schools, churches, shops, and town centre
- Excellent bus and rail links for commuting
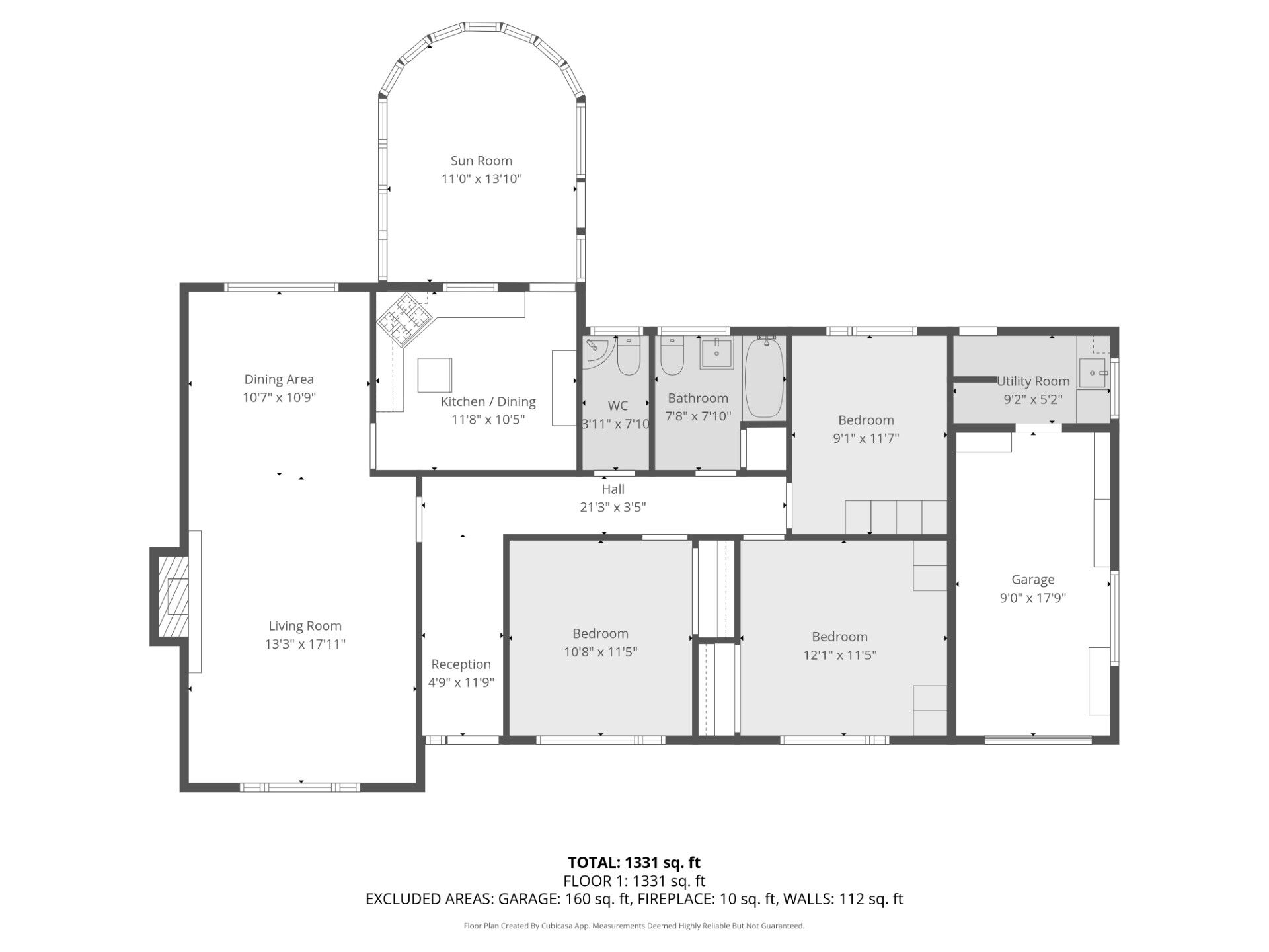
Set on a substantial site, 11 Brunswick Road is a detached bungalow offering spacious accommodation and a truly outstanding rear garden.
Entrance Hall
Open porch , hardwood front door, cornice ceiling, access to roof space.
Roof space
Floored with access via attached garage.
Cloakroom / WC
Low flush WC, wash hand basin.
Lounge
17'11" x 13'3" (5.46m x 4.04m)
Tiled fireplace and hearth, cornice ceiling. Open to dining.
Dining Room
10'9" x 10'7" (3.28m x 3.23m)
Kitchen
11'8" x 10'5" (3.56m x 3.18m)
Single drainer 1.5 composite sink unit with mixer taps, range of high and ow level unts with laminated work surfaces, cooker space, part tiled walls, casual dining area, plumbed for dishwasher. door to conservatory.
Conservatory
13'10" x 11'10" (4.22m x 3.60m)
Power and radiator uPVC double glazed French doors to rear garden.
Bedroom 1
12'1" x 11'5" (3.68m x 3.48m)
Range of built in robes with storage above and additional built in robe.
Bedroom 2
11'5" x 10'8" (3.48m x 3.25m)
Bedroom 3
11'7" x 9'1" (3.53m x 2.77m)
Double built in robe with storage above.
Bathroom
Coloured suite comprising: Panelled bath with mixer taps and telephone hand shower, pedestal wash hand basin, low flush WC, part tiled walls, hot press.
Outside
Tarmac driveway to to excellent car parking space and additional space for Caravan/ Motorhome. Additionally to the right hand side of the property is a covered car port.
Attached Garage
17'9" x 8'12" (5.40m x 2.74m)
Up and over door, power and light with access to a large Mezzanine storage area. This area also leads to the main roof space. Utility area : 9'2 x 5'2to the rear of the garage with a sink unit , plumbing for a washing ,machine and Oil fired boiler.
Gardens
Front hardens in lawns and well tended boundary hedging. Large South facing rear garden in lawns, boundary hedging, mature trees. Potting shed, PVC Oil tank.
NB
As a business carrying out estate agency work, we are required to verify the identity of both the vendor and the purchaser as outlined in the following: The Money Laundering, Terrorist Financing and Transfer of Funds (Information on the Payer) Regulations 2017 - https://www.legislation.gov.uk/uksi/2017/692/contents.To be able to purchase a property in the United Kingdom all agents have a legal requirement to conduct Identity checks on all customers involved in the transaction to fulfil their obligations under Anti Money Laundering regulations. We outsource this check to a third party and a charge will apply of £30 + VAT for a single purchaser or £50 + VAT per couple.
IMPORTANT NOTE TO POTENTIAL PURCHASERS:
We endeavour to make our particulars accurate and reliable, however, they do not constitute or form part of an offer or any contract and none is to be relied upon as statements of representation or fact. The services, systems and appliances listed in this specification have not been tested by us and no guarantee as to their operating ability or efficiency is given. All photographs and measurements have been taken as a guide only and are not precise. Floor plans where included are not to scale and accuracy is not guaranteed. If you require clarification or further information on any points, please contact us, especially if you are travelling some distance to view. Fixtures and fittings other than those mentioned are to be agreed with the seller.
Brunswick Road, Bangor, County Down, BT20




































The pin shows the exact address of the property
Energy Efficiency Rating
Very energy efficient - lower running costs
Not energy efficient - higher running costs
Current
39Potential
64CO2 Rating
Very energy efficient - lower running costs
Not energy efficient - higher running costs