3 bedroom Detached Bungalow to rent, Rushyford, Ferryhill, Durham, DL17
Available Unfurnished, from 01/12/2026
Features and Description
- DETACHED BUNGALOW
- GARAGE
- LARGE PLOT
- RENT:- £1500PCM
- DEPOSIT:- £1730.76
- HOLDING DEPOSIT:- £346.15
- EPC GRADE:- C
- COUNCIL TAX BAND:- E
**RARELY AVAILABLE** DETACHED BUNGALOW** GARAGE** LARGE PLOT** IMMACULATE** THREE BEDROOMS** MASTER ENSUITE** EPC GRADE C** COUNCIL TAX BAND E**
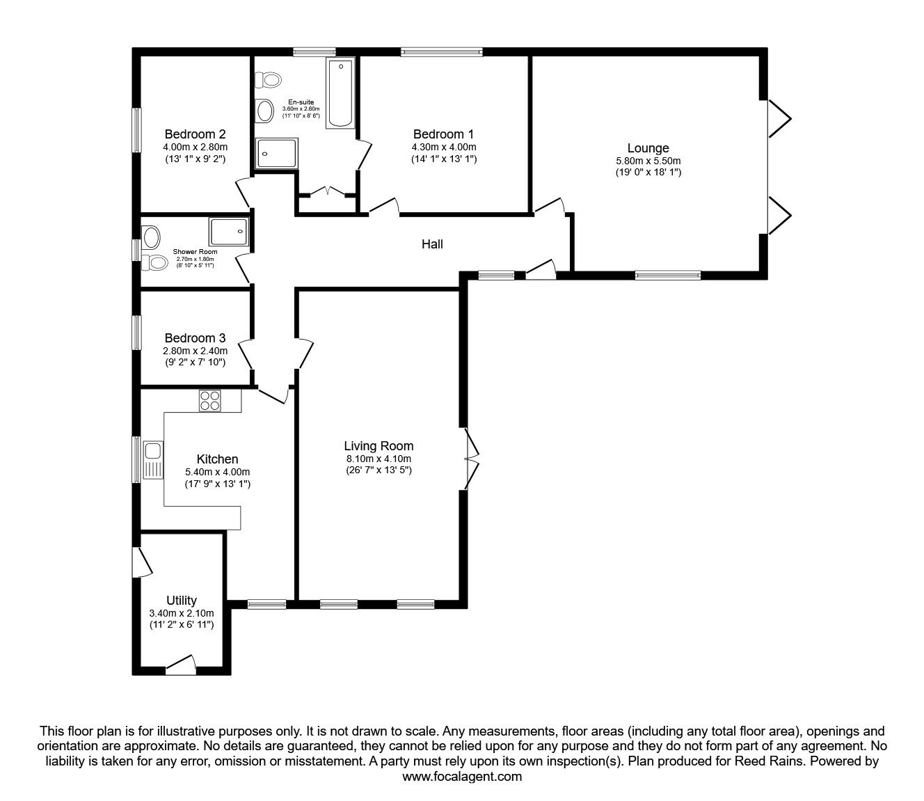
Entrance Hall
Enter via double glazed door, double glazed window, storage cupboard and radiator.
Reception Room
Double glazed window, bi fold doors over looking the garden, two skylights and two radiators.
Lounge / Dining Room
Two double glazed windows, double glazed doors leading to the garden, radiator and wood burning stove.
Kitchen
Fitted with a range of wall and base units, integrated appliances - dishwasher, oven, hob and fridge/freezer. Two double glazed windows, radiator and door to utility.
Utility Room
Fitted with wall and base units, sink, plumbing for washing machine, double glazed door to the garden and door leading to the garage.
Bedroom
Double glazed window, radiator and fitted wardrobes.
En-Suite
White suite comprising of shower, sink, WC and bath. Double glazed window, radiator and heated towel style radiator.
Bedroom
Double glazed window, fitted wardrobes and radiator.
Bedroom
Double glazed window and radiator.
Bathroom
White suite comprising of WC, sink and shower. Double glazed window and radiator.
Externally
The property sits on a large plot with gardens front and back. Gravelled driveway with parking for several cars. The property benefits from an attached garage with up and over door.
Additional Information
- Local Authority:- Durham- Council Tax Band:- E- Council Tax Estimate:- £3118- Property Type:- Bungalow- Property Construction:- Brick Built- Heating:- Oil- Electricity Supply:- Mains- Water Supply:- Mains- Sewerage:- Northumbrian Water- Conservation Area:- No- Flood Risk:- Very Low- Coastal Erosion Risk:- Low- Rivers & Seas:- Very Low- Surface Water:- Very Low- Accessibility/Adaptations:- None - Coalfield or Mining Area:- Some areas of County Durham have a history of mining, therefore we suggest to investigate further if relevant.- Mobile Coverage:- Medium- O2 - Medium- EE - Medium- Three - Medium- Vodafone - Medium- Broadband (estimated speeds)- Standard 16 mbps- Superfast 35 mbps- Ultrafast - unknown
IMPORTANT NOTE TO POTENTIAL RENTERS:
We endeavour to make our particulars accurate and reliable, however, they do not constitute or form part of an offer or any contract and none is to be relied upon as statements of representation or fact. The services, systems and appliances listed in this specification have not been tested by us and no guarantee as to their operating ability or efficiency is given. All photographs and measurements have been taken as a guide only and are not precise. Floor plans where included are not to scale and accuracy is not guaranteed. If you require clarification or further information on any points, please contact us, especially if you are travelling some distance to view.
All properties are available for a minimum of six months, with the exception of short term accommodation. A security deposit of at least one month’s rent is required. Rent is to be paid one month in advance. It is the tenant’s responsibility to insure any personal possessions. Payment of all utilities including water rates or metered supply and Council Tax is the responsibility of the tenant in every case.
Client Money Protection is provided by Propertymark. Redress through The Property Ombudsman Scheme.
Rushyford, Ferryhill, Durham, DL17
Similar properties to rent by Reeds Rains Durham City
Double glazed window, bi fold doors over looking the garden, two skylights and two radiators.
Two double glazed windows, double glazed doors leading to the garden, radiator and wood burning stove.
Fitted with a range of wall and base units, integrated appliances - dishwasher, oven, hob and fridge/freezer. Two double glazed windows, radiator and door to utility.
Double glazed window, radiator and fitted wardrobes.
White suite comprising of WC, sink and shower. Double glazed window and radiator.
The pin shows the exact address of the property
Energy Efficiency Rating
Very energy efficient - lower running costs
Not energy efficient - higher running costs
Current
N/APotential
N/ACO2 Rating
Very energy efficient - lower running costs
Not energy efficient - higher running costs
