3 bedroom Detached Bungalow to rent, Woodleigh Close, Strensall, North Yorkshire, YO32
Available Unfurnished, from 29/09/2025
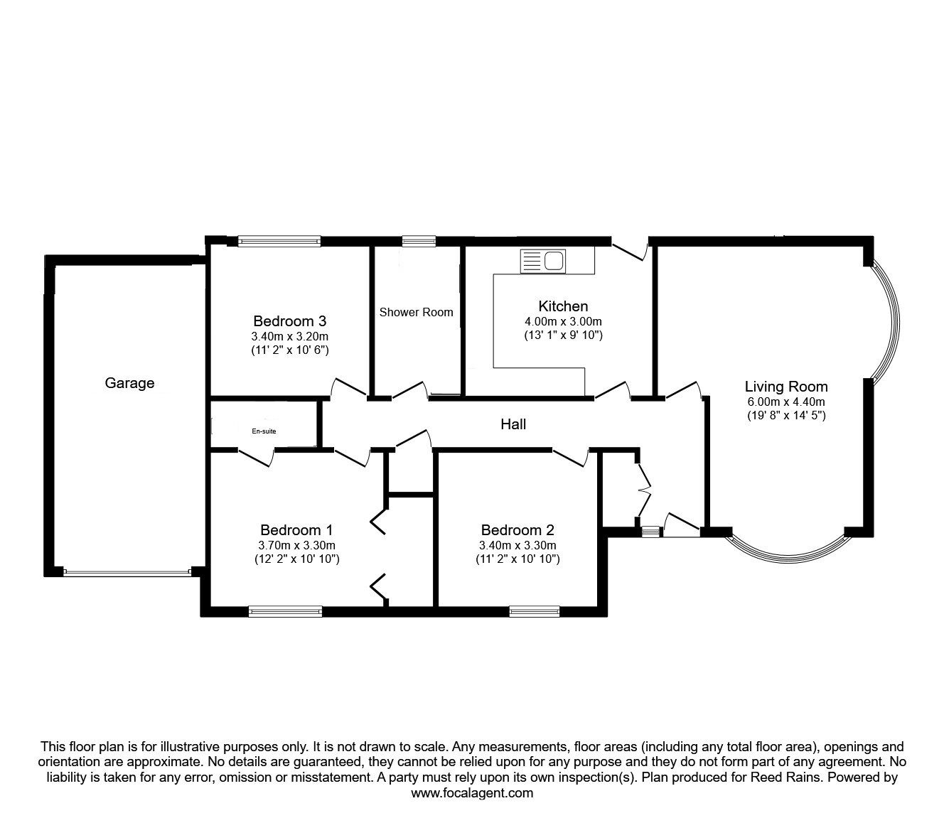
Features and Description
- Available Now!
- Unfurnished
- 3 Bedrooms
- Garage and off street parking
- Enclosed rear garden
- Detached
- EPC Grade D
- Council Tax Band E
This property is not to be missed. It boasts style and space throughout. Offering off street parking, garage, enclosed private rear garden, low maintenance front and side gravel gardens. Internally the property leads through an entrance hallway, spacious lounge, 3 double bedrooms, Family bathroom and additional w.c. Located in Strensall, close to well regarded schools and local amenities. Council Tax Band E. EPC Rating D.
Entrance Hall
Large entrance hall with built in storage.
Living Room
Carpeted L shaped lounge with two bay windows to the front and side.
Kitchen
Wall and base units space for appliances and freestanding cooker, window to the rear aspect.
Bedroom
Carpeted throughout with window overlooking the front garden.
Bedroom 2
Carpeted throughout, with built in storage units and a W.C en-suite
Bedroom 3
Carpeted throughout, with a window to the rear aspect.
Bathroom
Shower over bath with a low level w.c and wash hand baisn.
IMPORTANT NOTE TO POTENTIAL RENTERS:
We endeavour to make our particulars accurate and reliable, however, they do not constitute or form part of an offer or any contract and none is to be relied upon as statements of representation or fact. The services, systems and appliances listed in this specification have not been tested by us and no guarantee as to their operating ability or efficiency is given. All photographs and measurements have been taken as a guide only and are not precise. Floor plans where included are not to scale and accuracy is not guaranteed. If you require clarification or further information on any points, please contact us, especially if you are travelling some distance to view.
All properties are available for a minimum of six months, with the exception of short term accommodation. A security deposit of at least one month’s rent is required. Rent is to be paid one month in advance. It is the tenant’s responsibility to insure any personal possessions. Payment of all utilities including water rates or metered supply and Council Tax is the responsibility of the tenant in every case.
Client Money Protection is provided by Propertymark. Redress through The Property Ombudsman Scheme.
Woodleigh Close, Strensall, North Yorkshire, YO32
The pin shows the exact address of the property
Energy Efficiency Rating
Very energy efficient - lower running costs
Not energy efficient - higher running costs
Current
N/APotential
N/ACO2 Rating
Very energy efficient - lower running costs
Not energy efficient - higher running costs
