This calculator provides a guide to the amount of residential stamp duty you may pay and does not guarantee this will be the actual cost. This calculation is based on the Stamp Duty Land Tax Rates for residential properties purchased from 23rd September 2022 and second homes from 31st October 2024. For more information on Stamp Duty Land Tax, click here.




























5 bedroom Detached House for sale, Glenview Park, Belfast, County Antrim, BT5
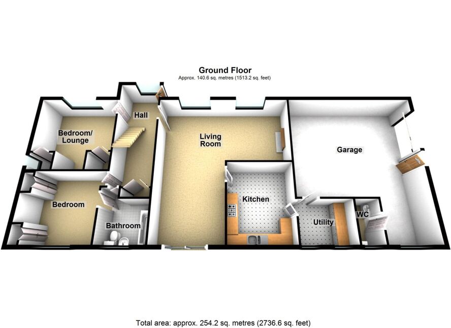
Features and Description
- Impressive Detached Property Boasting Excellent Accommodation Throughout
- Deceptively Generous / Flexible Accommodation Over Two Floors
- Welcoming Entrance Hall
- Family Room / Downstairs Bedroom With W/C
- L Shape Lounge Open Plan To Dining Area
- Modern Fitted Kitchen
- Separate Utility Room
- Five Large Bedrooms - Master With En-Suite Bathroom
- Two Family Bathroom Suites Located On Ground & First Floor
- Large Integrated Garage
- Oil Fired Central Heating
- UPVC Double Glazed Windows And Doors
- Off Street Car Parking For Multiple Cars
- Detached Garage / Workshop
- Enclosed Private Easy To Maintain Garden To Rear
- UPVC Fascia Soffits And Guttering
- Within Close Proximity To A Wealth Of Day To Day Amenities And Attractions
- Belfast City Centre Is Easily Accessible
- Early Internal Inspection Is Encouraged
This imposing detached property is positioned within a quiet cul de sac location, just off the Ballygowan Road in East Belfast.
Boasting very deceptive and generous accommodation this unique home extends to just over 2700 square feet throughout.
Internally offers adaptable and flexible accommodation over two floors throughout which can cater the requirements for those with a large family or those whom work from home.
Outside there is a private, easy to maintain garden area to rear, off street car parking for multiple cars and an additional detached garage.
The location itself is very desirable as local shops, parks and regular public transport links are all within walking distance whilst Forestside Shopping Centre and Retail Park and Tesco Superstore at Castlereagh are also close by.
An fine property also falls within close proximity to an excellent selection of schooling for all ages.
This excellent home is unique due to the excellent accommodation and outside space on offer, with this in mind early consideration to view is advised.
KEY FEATURES
Impressive Detached Property Boasting Excellent Accommodation Throughout
Deceptively Generous / Flexible Accommodation Over Two Floors
Welcoming Entrance Hall
Family Room / Downstairs Bedroom With W/C
L Shape Lounge Open Plan To Dining Area
Modern Fitted Kitchen
Separate Utility Room
Five Large Bedrooms - Master With En-Suite Bathroom
Two Family Bathroom Suites Located On Ground & First Floor
Large Integrated Garage
Oil Fired Central Heating
uPVC Double Glazed Windows And Doors
Off Street Car Parking For Multiple Cars
Detached Garage / Workshop
Enclosed Private Easy To Maintain Garden To Rear
uPVC Fascia Soffits And Guttering
Within Close Proximity To A Wealth Of Day To Day Amenities And Attractions
Belfast City Centre Is Easily Accessible
Early Internal Inspection Is Encouraged
Welcoming Entrance Hall
Large walk in cloak cupboard. Laminated wooden flooring.
Family Room / Bedroom 5
3.68m / 3.68m
Built in double wardrobe. Concealed low flush w/c. Wash hand basin with chrome mixer tap.
Bedroom 4
3.8m / 3.28m
Excellent range of built in bedroom furniture. Dual access to...
Family Bathroom Suite
Comprising panelled bath with chrome dual mixer tap and telephone hand shower. Folding shower screen. Pedestal wash hand basin with chrome mixer tap. Low flush w/c. Fully tiled walls. Laminated wooden flooring.
Lounge Open Plan To Dining Area
7.8m / 6.53m
At widest points. Original fire place with tiled hearth. Ample dining area. Laminated wooden flooring. uPVC sliding door to enclosed rear garden.
Modern Fitted Kitchen
3.84m / 10
One and 1/2 bowl sink unit with dual mixer tap. Excellent range of high and low level units with laminated work surfaces. Space for Range and integrated extractor hood. Space for American fridge / freezer. Recessed spotlighting. Fully tiled walls. Ceramic tiled flooring.
Utility Room
2.46m / 1.98m
Range of high and low level units. Laminated work surfaces. Plumbed for washing machine. Vented for tumble dryer. Fully tiled walls. Ceramic tiled flooring.
Integrated Garage
7.75m / 6.48m
Accessed via up & over door. Light and power. Oil fired boiler. Low flush w/c. Wash hand basin with chrome mixer tap.
Bedroom 1
5.33m / 3.68m
Wall to wall built in wardrobes with shelving.
En-Suite Bathroom Suite
Comprising panelled bath with chrome dual mixer tap. Pedestal wash hand basin with chrome mixer tap. Low flush w/c. Fully tiled walls.
Bedroom 2
4m / 2.67m
Built in wardrobe with shelving. Dual access to...
White Family Bathroom Suite
Comprising panelled jacuzzi styled bath with chrome dual mixer tap. Fully tiled corner shower cubicle with thermostatically controlled shower unit. Pedestal wash hand basin with chrome dual mixer tap. Low flush w/c. Fully tiled walls.
Bedroom 4
6.25m / 5.9m
Storage in the eaves. Access to roof space.
Bedroom 6
6.45m / 1.93m
Velux window.
Landing
Recessed spotlighting. Large built in storage cupboard with hot press and storage above. Velux window. Access to roof space.
Outside
Garden area to front and side in lawn, flower beds and shrubbery. Side access. Enclosed private easy to maintain garden to rear with paved patio area and loose stones. Outside tap / light. uPVC oil tank. Off street car parking to side for multiple cars / vans.
Detached Garage
23 / 4.45m
Accessed via roller door, light and power.
CUSTOMER DUE DILIGENCE
As a business carrying out estate agency work, we are required to verify the identity of both the vendor and the purchaser as outlined in the following: The Money Laundering, Terrorist Financing and Transfer of Funds (Information on the Payer) Regulations 2017 - https://www.legislation.gov.uk/uksi/2017/692/contentsTo be able to purchase a property in the United Kingdom all agents have a legal requirement to conduct Identity checks on all customers involved in the transaction to fulfil their obligations under Anti Money Laundering regulations. We outsource this check to a third party and a charge will apply of £20 + Vat for each person.
IMPORTANT NOTE TO POTENTIAL PURCHASERS:
We endeavour to make our particulars accurate and reliable, however, they do not constitute or form part of an offer or any contract and none is to be relied upon as statements of representation or fact. The services, systems and appliances listed in this specification have not been tested by us and no guarantee as to their operating ability or efficiency is given. All photographs and measurements have been taken as a guide only and are not precise. Floor plans where included are not to scale and accuracy is not guaranteed. If you require clarification or further information on any points, please contact us, especially if you are travelling some distance to view. Fixtures and fittings other than those mentioned are to be agreed with the seller.
Glenview Park, Belfast, County Antrim, BT5

Additional Information
-
Property refBAL240444
-
EPCE

Similar properties for sale by Reeds Rains Ballyhackamore




























The pin shows the exact address of the property
Energy Efficiency Rating
Very energy efficient - lower running costs
Not energy efficient - higher running costs
Current
48Potential
69CO2 Rating
Very energy efficient - lower running costs
Not energy efficient - higher running costs