This calculator provides a guide to the amount of residential stamp duty you may pay and does not guarantee this will be the actual cost. This calculation is based on the Stamp Duty Land Tax Rates for residential properties purchased from 23rd September 2022 and second homes from 31st October 2024. For more information on Stamp Duty Land Tax, click here.
4 bedroom Detached House for sale, Martingale Drive, Leeds, West Yorkshire, LS10
Features and Description
- EXTENDED 4 BEDROOM DETACHED,
- GAS CH, UPVC DOUBLE GLAZING,
- GARAGE, CONSERVATORY, EN-SUITE,
- GARDENS, LARGE FAMILY KITCHEN.
NEW PRICE
This modern, extended, four bedroom detached house, would now provide ideal accommodation for a family. The property was originally constructed in approximately 1998 but was extended 20 years ago to now provide a particularly large family kitchen on the side of the property. The house incorporates gas fired central heating, UPVC double glazing, there is a rear conservatory extension, four bedroom accommodation a useful ground floor cloakroom WC ensuite shower room to the master bedroom together with a family bathroom and an integral garage. The property is located on this increasingly popular south side of Leeds being well positioned for commuting to the city centre and also the motorway network. We strongly recommend an early inspection to appreciate the potential this home offers to a family.
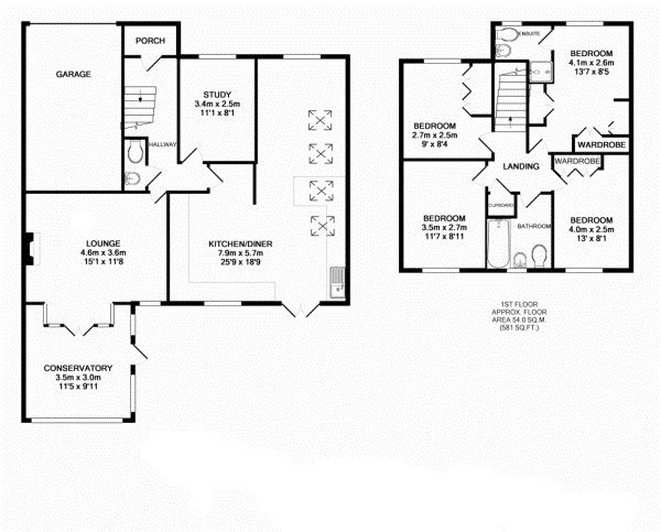
Entrance Porch
Composite door., metal panelled door to:
Entrance Hall
Radiator with cover, stairs off to first floor with open timber balustrade, cove to ceiling, tiled flooring.
Cloakroom WC
Modern white suite comprising WC, pedestal wash basin, towel rail/radiator, extractor fan, tiled walls and floor.
Lounge
15'2" x 11'8" (4.62m x 3.56m)
2 x radiators, recessed stove style fireplace, rectangular bay window and French door leading to the conservatory, cove to ceiling.
Conservatory
11'7" x 9'10" (3.53m x 3.00m)
Laminate flooring, double glazed windows and rear entrance door.
Study
8'9" x 11'7" (2.67m x 3.53m)
Radiator and laminate flooring.
Dining Kitchen
18'9" x 25'9" (5.72m x 7.85m)
Extensive range of fitted units, range cooker, integrated fridge/freezer, space for washer and tumble dryer, dishwasher, 4 x skylight windows, laminate work surfaces and breakfast bar, feature radiator, double glazed rear entrance door.
1st Floor Landing
Storage cupboard, access to roof space.
Bedroom 1
13'6" x 9'2" (4.11m x 2.80m)
Radiator, range of wardrobes.
En-Suite Shower Room
White suite comprising shower cubicle, vanity wash basin, WC, chrome towel rail/radiator, extractor fan, tiled surrounds.
Bedroom 2
13'5" x 8'4" (4.10m x 2.54m)
Radiator, wardrobes.
Bedroom 3
11'8" x 8'4" (3.56m x 2.54m)
Radiator.
Bedroom 4
9'11" x 8'4" (3.02m x 2.54m)
Radiator.
Bathroom
White suite comprising P shaped bath, with shower over, glazed shower screen, WC, vanity wash basin, inset spots, part tiled walls, chrome towel rail/radiator, extractor fan.
Outside
To the front of the property a tarmac surfaced driveway provides access to the integral garage having a metal up and over door. There is a turning area and further car parking space together with a lawned garden with mature tree and shrub borders. A footpath provides access along the side to the rear whether there is an enclosed lawned garden with stone flagged patio area, mature tree and strip borders and an ornamental pond, timber fencing and brick walling.
Agents Note
To be able to purchase a property in the United Kingdom all agents have a legal requirement to conduct Identity checks on all customers involved in the transaction to fulfil their obligations under Anti Money Laundering regulations. We outsource this check to a third party and a charge will apply. Ask the branch for further details.
IMPORTANT NOTE TO POTENTIAL PURCHASERS:
We endeavour to make our particulars accurate and reliable, however, they do not constitute or form part of an offer or any contract and none is to be relied upon as statements of representation or fact. The services, systems and appliances listed in this specification have not been tested by us and no guarantee as to their operating ability or efficiency is given. All photographs and measurements have been taken as a guide only and are not precise. Floor plans where included are not to scale and accuracy is not guaranteed. If you require clarification or further information on any points, please contact us, especially if you are travelling some distance to view. Fixtures and fittings other than those mentioned are to be agreed with the seller.
Martingale Drive, Leeds, West Yorkshire, LS10
Additional Information
-
Property refROH250338
-
EPCD
-
TenureFreehold
-
Council TaxD
-
Local authorityLeeds City Council
Similar properties for sale by Reeds Rains Rothwell
2 x radiators, recessed stove style fireplace, rectangular bay window and French door leading to the conservatory, cove to ceiling.
Laminate flooring, double glazed windows and rear entrance door.
Radiator and laminate flooring.
Extensive range of fitted units, range cooker, integrated fridge/freezer, space for washer and tumble dryer, dishwasher, 4 x skylight windows, laminate work surfaces and breakfast bar, feature radiator, double glazed rear entrance door.
Radiator, range of wardrobes.
White suite comprising shower cubicle, vanity wash basin, WC, chrome towel rail/radiator, extractor fan, tiled surrounds.
Radiator, wardrobes.
Radiator.
Radiator.
White suite comprising P shaped bath, with shower over, glazed shower screen, WC, vanity wash basin, inset spots, part tiled walls, chrome towel rail/radiator, extractor fan.
To the front of the property a tarmac surfaced driveway provides access to the integral garage having a metal up and over door. There is a turning area and further car parking space together with a lawned garden with mature tree and shrub borders. A footpath provides access along the side to the rear whether there is an enclosed lawned garden with stone flagged patio area, mature tree and strip borders and an ornamental pond, timber fencing and brick walling.
The pin shows the exact address of the property
Energy Efficiency Rating
Very energy efficient - lower running costs
Not energy efficient - higher running costs
Current
65Potential
80CO2 Rating
Very energy efficient - lower running costs
Not energy efficient - higher running costs
