This calculator provides a guide to the amount of residential stamp duty you may pay and does not guarantee this will be the actual cost. This calculation is based on the Stamp Duty Land Tax Rates for residential properties purchased from 23rd September 2022 and second homes from 31st October 2024. For more information on Stamp Duty Land Tax, click here.






































3 bedroom Detached House for sale, Rocklyn Crescent, Donaghadee, County Down, BT21
Features and Description
- Modern detached home built circa 4–5 years ago by Windsor Homes.
- Spacious entrance hall with cloakroom and white suite.
- Lounge with feature media wall and built-in storage.
- Luxury fitted kitchen with quality appliances and finishes.
- Bathroom with White suite
- Gas fired heating and double glazed
- Generous rear garden, ideal for families and outdoor entertaining.
- Immaculately presented throughout — move-in ready.
- Contemporary design with excellent layout for modern living.
- Situated in a sought-after Donaghadee location, close to local amenities.
Built around four to five years ago by the highly regarded Windsor Homes, this modern detached residence offers stylish, well-planned accommodation in a sought-after location.
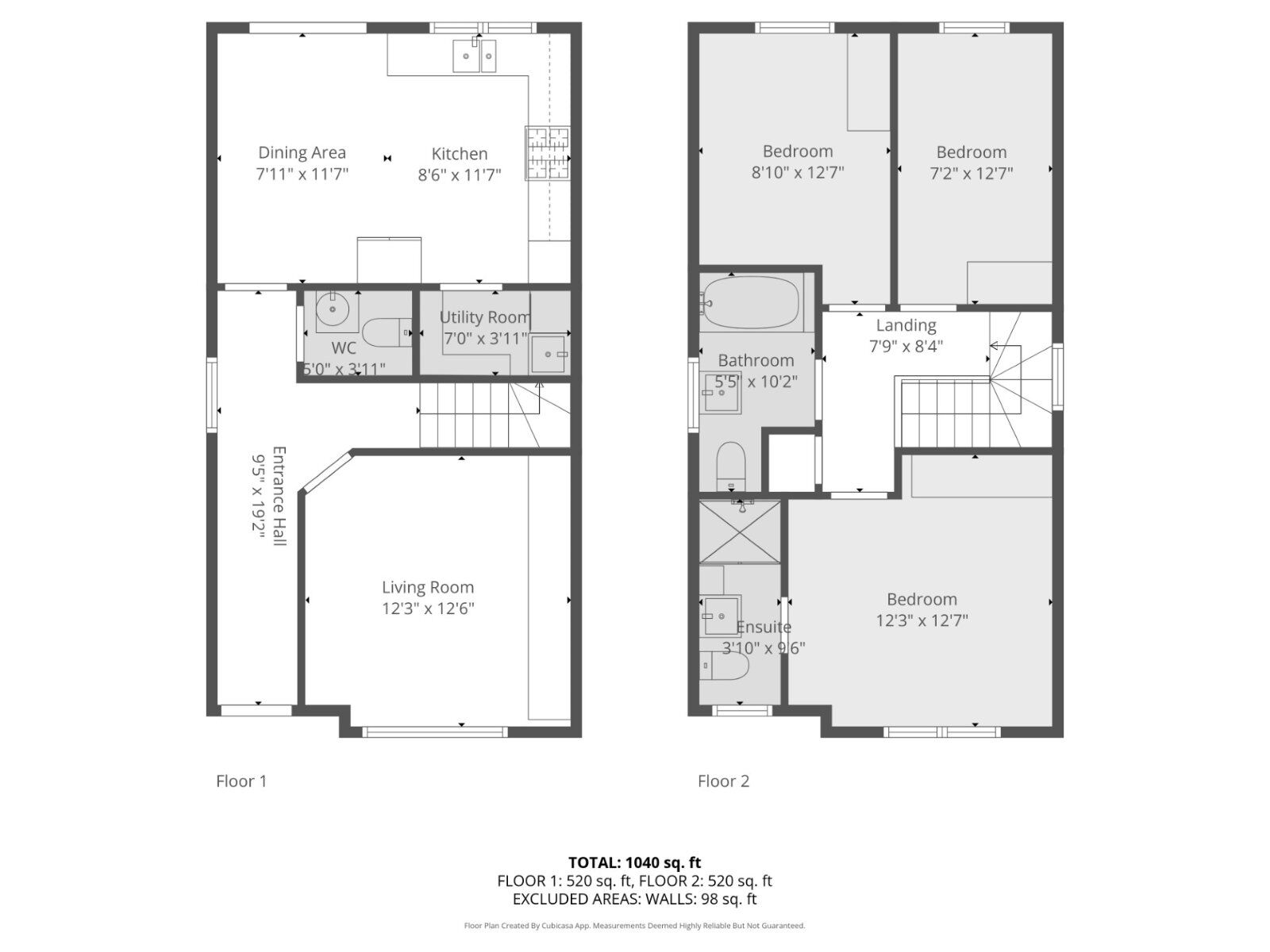
Reception Hall
Composite front door, ceramic tiled floor.
Cloakroom / WC
Modern white suite comprising : Dual flush WC, semi pedestal wash hand basin with tiled splash back, ceramic tiled floor, extractor fan.
Lounge
12'6" x 12'3" (3.80m x 3.73m)
Bespoke Media wall with built in book shelving and additional storage with remote control lighting, large wall mounted electric fire, recessed spotlights.
Kitchen / Dining
16'5" x 11'7" (5.00m x 3.53m)
Single drainer 1.5 composite sink unit with mixer taps, excellent range of high and low level units with laminate work surfaces, built in oven and 4 ring gas hob, Glass splash back, stainless steel chimney extractor fan, integrated dishwasher, Gas boiler, ceramic tiled floor, recessed spotlights. Dining area with uPvc double glazed French doors leading to the rear garden.
Utility Area
6'12" x 3'11" (2.13m x 1.20m)
Ceramic tiled floor, built in storage, plumbed for washing machine and space for a tumble dryer.
First Floor Landing
Linen cupboard. Access to roof space via slingsby type ladder to part floored roof space.
Bedroom 1
12'7" x 12'3" (3.84m x 3.73m)
En-Suite Shower room
9'6" x 3'10" (2.90m x 1.17m)
Modern white suite comprising: Fully tiled built in shower cubicle with thermostatically controlled shower unit, pedestal wash hand basin with tiled splash back, dual flush WC, heated towel rail.
Bedroom 2
12'7" x 8'10" (3.84m x 2.70m)
Bedroom 3
12'7" x 7'2" (3.84m x 2.18m)
Family Bathroom
10'2" x 5'5" (3.10m x 1.65m)
Modern white suite comprising: Panelled bath with mixer taps and telephone hand shower, pedestal wash hand basin, dual flush WC, part tiled walls, heated towel rail.
Outside
Tarmac driveway to ample off street car parking.
Gardens
Front and side gardens in Lawns and paved walkways.Enclosed gardens to the rear of the property in lawns and paved patio area. Outside tap and light, Garden shed and Jungle Gym.
NB
As a business carrying out estate agency work, we are required to verify the identity of both the vendor and the purchaser as outlined in the following: The Money Laundering, Terrorist Financing and Transfer of Funds (Information on the Payer) Regulations 2017 - https://www.legislation.gov.uk/uksi/2017/692/contents.To be able to purchase a property in the United Kingdom all agents have a legal requirement to conduct Identity checks on all customers involved in the transaction to fulfil their obligations under Anti Money Laundering regulations. We outsource this check to a third party and a charge will apply of £30 + VAT for a single purchaser or £50 + VAT per couple.
IMPORTANT NOTE TO POTENTIAL PURCHASERS:
We endeavour to make our particulars accurate and reliable, however, they do not constitute or form part of an offer or any contract and none is to be relied upon as statements of representation or fact. The services, systems and appliances listed in this specification have not been tested by us and no guarantee as to their operating ability or efficiency is given. All photographs and measurements have been taken as a guide only and are not precise. Floor plans where included are not to scale and accuracy is not guaranteed. If you require clarification or further information on any points, please contact us, especially if you are travelling some distance to view. Fixtures and fittings other than those mentioned are to be agreed with the seller.
Rocklyn Crescent, Donaghadee, County Down, BT21






































The pin shows the exact address of the property
Energy Efficiency Rating
Very energy efficient - lower running costs
Not energy efficient - higher running costs
Current
82Potential
82CO2 Rating
Very energy efficient - lower running costs
Not energy efficient - higher running costs