This calculator provides a guide to the amount of residential stamp duty you may pay and does not guarantee this will be the actual cost. This calculation is based on the Stamp Duty Land Tax Rates for residential properties purchased from 23rd September 2022 and second homes from 31st October 2024. For more information on Stamp Duty Land Tax, click here.
3 bedroom Detached House for sale, Rocklyn Drive, Donaghadee, County Down, BT21
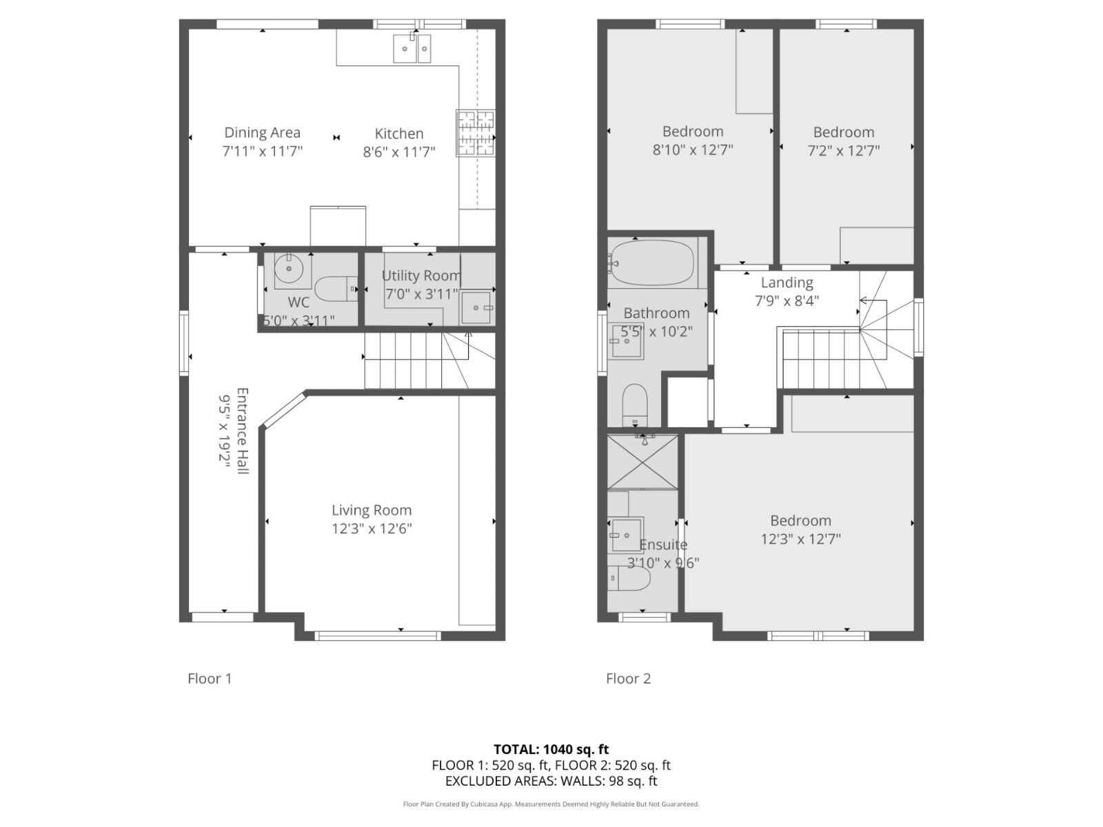
Features and Description
- Attractive three-bedroom detached home in a popular residential development
- Bright entrance hall with cloakroom and modern white suite
- Lounge to the front of the property
- Modern fitted kitchen with a range of integrated appliances
- Open plan dining area with double glazed French doors to the rear garden
- Useful utility area located beneath the stairs
- Three first-floor bedrooms, master with ensuite shower room
- Family bathroom with contemporary white suite
- Gas-fired central heating and uPVC double glazing throughout
- Off-street parking and enclosed rear garden with lawns, decking, and raised planters
This attractive three-bedroom detached home is perfectly positioned within a popular and well-established residential development in the coastal town of Donaghadee.
Reception Hall
Composite double glazed front door, ceramic tiled floor.
Cloakroom / WC
White suite comprising: Dual flush WC, wash hand basin, ceramic tiled floor.
Lounge
Wall mounted electric fire, recessed spotlights.
Kitchen / Dining
Single drainer stainless steel sink unit with mixer taps, excellent range of high and low level units with laminated work surfaces, built in oven and 4 ring gas hob, glass splash back, stainless steel chimney extractor fan, integrated dishwasher, integrated fridge freezer, ceramic tiled floor, recessed spotlights, Gas boiler,. Open plan to dining area with uPVC double glazed French doors to rear garden.
Utility Area
Ceramic tiled floor, plumbed for washing machine, space for tumble dryer/.
First Floor Landing
Access to roof space.
En-Suite Shower room
White suite comprising: Fully tiled built in shower cubicle with thermostatically controlled shower, pedestal wash hand basin, dual flush WC, ceramic tiled floor, part tiled walls, extractor fan, stainless steel heated towel rail.
Family Bathroom
Modern white suite comprising: Panelled bath with mixer taps and telephone hand shower, pedestal wash hand basin, dual flush WC, part tiled walls, extractor fan, stainless steel heated towel rail.
Outside
Tarmac driveway to excellent off street car parking space.
Gardens
Front garden in loose pebbles. Enclosed garden to the rear in lawns, pebbles, feature decking and planters. Outside tap and light,
IMPORTANT NOTE TO POTENTIAL PURCHASERS:
We endeavour to make our particulars accurate and reliable, however, they do not constitute or form part of an offer or any contract and none is to be relied upon as statements of representation or fact. The services, systems and appliances listed in this specification have not been tested by us and no guarantee as to their operating ability or efficiency is given. All photographs and measurements have been taken as a guide only and are not precise. Floor plans where included are not to scale and accuracy is not guaranteed. If you require clarification or further information on any points, please contact us, especially if you are travelling some distance to view. Fixtures and fittings other than those mentioned are to be agreed with the seller.
Rocklyn Drive, Donaghadee, County Down, BT21
The pin shows the exact address of the property
Energy Efficiency Rating
Very energy efficient - lower running costs
Not energy efficient - higher running costs
Current
82Potential
82CO2 Rating
Very energy efficient - lower running costs
Not energy efficient - higher running costs
