This calculator provides a guide to the amount of residential stamp duty you may pay and does not guarantee this will be the actual cost. This calculation is based on the Stamp Duty Land Tax Rates for residential properties purchased from 23rd September 2022 and second homes from 31st October 2024. For more information on Stamp Duty Land Tax, click here.
5 bedroom Detached House for sale, Walton Bay, Clevedon, North Somerset, BS21
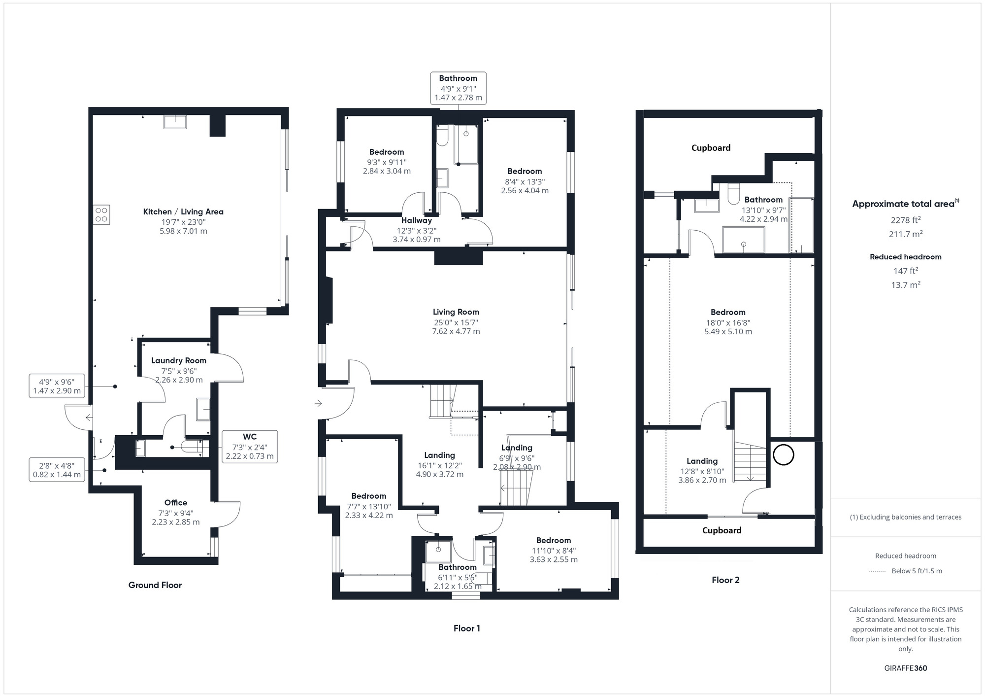
Features and Description
- Stunning Views From This Coastal Home
- Five Bedroom Detached Family Property
- Superb Kitchen/Dining Room Accessing the Sun Terrace
- Large Rear Garden with Double Garage and Ample Parking
- Ensuite to the Master Bedroom and Two Shower Rooms
- Double Glazed and Gas Centrally Heated
- EPC Rating C
- Council Tax Band F
A substantial family home located in the sought after area of Walton Bay, with panoramic views across the Bristol Channel to the Welsh coastline. With the sun terrace and gardens providing a perfect place to entertain or simply relax in the fresh air this detached house takes full advantage of the sun setting over the Severn Estuary. Boasting five bedrooms, with the master having an ensuite bathroom, a large modern style kitchen/dining area, utility room, cloakroom/wc, home office, bright and airy living room and two further shower rooms this property is ideal for those seeking ample living space. To the rear of the home there is plenty of space for multiple vehicles and a double garage.
This property is a true gem and is sure to impress even the most discerning buyer. Book a viewing today to see all that this home has to offer.
Additional Information
Construction, taken from EPC: Wall Cavity wall, as built, insulated (assumed) Roof Pitched, 200 mm loft insulation, Roof Flat, insulated, Roof Roof room(s), limited insulation (assumed)Mains Electricity/Mains Drainage/Mains Water/Mains GasBroadband - Available to order Full Fibre Broadband download speed 1600 Mbps and upload speed 115 Mbps and Copper Broadband download speed 21 Mbps and upload speed 1 Mbps.Mobile Signal/CoverageThere is average coverage for mobile signal in this area, please check with your provider if this will be available to you. For an indication of coverage in the area, we recommend that you check the Ofcom checker. https://checker.ofcom.org.uk/en-gb/mobile-coverage
IMPORTANT NOTE TO POTENTIAL PURCHASERS:
We endeavour to make our particulars accurate and reliable, however, they do not constitute or form part of an offer or any contract and none is to be relied upon as statements of representation or fact. The services, systems and appliances listed in this specification have not been tested by us and no guarantee as to their operating ability or efficiency is given. All photographs and measurements have been taken as a guide only and are not precise. Floor plans where included are not to scale and accuracy is not guaranteed. If you require clarification or further information on any points, please contact us, especially if you are travelling some distance to view. Fixtures and fittings other than those mentioned are to be agreed with the seller.
Walton Bay, Clevedon, North Somerset, BS21

Additional Information
-
Property refCLV240271
-
EPCC
-
TenureFreehold
-
Council TaxF
-
Local authorityNorth Somerset Council

Similar properties for sale by Reeds Rains Clevedon








































The pin shows the exact address of the property
Energy Efficiency Rating
Very energy efficient - lower running costs
Not energy efficient - higher running costs
Current
73Potential
76CO2 Rating
Very energy efficient - lower running costs
Not energy efficient - higher running costs