6 bedroom Detached House to rent, Dunelm Stables, Thornley, Durham, DH6
Available Unfurnished, from 13/10/2025
Features and Description
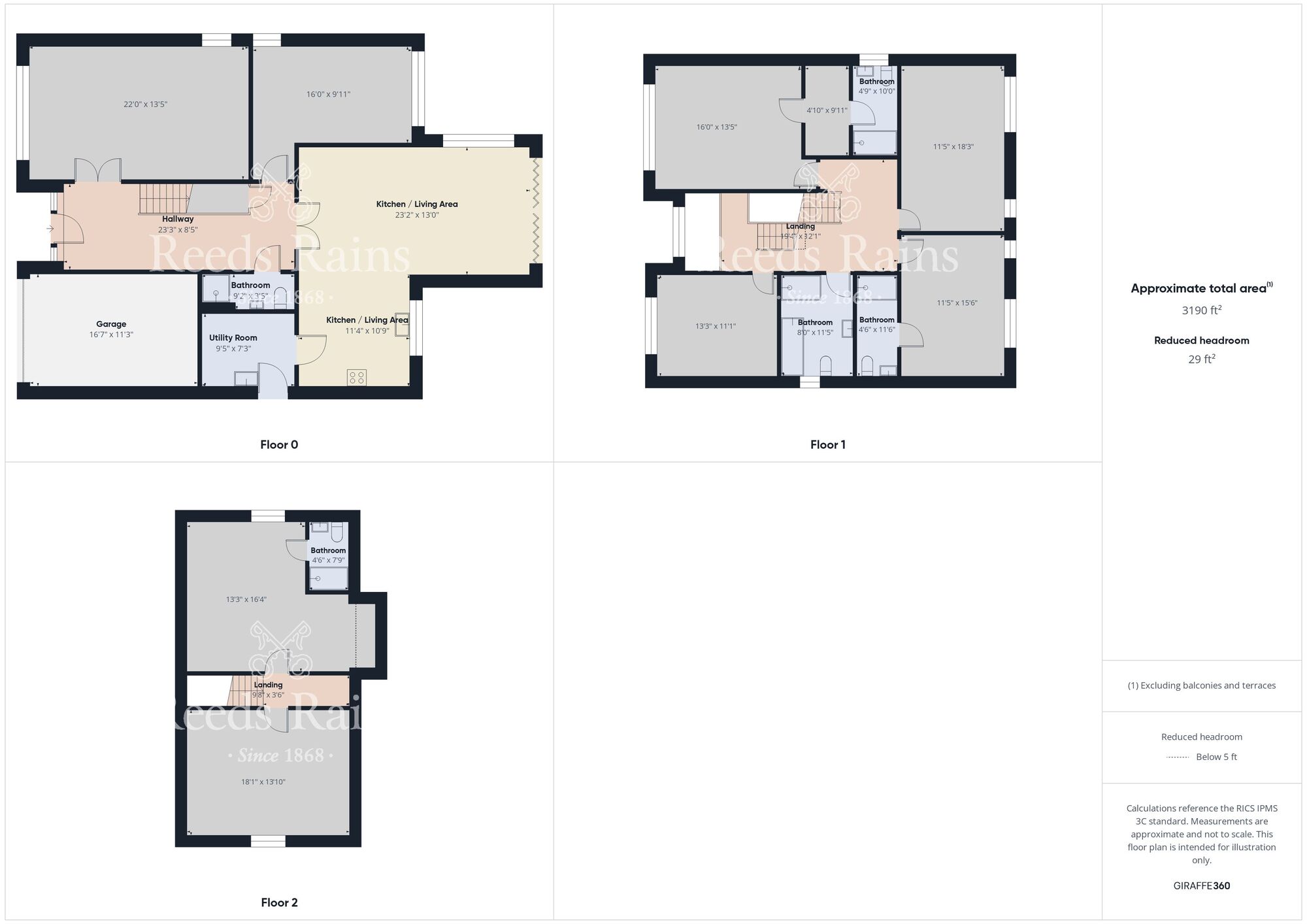
- SIX BEDROOMS
- BEAUTIFULLY PRESENTED
- RENT:- £2500PCM
- DEPOSIT:-£2884.81
- HOLDING DEPOSIT:- £576.92
- EPC GRADE:- C
- COUNCIL TAX BAND:- TBC
**FANTASTIC SIX BEDROOMED EXECUTIVE HOME** AVAILABLE NOW** GARAGE AND GARDEN** BEAUTIFULLY PRESENTED THROUGHOUT** UTILITY ROOM** FIVE BATHROOMS** VIRTUAL VIEWING AVAILABLE**EPC GRADE C** COUNCIL TAX BAND TBC**
Additional Information
Local Authority:- DurhamCouncil Tax Band:- TBCCouncil Tax Estimate:- TBCProperty Type:- HouseProperty Construction:- Brick BuiltHeating:- Gas Central HeatingElectricity Supply:- MainsWater Supply:- MainsSewerage:- Northumbrian WaterConservation Area:- NoFlood Risk:- Very LowCoastal Erosion Risk:- Very LowRivers & Seas:-Very LowSurface Water:- Very LowPlanning Permission:- NoneRestrictions:- NoneRights and Easements:- NoneAccessibility/Adaptations:- None Coalfield or Mining Area:- Some areas of County Durham have a history of mining, therefore we suggest to investigate further if relevant.Mobile Coverage:- Medium02 - GoodEE - GoodThree - MediumVodafone - MediumBroadband (estimated speeds)Standard 12 mbpsSuperfast 35 mbpsUltrafast unknown
IMPORTANT NOTE TO POTENTIAL RENTERS:
We endeavour to make our particulars accurate and reliable, however, they do not constitute or form part of an offer or any contract and none is to be relied upon as statements of representation or fact. The services, systems and appliances listed in this specification have not been tested by us and no guarantee as to their operating ability or efficiency is given. All photographs and measurements have been taken as a guide only and are not precise. Floor plans where included are not to scale and accuracy is not guaranteed. If you require clarification or further information on any points, please contact us, especially if you are travelling some distance to view.
All properties are available for a minimum of six months, with the exception of short term accommodation. A security deposit of at least one month’s rent is required. Rent is to be paid one month in advance. It is the tenant’s responsibility to insure any personal possessions. Payment of all utilities including water rates or metered supply and Council Tax is the responsibility of the tenant in every case.
Client Money Protection is provided by Propertymark. Redress through The Property Ombudsman Scheme.
Dunelm Stables, Thornley, Durham, DH6
Similar properties to rent by Reeds Rains Durham City
The pin shows the exact address of the property
Energy Efficiency Rating
Very energy efficient - lower running costs
Not energy efficient - higher running costs
Current
80Potential
84CO2 Rating
Very energy efficient - lower running costs
Not energy efficient - higher running costs
