5 bedroom Detached House to rent, St. Aidans Drive, Widnes, Cheshire, WA8
Available Unfurnished, from 16/09/2025
Features and Description
- Five spacious bedrooms
- Four modern bathrooms
- Three en-suite bedrooms
- Detached family home
- Large kitchen with island
- Bright conservatory
- Double garage
- Generous private garden
- Close to top-rated schools
- Near parks and amenities
Available to let is this well-presented detached house in Widnes, offering five bedrooms and four bathrooms. This property is in good condition and provides ample space for family living, including a single reception room and a spacious kitchen featuring a kitchen island, abundant natural light, utility room, and dining space.
There is a spacious double garage, providing secure parking for two vehicles, with ample room for storage, tools or hobby equipment.
The house benefits from additional features such as a double garage, a generous garden, and a conservatory that enhances the living experience. Three of the bedrooms are en-suite and several include built-in wardrobes, providing practical storage solutions.
Located on St. Aidans Drive, this property is ideally situated for local amenities, highly regarded schools, and nearby parks. The area is well-served by educational facilities, making it a suitable option for families requiring easy access to schools. Victoria Park, one of Widnes’s popular green spaces, is within walking distance, offering playgrounds, sports facilities, and open grounds for recreation.
Widnes town centre, with its shops, cafés, and everyday conveniences, is easily accessible from the property. For public transport, Widnes railway station is approximately a 10-minute drive away, providing routes to Liverpool in around 25 minutes and to Manchester within 45 minutes. Regular local bus services connect the surrounding residential areas to the high street and key points in the town.
This detached house has an EPC rating of C and falls under council tax band G. It is available for rent now and provides a convenient, well-connected base in Widnes.
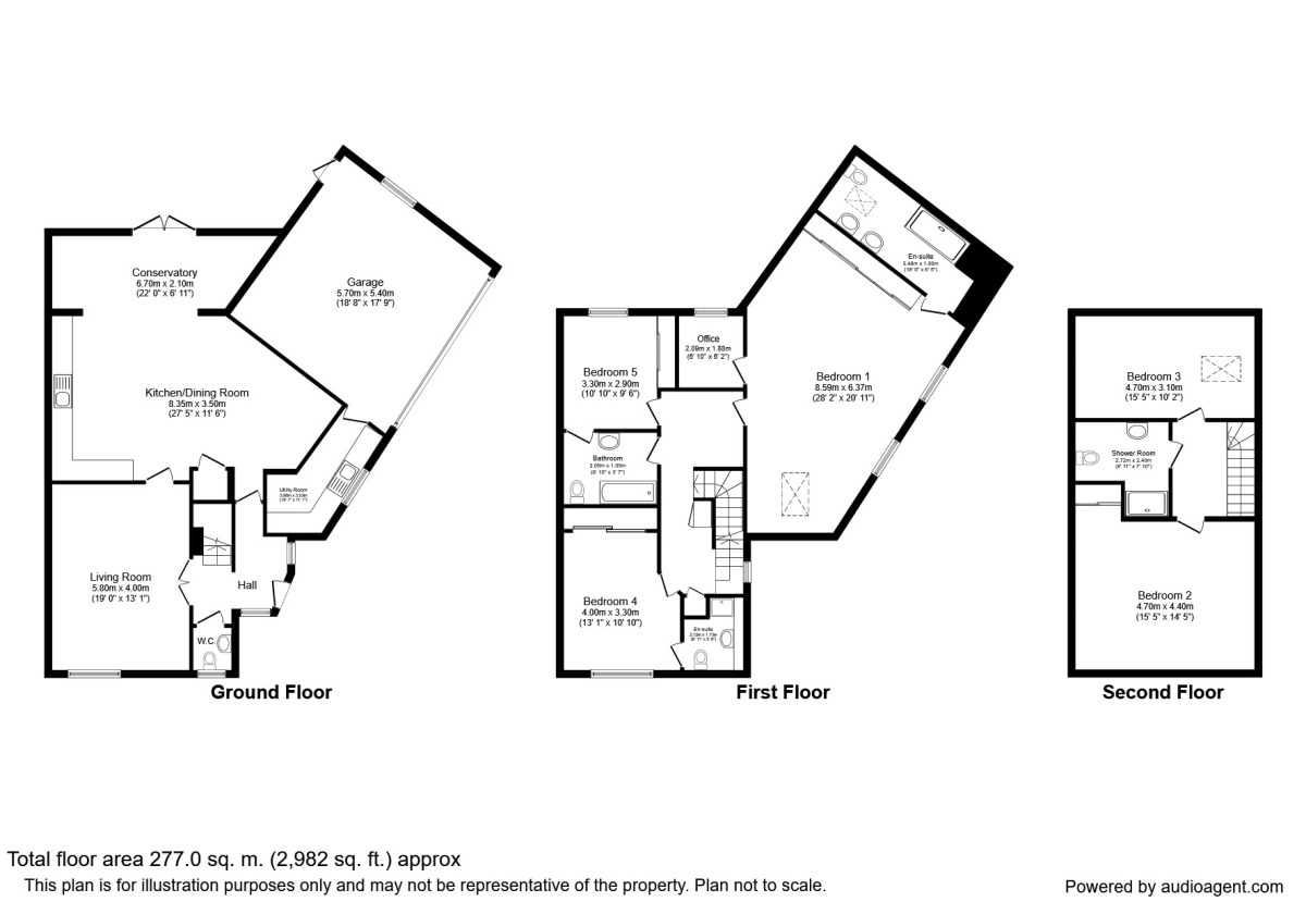
Entrance Hall
Front door opens to a welcoming hallway with all main rooms off.
Downstairs WC
Low level WC, pedestal wash hand basin, PVC double glazed window to front aspect.
Lounge
5.79 x 3.99
PVC double glazed window to front aspect, feature fireplace, power points, TV aerial point, radiator.
Kitchen / Dining Room
8.36 x 3.51
Fitted with a range of modern base and wall units, comprising central island with inset sink and mixer taps over, integrated wine cooler, gas hob with fitted extractor hood above. Integrated twin ovens, tiled floor, power points, feature radiator.
Conservatory
6.71 x 2.11
PVC double glazed units, tiled flooring, power points, PVC double glazed French doors open to rear garden.
Utility Room
Fitted with base and wall units, inset sink with mixer taps over, plumbing and drainage for automatic washing machine, PVC double glazed window to side aspect.
First Floor
Stairs from hall to first floor landing, PVC double glazed window to side aspect.
Main Bedroom
8.59 x 6.38
A Spacious modern room with built in wardrobe with mirror fronted sliding doors, PVC double glazed windows to front and side aspects, radiator, power points.
En-Suite Shower Room
5.49 x 2.03
A beautiful fully tiled room comprising walk in shower enclosure with mixer shower over, low level WC, his and hers sinks with mixer tap over, feature towel rail.
Office
1.78 x 1.88
PVC double glazed window to rear, radiator, power points.
Bedroom 5
3.3 x 2.9
Built in wardrobes with sliding doors, PVC double glazed window to rear, power points, radiator, door into bathroom.
En-Suite Bathroom
2.03 x 2.31
Comprising paneled bath, low level WC, pedestal wash hand basin, radiator,
Bedroom 4
3.99 x 3.3
PVC double glazed window to front, built in wardrobes with sliding doors, power points, radiator.
En-Suite Shower Room
Comprising walk in shower enclosure with mixer shower attachment over, low level WC, pedestal wash hand basin, radiator, PVC double glazed window to front aspect.
Second Floor
Stairs from landing to second floor.
Bedroom 3
4.7 x 3.1
Power points, PVC double glazed window to rear aspect, radiator.
Bedroom 2
4.7 x 4.39
PVC double glazed window to front, power points, radiator.
Shower Room
Comprising walk in shower enclosure with mixer shower attachment over, pedestal wash hand basin, low level WC, radiator.
Double Garage
Up and over doors, power and light.
External
To the front of the property is a lawn with mature shrub borders, paved driveway providing off road parking and twin garages with up and over door. To the rear of the property is an enclosed garden with boundary fencing.
IMPORTANT NOTE TO POTENTIAL RENTERS:
We endeavour to make our particulars accurate and reliable, however, they do not constitute or form part of an offer or any contract and none is to be relied upon as statements of representation or fact. The services, systems and appliances listed in this specification have not been tested by us and no guarantee as to their operating ability or efficiency is given. All photographs and measurements have been taken as a guide only and are not precise. Floor plans where included are not to scale and accuracy is not guaranteed. If you require clarification or further information on any points, please contact us, especially if you are travelling some distance to view.
All properties are available for a minimum of six months, with the exception of short term accommodation. A security deposit of at least one month’s rent is required. Rent is to be paid one month in advance. It is the tenant’s responsibility to insure any personal possessions. Payment of all utilities including water rates or metered supply and Council Tax is the responsibility of the tenant in every case.
Client Money Protection is provided by Propertymark. Redress through The Property Ombudsman Scheme.
St. Aidans Drive, Widnes, Cheshire, WA8
PVC double glazed window to front aspect, feature fireplace, power points, TV aerial point, radiator.
Fitted with a range of modern base and wall units, comprising central island with inset sink and mixer taps over, integrated wine cooler, gas hob with fitted extractor hood above. Integrated twin ovens, tiled floor, power points, feature radiator.
A beautiful fully tiled room comprising walk in shower enclosure with mixer shower over, low level WC, his and hers sinks with mixer tap over, feature towel rail.
Built in wardrobes with sliding doors, PVC double glazed window to rear, power points, radiator, door into bathroom.
PVC double glazed window to front, built in wardrobes with sliding doors, power points, radiator.
Power points, PVC double glazed window to rear aspect, radiator.
PVC double glazed window to front, power points, radiator.
Comprising walk in shower enclosure with mixer shower attachment over, pedestal wash hand basin, low level WC, radiator.
Up and over doors, power and light.
The pin shows the exact address of the property
Energy Efficiency Rating
Very energy efficient - lower running costs
Not energy efficient - higher running costs
Current
75Potential
80CO2 Rating
Very energy efficient - lower running costs
Not energy efficient - higher running costs
