This calculator provides a guide to the amount of residential stamp duty you may pay and does not guarantee this will be the actual cost. This calculation is based on the Stamp Duty Land Tax Rates for residential properties purchased from 23rd September 2022 and second homes from 31st October 2024. For more information on Stamp Duty Land Tax, click here.
3 bedroom Detached Property for sale, Chester Road, Oakmere, Northwich, CW8
Features and Description
- Situated directly on the lakefront
- Includes a private jetty and sandy beach, offering direct access to the tranquil waters.
- Fully furnished and ready to enjoy immediately.
- Estimated rental income of £20,000–£25,000 per year.
- Spacious Interior and fully furnished
- Bright and airy open-plan lounge, kitchen, and dining area with stunning lake views.
- Three double bedrooms,and master suite with en-suite
- Stylish family bathroom serving additional bedrooms.
- Large decking area with hot tub and glass screening.
- Gated path leading to the private jetty and beach.
- Double-width parking for convenience.
- Offers the perfect blend of luxury, relaxation, and nature, ideal as a personal retreat or holiday rental investment.
Beautifully presented and sold fully furnished, this lodge is ready for you to enjoy immediately—whether you’re seeking a peaceful escape surrounded by nature or an attractive holiday rental opportunity with an estimated income potential of £20,000–£25,000 per year.
Step inside to a spacious entrance hall leading to a bright and airy open-plan lounge, breakfast kitchen and dining area, all designed to make the most of the breath-taking lake views.
The lodge features three generous double bedrooms, including a master suite with en-suite shower room, plus a stylish family bathroom serving the additional bedrooms.
Outside, the attention to detail continues with double-width parking, an extensive decking area complete with hot tub and glass screening, perfect for relaxing in the sun or entertaining family and friends. A gated path provides access down to your own private jetty and sandy beach, where you can unwind and enjoy the tranquil waters of Delamere Lake.
This is more than just a holiday home—it’s a lifestyle.
Call now to arrange your private viewing and experience lakeside living at its finest.
Location
Nestled in the heart of the Cheshire countryside, Delamere Lake Holiday Park offers a truly idyllic setting for your holiday home. Surrounded by tranquil woodland and overlooking a picturesque 120-acre lake, this exclusive park provides the perfect balance of peace, nature, and outdoor adventure. The park is located just moments from Delamere Forest, one of the North West’s most popular destinations for walking, cycling, and wildlife spotting. Despite its secluded feel, the park is well-connected, with excellent road links to Chester, Northwich, and Manchester. Local pubs, cafes, and attractions are just a short drive away, giving you the best of both countryside charm and convenience.
Brief Description
Beautifully presented and sold fully furnished, this lodge is ready for you to enjoy immediately—whether you’re seeking a peaceful escape surrounded by nature or an attractive holiday rental opportunity with an estimated income potential of £20,000–£25,000 per year.Step inside to a spacious entrance hall leading to a bright and airy open-plan lounge, breakfast kitchen and dining area, all designed to make the most of the breath-taking lake views.The lodge features three generous double bedrooms, including a master suite with en-suite shower room, plus a stylish family bathroom serving the additional bedrooms.Outside, the attention to detail continues with double-width parking, an extensive decking area complete with hot tub and glass screening, perfect for relaxing in the sun or entertaining family and friends. A gated path provides access down to your own private jetty and sandy beach, where you can unwind and enjoy the tranquil waters of Delamere Lake.This is more than just a holiday home—it’s a lifestyle.Call now to arrange your private viewing and experience lakeside living at its finest.
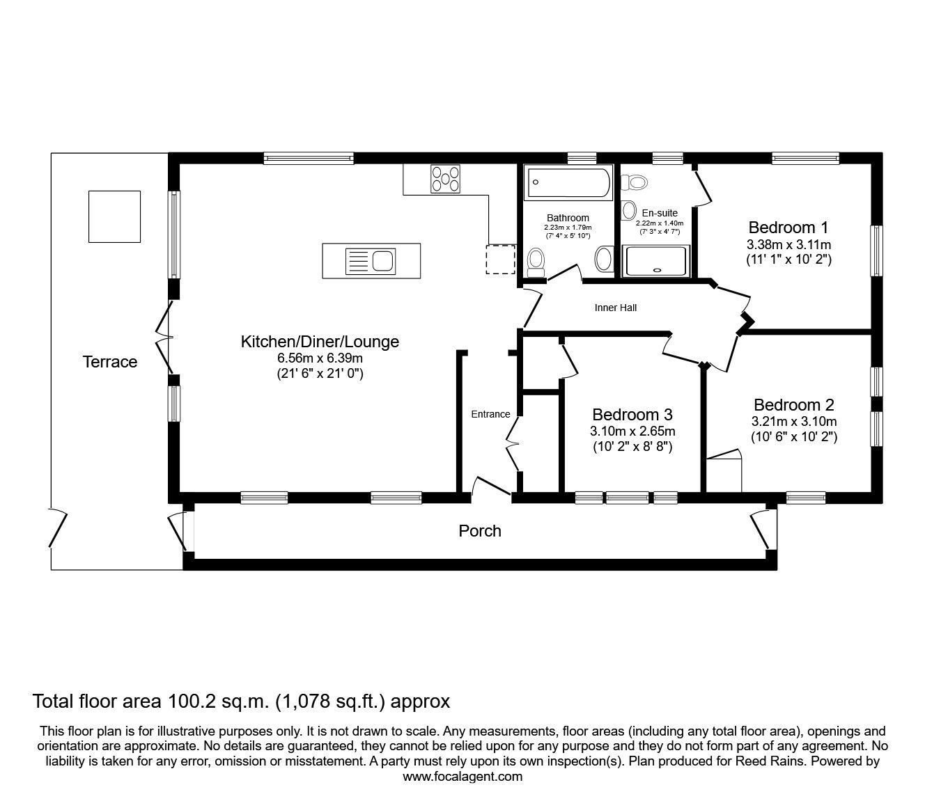
Open Plan Lounge Kitchen Diner
21'6" x 20'12" (6.56m x 6.39m)
Master Bedroom
11'1" x 10'2" (3.38m x 3.11m)
Bedroom 2
10'6" x 10'2" (3.21m x 3.10m)
Bedroom 3
10'2" x 9'5" (3.10m x 2.86m)
Important Information
The Lodge is under lease to the 30th June 2042. Owners will have the option to renew the lease at the end of this term. Site fees: £+vat per annum as of 2025/26Rates approximately £+vat per annum as of 2025/26 . Gas and electric are provided on site and managed by Haulfryn Group.Haulfryn Group will retain 15% of the sale price in commission paid upon completion by the existing owner.
IMPORTANT NOTE TO POTENTIAL PURCHASERS:
We endeavour to make our particulars accurate and reliable, however, they do not constitute or form part of an offer or any contract and none is to be relied upon as statements of representation or fact. The services, systems and appliances listed in this specification have not been tested by us and no guarantee as to their operating ability or efficiency is given. All photographs and measurements have been taken as a guide only and are not precise. Floor plans where included are not to scale and accuracy is not guaranteed. If you require clarification or further information on any points, please contact us, especially if you are travelling some distance to view. Fixtures and fittings other than those mentioned are to be agreed with the seller.
Chester Road, Oakmere, Northwich, CW8
Additional Information
-
Property refNOR250227
-
TenureLeasehold
-
Ground RentContact the branch
-
Ground Rent ReviewContact the branch
-
Service ChargeContact the branch
Similar properties for sale by Reeds Rains Northwich
The pin shows the exact address of the property
Energy Efficiency Rating
Very energy efficient - lower running costs
Not energy efficient - higher running costs
Current
N/APotential
N/ACO2 Rating
Very energy efficient - lower running costs
Not energy efficient - higher running costs
