This calculator provides a guide to the amount of residential stamp duty you may pay and does not guarantee this will be the actual cost. This calculation is based on the Stamp Duty Land Tax Rates for residential properties purchased from 23rd September 2022 and second homes from 31st October 2024. For more information on Stamp Duty Land Tax, click here.
4 bedroom End Terrace House for sale, Brandon Street, London, SE17
Features and Description
- Being sold via ‘Secure Sale’
- Period House
- Four Bedrooms
- Two Bathrooms
- Kitchen/breakfast Room,
- Dining Room
- Rear Garden
- Immediate ‘exchange of contracts’ available
Being sold via Secure Sale online bidding. Terms & Conditions apply. Starting Bid £675,000
A unique opportunity to purchase this spacious end of terrace Victorian freehold house, offering 1,383 sq ft over three floors with rear paved garden. Ideally located within a quiet residential road, moments from Zone 1 underground/mainline stations, as well as a selection of cafes, bars and restaurants together with parks and excellent schooling.
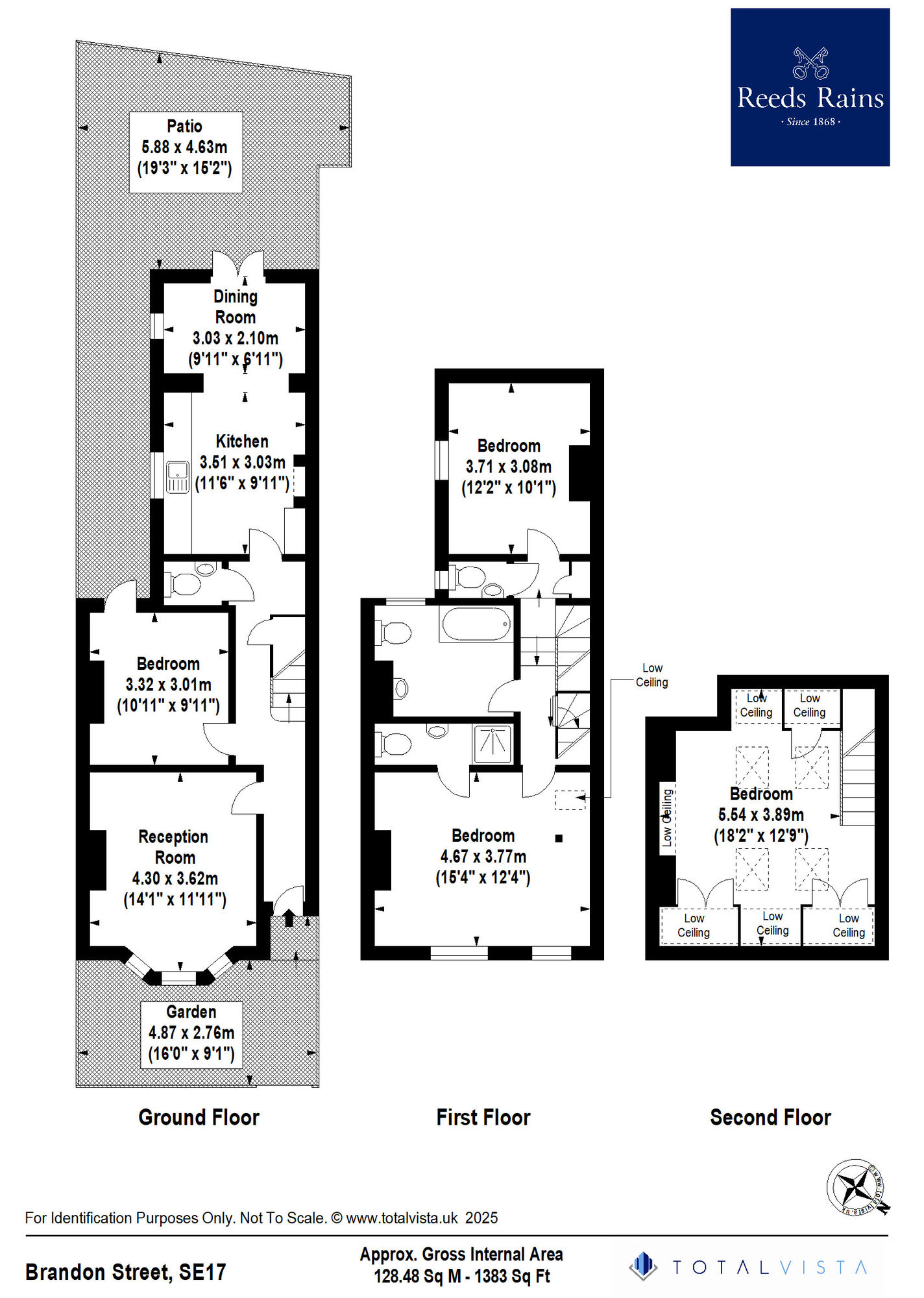
The ground floor of this characterful home features an entrance hall, generous reception room with bay window, double bedroom with doors on to garden, WC, kitchen/breakfast room with fitted cabinets and worktops, opening into a dining room with doors to a private rear courtyard garden with side return. Stairs leading up to the first floor provide access to the main bedroom with an en-suite shower room, double bedroom, spacious bathroom and separate WC. A sliding door leads to stairs ascending to a loft bedroom.
This property presents an exciting opportunity to buy a chain free freehold property, providing scope for improvement and updating.
Auctioneers Additional Comments
Pattinson Auction are working in Partnership with the marketing agent on this online auction sale and are referred to below as 'The Auctioneer'.
This auction lot is being sold either under conditional (Modern) or unconditional (Traditional) auction terms and overseen by the auctioneer in partnership with the marketing agent.
The property is available to be viewed strictly by appointment only via the Marketing Agent or The Auctioneer. Bids can be made via the Marketing Agents or via The Auctioneers website.
Please be aware that any enquiry, bid or viewing of the subject property will require your details being shared between both any marketing agent and The Auctioneer in order that all matters can be dealt with effectively.
The property is being sold via a transparent online auction.
In order to submit a bid upon any property being marketed by The Auctioneer, all bidders/buyers will be required to adhere to a verification of identity process in accordance with Anti Money Laundering procedures. Bids can be submitted at any time and from anywhere.
Our verification process is in place to ensure that AML procedure are carried out in accordance with the law.
The advertised price is commonly referred to as a ‘Starting Bid’ or ‘Guide Price’ and is accompanied by a ‘Reserve Price’. The ‘Reserve Price’ is confidential to the seller and the auctioneer and will typically be within a range above or below 10% of the ‘Guide Price’ / ‘Starting Bid’.
These prices are subject to change.
An auction can be closed at any time with the auctioneer permitting for the property (the lot) to be sold prior to the end of the auction.
A Legal Pack associated with this particular property is available to view upon request and contains details relevant to the legal documentation enabling all interested parties to make an informed decision prior to bidding. The Legal Pack will also outline the buyers’ obligations and sellers’ commitments. It is strongly advised that you seek the counsel of a solicitor prior to proceeding with any property and/or Land Title purchase.
Auctioneers Additional Comments
In order to secure the property and ensure commitment from the seller, upon exchange of contracts the successful bidder will be expected to pay a non-refundable deposit equivalent to 5% of the purchase price of the property. The deposit will be a contribution to the purchase price. A non-refundable reservation fee of up to 6% inc VAT (subject to a minimum of 6,000 inc VAT) is also required to be paid upon agreement of sale. The Reservation Fee is in addition to the agreed purchase price and consideration should be made by the purchaser in relation to any Stamp Duty Land Tax liability associated with overall purchase costs.
Both the Marketing Agent and The Auctioneer may believe necessary or beneficial to the customer to pass their details to third party service suppliers, from which a referral fee may be obtained. There is no requirement or indeed obligation to use these recommended suppliers or services.
Hallway
Doors to reception, bedroom four, separate WC, kitchen. Radiator, laminate wood flooring, dado rail, stairs to landing.
Reception
4.30 x 3.62
Double glazed windows to front, laminate wood flooring, radiator
Bedroom 4
3.32 x 3.01
Double glazed door to garden, laminate wood flooring, radiator, feature fireplace mantlepiece and storage cupboard
Seperate WC
Low flush WC, radiator, wall mounted wash hand basin and mixer tap, frosted double glazed windows to side.
Kitchen / Breakfast Room
3.51 x 3.03
Fitted with wall and base units with worktop over, single sink unit and single drainer with mixer tap, tiled splashback, spaces for gas cooker, washing machine and fridge freezer, wall-mounted boiler.
Dining Room
3.03 x 2.10
Double glazed door to garden, double glazed windows to side, tiled floor, radiator.
Landing
Doors to bedroom 2, bedroom 3, bathroom, separate WC, storage cupboard housing wall mounted boiler, carpet as laid.
Garden
4.93 x 4.60
Paved rear garden with side access.
Main Bedroom
4.67 x 3.77
Two double glazed windows to front, radiator, door to ensuite.
En-Suite Shower Room
0.90 x 2.96
Tiled shower enclosed with glass, sliding door. wall mounted shower. Vanity wash hand basin, mixer tap and storage cupboard. Tiled floor and walls, ceiling spot lights, heated towel rail, low flush WC
Bedroom 3
3.71 x 3.08
Double glazed windows to side, carpet as laid, radiator
Bathroom
3.04 x 2.36
Panelled bath with mixer tap and wall mounted shower over, glass shower screen, low flush WC, wash hand basin with vanity unit and mixer tap, frosted window to rear. Tiled floor and walls, inset ceiling lights.
Loft Bedroom
5.54 (max) x 3.89
Four velux window blinds, storage cupboard, carpet as laid, radiator.
Seperate WC
0.80 x 1.32
Low flush WC, frosted double glazed windows to side, wall mounted wash hand basin and mixer tap.
Tenure
Freehold
IMPORTANT NOTE TO POTENTIAL PURCHASERS:
We endeavour to make our particulars accurate and reliable, however, they do not constitute or form part of an offer or any contract and none is to be relied upon as statements of representation or fact. The services, systems and appliances listed in this specification have not been tested by us and no guarantee as to their operating ability or efficiency is given. All photographs and measurements have been taken as a guide only and are not precise. Floor plans where included are not to scale and accuracy is not guaranteed. If you require clarification or further information on any points, please contact us, especially if you are travelling some distance to view. Fixtures and fittings other than those mentioned are to be agreed with the seller.
Brandon Street, London, SE17
Additional Information
-
Property refKEI250052
-
EPCD
-
TenureFreehold
-
Council TaxD
-
Local authoritySouthwark Council
Similar properties for sale by Reeds Rains Kennington
Doors to reception, bedroom four, separate WC, kitchen. Radiator, laminate wood flooring, dado rail, stairs to landing.
Double glazed windows to front, laminate wood flooring, radiator
Fitted with wall and base units with worktop over, single sink unit and single drainer with mixer tap, tiled splashback, spaces for gas cooker, washing machine and fridge freezer, wall-mounted boiler.
Double glazed door to garden, double glazed windows to side, tiled floor, radiator.
Tiled shower enclosed with glass, sliding door. wall mounted shower. Vanity wash hand basin, mixer tap and storage cupboard. Tiled floor and walls, ceiling spot lights, heated towel rail, low flush WC
Panelled bath with mixer tap and wall mounted shower over, glass shower screen, low flush WC, wash hand basin with vanity unit and mixer tap, frosted window to rear. Tiled floor and walls, inset ceiling lights.
The pin shows the exact address of the property
Energy Efficiency Rating
Very energy efficient - lower running costs
Not energy efficient - higher running costs
Current
58Potential
79CO2 Rating
Very energy efficient - lower running costs
Not energy efficient - higher running costs
