This calculator provides a guide to the amount of residential stamp duty you may pay and does not guarantee this will be the actual cost. This calculation is based on the Stamp Duty Land Tax Rates for residential properties purchased from 23rd September 2022 and second homes from 31st October 2024. For more information on Stamp Duty Land Tax, click here.























3 bedroom End Terrace House for sale, Marshall Court, Ashton-under-Lyne, Greater Manchester, OL6
Features and Description
- Superbly Presented
- Large Storage/Project Room
- Great Location
- Driveway Parking and Gardens
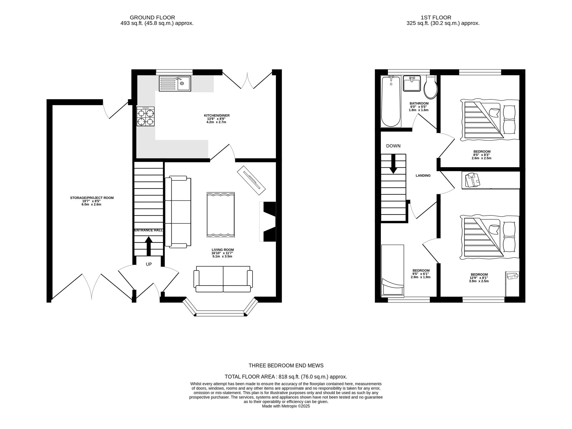
Offered for sale with NO VENDOR CHAIN this three bedroom end mews property is situated on a small modern development in the desirable Cockbrook area of Ashton under Lyne. Superbly presented throughout, the property boasts gas central heating, UPVC double glazing and has the added advantage of a large integral multi-purpose storage room. The property would be an ideal acquisition for professionals or young and growing families who are seeking a property which is ready to move into and enjoy. The spacious accommodation briefly comprises; entrance hall, large multi-purpose storage room, lounge and dining kitchen to the ground floor. To the first floor there are three bedrooms and a bathroom. The property is complemented to the exterior by a large driveway to the front which provides parking for several vehicles. To the rear is a good sized, low maintenance garden with planted borders, which is enclosed by wooden fencing. There is an access gate to the side and the garden has the added advantage of not being overlooked to the rear. EPC Grade C.
Entrance Hall
Stairs to first floor, doors to multi-purpose storage room and lounge.
Lounge
3.53 x 5.13
UPVC double glazed bay window to front aspect, gas fire set in a feature surround, understairs storage cupboard, door to dining kitchen.
Dining Kitchen
4.196 x 2.67
Fitted with a range of white base units and wall mounted storage cupboards complemented by laminated worktops and splashbacks, integrated fridge freezer and dishwasher, double electric oven and integrated microwave, five ring gas hob with illuminated extractor unit and matching glass splashback, stainless steel sink and drainer with chrome mixer tap over, space for washing machine, UPVC double glazed window to rear aspect, radiator, built-in breakfast bar, UPVC double glazed French doors to rear garden.
Attached Storage Room
2.57 x 5.97
Double UPVC doors to front aspect, UPVC door to rear garden, radiator.
Landing
Loft Access, doors to all first floor rooms.
Bedroom 1
2.46 x 3.89
Fitted with a range of wardrobes and drawers, radiator, UPVC double glazed window to front aspect.
Bedroom 2
2.51 x 2.57
UPVC double glazed window to rear aspect, radiator.
Bedroom 3
1.85 x 2.87
UPVC double glazed window to front aspect, radiator, built-in cupboard housing Worcestor gas fired combination boiler.
Bathroom
1.83 x 1.65
Fitted with a three piece suite comprising WC, wall hung wash basin and panelled bath with shower over, part tiled walls, radiator, UPVC double glazed window to rear aspect.
Exterior
The property is complemented to the exterior by a large driveway to the front which provides parking for several vehicles. To the rear is a good sized, low maintenance garden with planted borders, which is enclosed by wooden fencing. There is an access gate to the side and the garden has the added advantage of not being overlooked to the rear.
IMPORTANT NOTE TO POTENTIAL PURCHASERS:
We endeavour to make our particulars accurate and reliable, however, they do not constitute or form part of an offer or any contract and none is to be relied upon as statements of representation or fact. The services, systems and appliances listed in this specification have not been tested by us and no guarantee as to their operating ability or efficiency is given. All photographs and measurements have been taken as a guide only and are not precise. Floor plans where included are not to scale and accuracy is not guaranteed. If you require clarification or further information on any points, please contact us, especially if you are travelling some distance to view. Fixtures and fittings other than those mentioned are to be agreed with the seller.
Marshall Court, Ashton-under-Lyne, Greater Manchester, OL6

Additional Information
-
Property refALY250272
-
EPCC
-
TenureFreehold
-
Council TaxB

Similar properties for sale by Reeds Rains Ashton-under-Lyne























The pin shows the exact address of the property
Energy Efficiency Rating
Very energy efficient - lower running costs
Not energy efficient - higher running costs
Current
74Potential
88CO2 Rating
Very energy efficient - lower running costs
Not energy efficient - higher running costs