This calculator provides a guide to the amount of residential stamp duty you may pay and does not guarantee this will be the actual cost. This calculation is based on the Stamp Duty Land Tax Rates for residential properties purchased from 23rd September 2022 and second homes from 31st October 2024. For more information on Stamp Duty Land Tax, click here.
2 bedroom End Terrace House for sale, North End, Flamborough, East Yorkshire, YO15
Features and Description
- TWO BEDROOM COTTAGE
- BEAUTIFULLY PRESENTED THROUGHOUT
- ENCLOSED REAR GARDEN
- VILLAGE LOCATION
- NO ONWARD CHAIN
This beautifully presented two bedroom end-terrace cottage offers stylish and comfortable living in the heart of the highly sought-after coastal village of Flamborough. Ideal for first-time buyers, downsizers or those seeking a coastal retreat, the property is ready to move straight into and enjoys the added benefit of an enclosed rear garden and brick built storage shed.
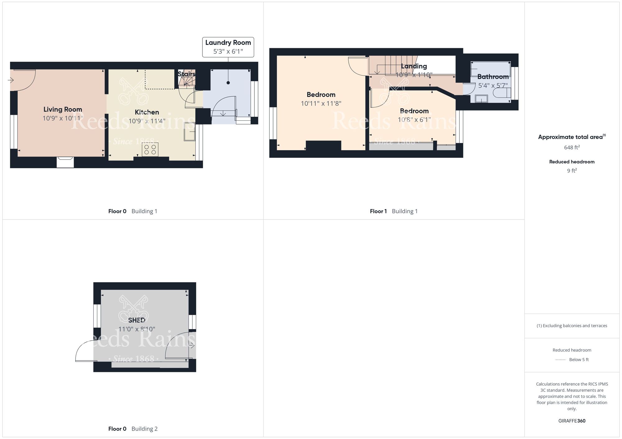
The accommodation briefly comprises; a welcoming living room featuring a charming fireplace with stove, creating a cosy focal point to the space. To the rear is a well-appointed kitchen and utility room with a range of fitted units and space for appliances, along with access to the rear garden.
To the first floor are two well-proportioned bedrooms and a family bathroom fitted with a modern suite. The property is neutrally decorated throughout, offering a light and airy feel.
Externally, the home benefits from an enclosed rear garden providing a private outdoor space ideal for relaxing or entertaining. There is also a useful brick built storage shed, perfect for additional storage, bikes or gardening equipment.
Located in the popular village of Flamborough, the property is within easy reach of local amenities, shops, public houses and stunning coastal walks including the famous Flamborough Head and surrounding beaches.
Early viewing is highly recommended to fully appreciate this delightful cottage.
Agent's Note
HMRC is a supervisory body for money laundering regulations, of which all estate agents need to be registered with. As part of this, there are multiple requirements that agents must rigorously and consistently meet to ensure they stay compliant with the regulations and protect their clients. To do this, we use an identity verification service, approved by the Government as part of the Digital Identity and Attributes Trust Framework (DIATF). This method and the process we follow to ensure compliance for your transaction come with significant time, financial and legal implications hence a portion of this is passed on. We elected for this verification process due to the speed, certainty, and accuracy it delivers. This helps us to protect all our client's interests by using the most advanced verification process to help prevent the impacts of money laundering alongside our internal manual policies and procedures while staying compliant with HMRC. The administrative charge for this process is £40 plus VAT for a sole purchaser, £65 plus VAT for two purchasers and £75 plus VAT three or more purchasers.
Agent's Note
HMRC is a supervisory body for money laundering regulations, of which all estate agents need to be registered with. As part of this, there are multiple requirements that agents must rigorously and consistently meet to ensure they stay compliant with the regulations and protect their clients. To do this, we use an identity verification service, approved by the Government as part of the Digital Identity and Attributes Trust Framework (DIATF). This method and the process we follow to ensure compliance for your transaction come with significant time, financial and legal implications hence a portion of this is passed on. We elected for this verification process due to the speed, certainty, and accuracy it delivers. This helps us to protect all our client's interests by using the most advanced verification process to help prevent the impacts of money laundering alongside our internal manual policies and procedures while staying compliant with HMRC. The administrative charge for this process is £40 plus VAT for a sole purchaser, £65 plus VAT for two purchasers and £75 plus VAT three or more purchasers.
IMPORTANT NOTE TO POTENTIAL PURCHASERS:
We endeavour to make our particulars accurate and reliable, however, they do not constitute or form part of an offer or any contract and none is to be relied upon as statements of representation or fact. The services, systems and appliances listed in this specification have not been tested by us and no guarantee as to their operating ability or efficiency is given. All photographs and measurements have been taken as a guide only and are not precise. Floor plans where included are not to scale and accuracy is not guaranteed. If you require clarification or further information on any points, please contact us, especially if you are travelling some distance to view. Fixtures and fittings other than those mentioned are to be agreed with the seller.
North End, Flamborough, East Yorkshire, YO15
Additional Information
-
Property refBRI260052
-
EPCE
-
TenureFreehold
-
Council TaxA
-
Local authorityEast Riding of Yorkshire Council
Similar properties for sale by Reeds Rains Bridlington
The pin shows the exact address of the property
Energy Efficiency Rating
Very energy efficient - lower running costs
Not energy efficient - higher running costs
Current
40Potential
87CO2 Rating
Very energy efficient - lower running costs
Not energy efficient - higher running costs
