This calculator provides a guide to the amount of residential stamp duty you may pay and does not guarantee this will be the actual cost. This calculation is based on the Stamp Duty Land Tax Rates for residential properties purchased from 23rd September 2022 and second homes from 31st October 2024. For more information on Stamp Duty Land Tax, click here.
5 bedroom End Terrace House for sale, Upper Clifton, Bangor, County Down, BT20
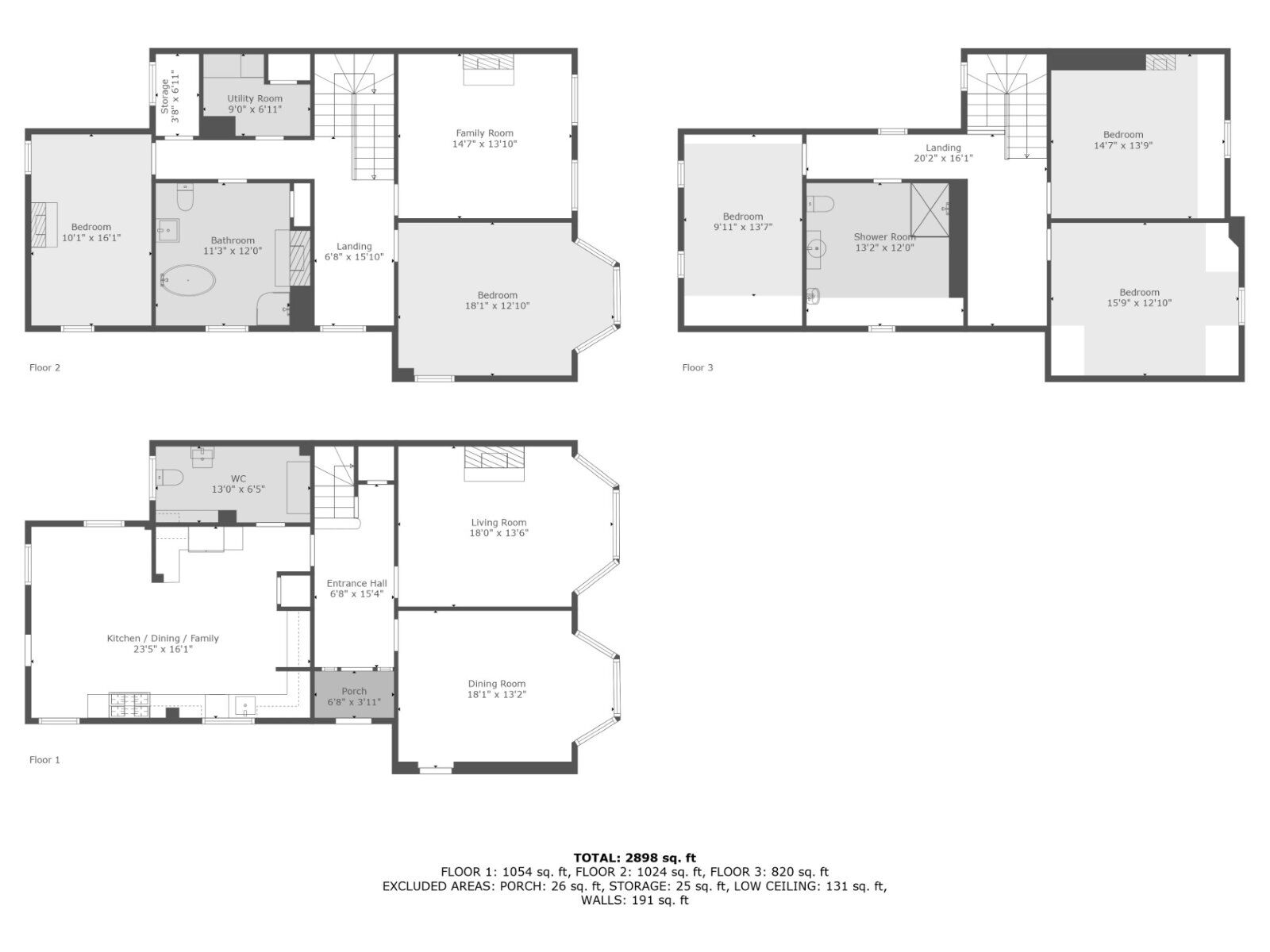
Features and Description
Covered Porch
Hardwood front door with double glazed top light.
Entrance Porch
Quarry tiled floor, glazed door with stained glass leaded side panels to reception hall.
Reception Hall
Marble tiled floor cornice ceiling and under stairs storage.
Dining Room
18'1" x 13'2" (5.50m x 4.01m)
Ceramic tiled floor, picture rail cornice ceiling, feature shutters.
Lounge
18'0" x 13'6" (5.49m x 4.11m)
Marble tiled floor, feature fireplace with slate hearth, picture rail, cornice ceiling and feature shutters.
Cloakroom / Utility
12'12" x 6'5" (3.96m x 1.96m)
Ceramic tiled floor, low, flush, WC pedestal, wash hand basin with tiled splash back and built in storage.
Kitchen open plan to Family Room
23'5" x 16'1" (7.14m x 4.90m)
Single drainer, 1.5 stainless steel sink unit with mixer taps, excellent range of high and low level units with laminated work surfaces, range recess, chimney extractor fan, part tiled walls, ceramic tiled floor, plumbed for dishwasher. Wine Rack, casual dining area, plate rack, open plan to family area with sea views and uPVC, double glazed door to rear garden.
First Floor Landing
Picture rail, cornice ceiling, solid oak distressed floor.
Laundry Room
8'12" x 6'11" (2.74m x 2.10m)
Wood panelled walls, plumbed for washing machine, built-in storage and Velux window and hot press with storage above
Luggage Room
6'11" x 3'8" (2.10m x 1.12m)
Ideal storage space.
First Floor Drawing Room
14'7" x 13'10" (4.45m x 4.22m)
Feature wooden fireplace with cast iron horseshoe inset and slate hearth. Feature shutters and picture rail.
Bedroom 1
18'1" x 12'10" (5.50m x 3.90m)
Double aspect with bay window and sea views
Bedroom 2 / Office Space
16'1" x 10'1" (4.90m x 3.07m)
Feature granite fireplace with cast iron inset and Horseshoe inset and slate hearth. Sea Views.
Bathroom
12'0" x 11'3" (3.66m x 3.43m)
White suite comprising: Ball and claw freestanding, cast iron bath, fully tiled, built in shower cubicle with thermostatically controlled shower unit and body jets, pedestal wash hand basin, low flush WC, solid pine wooden floor, picture rail, cornice ceiling, feature granite fireplace with cast iron horseshoe inset and slate hearth, built in storage cupboard.
Second Floor Landing
Twin Velux windows, study area.
Bedroom 3
15'9" x 12'10" (4.80m x 3.90m)
Access to roof space, feature ceiling and cast iron fireplace.
Bedroom 4
14'7" x 13'9" (4.45m x 4.20m)
Laminate wooden floor, feature ceiling.
Bedroom 5
13'7" x 9'11" (4.14m x 3.02m)
Exposed wooden floor, sea views.
Shower room
3.96m;2 x 3.66m
Modern white suite comprising: Fully tiled walk in shower with Triton electric shower, Vanity unit with mixer taps, dual flush WC, Bidet, Victorian style heated towel rail, part tiled walls, panelled ceiling, solid oak flooring.
Outside
Tarmac driveway accessed off Clifton Road leading to car parking for 2/3 cars.
Gardens
Front garden in loose pebbles, shrubs and boundary hedging. Enclosed courtyard to the rear of the property in patio and loose pebbles with sea views. Outside tap and light, boiler house with oil boiler and additional PVC oil tank. Gated access to the rear.
NB
CUSTOMER DUE DILIGENCE As a business carrying out estate agency work, we are required to verify the identity of both the vendor and the purchaser as outlined in the following: The Money Laundering, Terrorist Financing and Transfer of Funds (Information on the Payer) Regulations 2017 - https://www.legislation.gov.uk/uksi/2017/692/contentsTo be able to purchase a property in the United Kingdom all agents have a legal requirement to conduct Identity checks on all customers involved in the transaction to fulfil their obligations under Anti Money Laundering regulations. We outsource this check to a third party and a charge will apply of £20 + Vat for each person.
IMPORTANT NOTE TO POTENTIAL PURCHASERS:
We endeavour to make our particulars accurate and reliable, however, they do not constitute or form part of an offer or any contract and none is to be relied upon as statements of representation or fact. The services, systems and appliances listed in this specification have not been tested by us and no guarantee as to their operating ability or efficiency is given. All photographs and measurements have been taken as a guide only and are not precise. Floor plans where included are not to scale and accuracy is not guaranteed. If you require clarification or further information on any points, please contact us, especially if you are travelling some distance to view. Fixtures and fittings other than those mentioned are to be agreed with the seller.
Upper Clifton, Bangor, County Down, BT20
The pin shows the exact address of the property
Energy Efficiency Rating
Very energy efficient - lower running costs
Not energy efficient - higher running costs
Current
39Potential
62CO2 Rating
Very energy efficient - lower running costs
Not energy efficient - higher running costs
