3 bedroom End Terrace House to rent, Blanche Street, London, E16
Available Part Furnished, from 07/01/2026
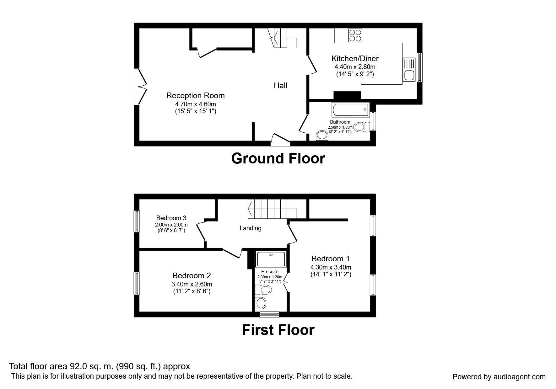
Features and Description
- 3-Bed End Of Terrace House
- EPC Grade C
- Max. No. Of Occupants Will Apply
* ZERO DEPOSIT OPTION CONSIDERED * ** AVAILABLE 29th DECEMBER TO ONE FAMILY - NO SHARERS/STUDENTS ** Viewing advised for this modern END OF TERRACE home situated within a popular part of town within easy access of Canning Town and Star Lane stations. The property benefits from OFF STREET PARKING to the front plus EN-SUITE SHOWER to bedroom one and a GREAT family sized KITCHEN/DINER.
Call us to arrange a viewing.
Entrance Hall
3.18 x 1.02
Opening out to lounge area, carpeted stairs to first floor landing.
Lounge / Dining Room
4.65 x 3.68
Double glazed patio doors to rear garden, built in storage cupboard, laminate flooring, radiator.
Kitchen
4.34 x 2.62
Double glazed window to front, fitted range of eye and base level units, roll top work surfaces, twin bowl sink unit, space for washing machine, radiator, tiled splash backs, gas cooker point, tiled flooring.
First Floor Landing
1.73 x .76
Fitted carpet, access to loft space.
Bedroom 1
4.09 x 2.84
Two double glazed windows to front, radiator, fitted carpet, door to en suite shower/WC
En-Suite Bathroom / WC
2.06 x 1.09
Double glazed window to side, walk-in shower cubicle, wash hand basin, WC, part tiled walls, tiled flooring, radiator.
Bedroom 2
3.38 x 2.44
Double glazed window to rear, radiator, laminate flooring.
Bedroom 3
2.34 x 1.93
Double glazed window to rear, radiator, laminate flooring.
Rear Garden
7.09 x 6.4
Patio area, laid to lawn, timber shed, side access.
Off Street Parking
0 x 0
For two cars to front.
Ground Floor Bathroom / WC
2.39 x 1.45
Frosted double glazed window to front, modern three piece suite, comprising of panelled bath, pedestal hand wash basin, low level WC, tiled splash backs, tiled flooring, radiator.
IMPORTANT NOTE TO POTENTIAL RENTERS:
We endeavour to make our particulars accurate and reliable, however, they do not constitute or form part of an offer or any contract and none is to be relied upon as statements of representation or fact. The services, systems and appliances listed in this specification have not been tested by us and no guarantee as to their operating ability or efficiency is given. All photographs and measurements have been taken as a guide only and are not precise. Floor plans where included are not to scale and accuracy is not guaranteed. If you require clarification or further information on any points, please contact us, especially if you are travelling some distance to view.
All properties are available for a minimum of six months, with the exception of short term accommodation. A security deposit of at least one month’s rent is required. Rent is to be paid one month in advance. It is the tenant’s responsibility to insure any personal possessions. Payment of all utilities including water rates or metered supply and Council Tax is the responsibility of the tenant in every case.
Client Money Protection is provided by Propertymark. Redress through The Property Ombudsman Scheme.
Blanche Street, London, E16
Double glazed patio doors to rear garden, built in storage cupboard, laminate flooring, radiator.
Two double glazed windows to front, radiator, fitted carpet, door to en suite shower/WC
Double glazed window to side, walk-in shower cubicle, wash hand basin, WC, part tiled walls, tiled flooring, radiator.
Double glazed window to rear, radiator, laminate flooring.
Double glazed window to rear, radiator, laminate flooring.
Patio area, laid to lawn, timber shed, side access.
Frosted double glazed window to front, modern three piece suite, comprising of panelled bath, pedestal hand wash basin, low level WC, tiled splash backs, tiled flooring, radiator.
The pin shows the exact address of the property
Energy Efficiency Rating
Very energy efficient - lower running costs
Not energy efficient - higher running costs
Current
60Potential
79CO2 Rating
Very energy efficient - lower running costs
Not energy efficient - higher running costs
