This calculator provides a guide to the amount of residential stamp duty you may pay and does not guarantee this will be the actual cost. This calculation is based on the Stamp Duty Land Tax Rates for residential properties purchased from 23rd September 2022 and second homes from 31st October 2024. For more information on Stamp Duty Land Tax, click here.








2 bedroom Flat for sale, Balmoral Place, Halifax, West Yorkshire, HX1
Features and Description
- Modern Ground Floor Apartment
- Two Double Bedrooms
- Lounge
- Breakfast Kitchen
- Bathroom
- Shower Room
- Gated Resident Parking
- NO UPWARD CHAIN
Offered for sale is this modern ground floor apartment which is within easy walking distance of Halifax town centre. The apartment has the benefit of a gated car park.
The accommodation comprises of an open plan lounge with a dining area and a modern fitted breakfast kitchen, two double bedrooms, a bathroom and an en-suite shower room.
The property gives easy access to the local amenities and transport links of Halifax and is available with no upward chain.
Calderdale Council
Council Tax Band A
EPC Rating D
Communal Entrance
Secure entry to the communal entrance hall
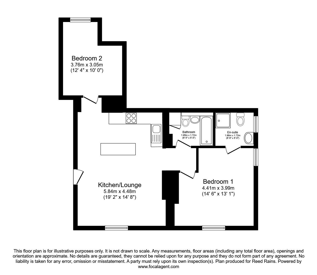
Open Plan Lounge & Breakfast Kitchen
19'2" x 14'8" (5.84m x 4.48m)
The lounge area has a window to the front and space for a dining table.The modern fitted kitchen provides wall and base level units with complementary work surfaces and a matching breakfast bar. Electric oven and hob with an extractor over, integrated dishwasher, space for a fridge freezer and plumbed for a washing machine.
Bedroom 2
14'6" x 13'1" (4.41m x 3.99m)
A double bedroom with a window to the rear
Bathroom
A three piece bathroom with a panelled bath and shower over, WC and a wash basin
Bedroom 1
12'4" x 10'0" (3.76m x 3.05m)
Second double bedroom with windows to two aspects
En-Suite Shower Room
With a double walk in shower, wash basin and a WC. Window
Outside
Secure resident parking
Agents Notes
To be able to purchase a property in the United Kingdom all agents have a legal requirement to conduct Identity checks on all customers involved in the transaction to fulfil their obligations under Anti Money Laundering regulations. We outsource this check to a third party and a charge will apply. Ask the branch for further details.
IMPORTANT NOTE TO POTENTIAL PURCHASERS:
We endeavour to make our particulars accurate and reliable, however, they do not constitute or form part of an offer or any contract and none is to be relied upon as statements of representation or fact. The services, systems and appliances listed in this specification have not been tested by us and no guarantee as to their operating ability or efficiency is given. All photographs and measurements have been taken as a guide only and are not precise. Floor plans where included are not to scale and accuracy is not guaranteed. If you require clarification or further information on any points, please contact us, especially if you are travelling some distance to view. Fixtures and fittings other than those mentioned are to be agreed with the seller.
Balmoral Place, Halifax, West Yorkshire, HX1

Additional Information
-
Property refHAL250478
-
EPCD
-
TenureLeasehold
-
Council TaxA
-
Local authorityCalderdale County Council
-
Ground Rent£90
-
Ground Rent ReviewContact the branch
-
Service Charge£480

Similar properties for sale by Reeds Rains Halifax








The pin shows the exact address of the property
Energy Efficiency Rating
Very energy efficient - lower running costs
Not energy efficient - higher running costs
Current
63Potential
63CO2 Rating
Very energy efficient - lower running costs
Not energy efficient - higher running costs