This calculator provides a guide to the amount of residential stamp duty you may pay and does not guarantee this will be the actual cost. This calculation is based on the Stamp Duty Land Tax Rates for residential properties purchased from 23rd September 2022 and second homes from 31st October 2024. For more information on Stamp Duty Land Tax, click here.
2 bedroom Flat for sale, Freshwater View, Northwich, Cheshire, CW8
Features and Description
- First Floor Apartment
- River & Marina Views
- Being Sold Chain Free
- Two Double Bedrooms
- Open Plan Lounge Kitchen Diner
- En-Suite Facility
- Allocated Parking
- Doorstep to Amenities
- Communal Gardens
- Viewing Essential
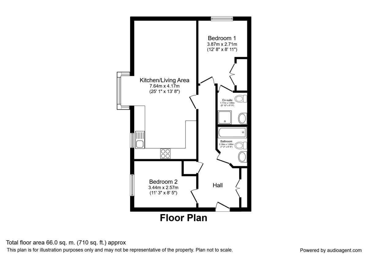
As soon as you step inside, you'll be greeted by a spacious entrance hall which allows access to all accommodation. There is an open-plan reception room that is both spacious and inviting. It features a dining area with a bay window, offering an excellent venue for entertaining guests or enjoying family meals. With unspoilt views across the marina, this space is sure to impress and provide a tranquil environment to relax and unwind.
The apartment also boasts a well-appointed open-plan kitchen equipped with integrated appliances, ready for you to prepare your favourite meals. The kitchen seamlessly blends with the reception room, enhancing the free-flowing layout of the property and creating a sense of unity and space.
The property hosts two generously sized bedrooms. The master bedroom is a haven of relaxation, complete with its own En-suite for added comfort and convenience. The second bedroom is a comfortable double room, perfect for family or guests.
Located in close proximity to local amenities and nearby parks, this flat offers an ideal balance of city living and natural charm. The unique feature of this property is its stunning river and marina views, enriching your daily living experience with serene waterscapes.
Don't miss this chance to own a piece of this wonderful location. This is more than a home; it's a lifestyle.
Location, Location, Location
Freshwater View is a charming residential development located just south of Northwich town centre. Nestled alongside the tranquil banks of the River Weaver and close to the scenic Marbury Country Park, Freshwater View offers a lovely blend of waterside living and easy access to green spaces. With local amenities on the door step and easy access for the commuter, families, or anyone who values a blend of nature and convenience.
Communal Entrance
With access into the building and communal stairs leading to all levels.
Entrance Hall
A galleried style hallway which allows access to all accommodation including storage cupboard, phone intercom to allow visitors into the building and radiator.
Open Plan Lounge Diner Kitchen
This open plan aspect is ideal for someone to create and position their own furnishings with ease. Double glazed window to the front elevation over looking the River and Marina, along with a double glazed bay window to the side, radiator and opening to the kitchen area where a comprehensive range of base and wall units with work surface over can be found. Appliances included are fridge freezer, washing machine, dishwasher, electric oven and four ring hob with extractor hood over, inset stainless steel one and a half bowl sink unit with drainer, complementary wall tiling around units, double glazed window to the side and wall mounted gas central heating boiler.
Master Bedroom
With a double glazed window to the front elevation, radiator, built in wardrobe and access through to the En-Suite facility.
En-Suite Shower Room
A three piece suite consisting of a enclosed tiled shower cubicle, wash hand basin and low level WC, complementary wall tiling and radiator.
Bedroom 2
With a double glazed window to the side elevation and radiator.
Main Bathroom
A three piece suite consisting of a panelled bath with shower over, wash hand basin and low level WC, complementary wall tiling around suite and radiator.
External
The is an allocated parking space denoted outside the building and communal garden area's with views over the river with seating area.
Agent Note
To be able to purchase a property in the United Kingdom all agents have a legal requirement to conduct Identity checks on all customers involved in the transaction to fulfil their obligations under Anti Money Laundering regulations. We outsource this check to a third party and a charge will apply. Ask the branch for further details.
IMPORTANT NOTE TO POTENTIAL PURCHASERS:
We endeavour to make our particulars accurate and reliable, however, they do not constitute or form part of an offer or any contract and none is to be relied upon as statements of representation or fact. The services, systems and appliances listed in this specification have not been tested by us and no guarantee as to their operating ability or efficiency is given. All photographs and measurements have been taken as a guide only and are not precise. Floor plans where included are not to scale and accuracy is not guaranteed. If you require clarification or further information on any points, please contact us, especially if you are travelling some distance to view. Fixtures and fittings other than those mentioned are to be agreed with the seller.
Freshwater View, Northwich, Cheshire, CW8
Additional Information
-
Property refNOR250148
-
EPCC
-
TenureLeasehold
-
Council TaxC
-
Local authorityCheshire West and Chester Council
-
Ground RentContact the branch
-
Ground Rent ReviewContact the branch
-
Service ChargeContact the branch
Similar properties for sale by Reeds Rains Northwich
The pin shows the exact address of the property
Energy Efficiency Rating
Very energy efficient - lower running costs
Not energy efficient - higher running costs
Current
80Potential
82CO2 Rating
Very energy efficient - lower running costs
Not energy efficient - higher running costs
