This calculator provides a guide to the amount of residential stamp duty you may pay and does not guarantee this will be the actual cost. This calculation is based on the Stamp Duty Land Tax Rates for residential properties purchased from 23rd September 2022 and second homes from 31st October 2024. For more information on Stamp Duty Land Tax, click here.
2 bedroom Flat for sale, Lower Marsh, London, SE1
Features and Description
- Share of Freehold
- Two Bedrooms
- 915 SQ FT
- Bathroom and En-suite Shower Room
- Under Floor Heating
- Chain Free
A stylish, 915 sq ft, two bedroom / two bathroom apartment located minutes from Waterloo station, offering a rare Share of Freehold on eclectic Lower Marsh, a popular pedestrian priority street with independent cafes, restaurants, and a thriving weekday street food market.
Built in 2012, the 8-apartment development was designed and constructed by an Italian company, whose attention to detail is notable from the moment you enter. Every aspect has been considered, from the lighting in the communal hallway to the beautiful wood flooring and glass balustrades with glass insert rear panelling on the steps, leading up to the apartments.
Situated on the first floor, the apartment resides towards the rear of the building and offers two double bedrooms. The main bedroom has an ensuite bathroom, additional space for a desk or dressing table, and floor-to-ceiling double glazed windows. One wall is dedicated to a bank of seamlessly fitted wardrobes providing ample storage space.
The en-suite and bathroom are finished in Italian tiles and consist of: a double walk- in shower, bath, heated towel rail, toilet, bidet, and large wash basins with integrated storage underneath. The bathroom also houses an integrated washing machine, reducing noise in the kitchen.
Off the hallway, there is an additional study area with built-in bookshelves and desk. The bespoke Italian kitchen is fully integrated with fitted Bosch appliances and a filter attached to the kitchen sink. Off this, the room opens out into a spacious dining and lounge area. Two large, south-facing, double-paned windows illuminate the room all year round.
Hallway
Doors to bedrooms and bathroom, wood flooring with underfloor heating, ceiling spot lights, entry phone.
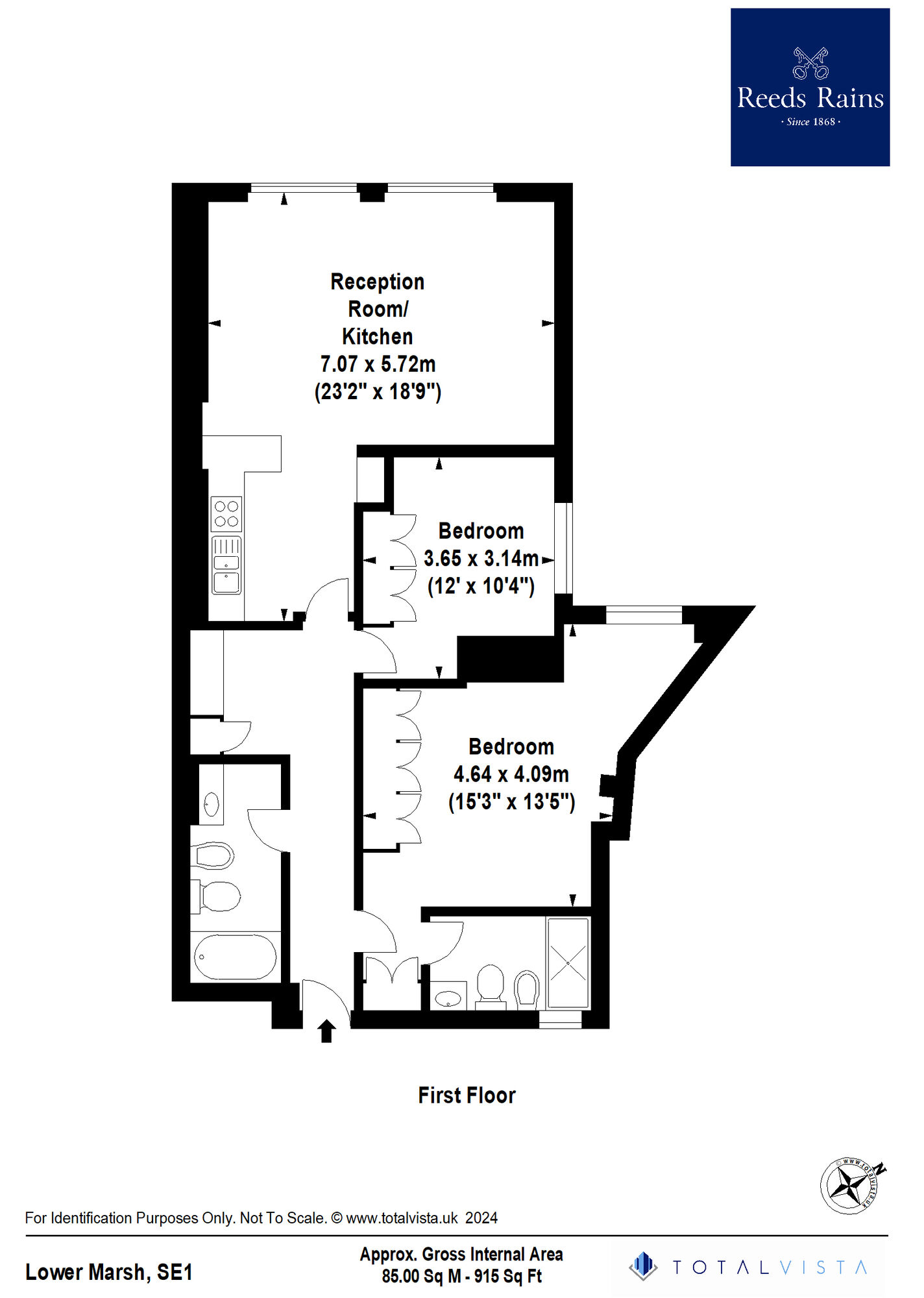
Reception Room
23'2" x 18'9" (7.07m x 5.72m)
Two sliding double glazed windows to rear, wood flooring with under floor heating, ceiling spot lights.
Kitchen Area
10'3" x 7'10" (3.13m x 2.40m)
Italian fitted kitchen with a range of wall and base units with glass worktop over, four ring ceramic hob with extractor hood over and electric oven under. Stainless steel one and half bowl sink with single drainer and swan neck mixer tap, under sink filtration system for drinking water, glass splash back. Integrated fridge/freezer, integrated microwave and dishwasher. Underfloor heating, recessed LED ceiling spot lights
Study Area
6'9" x 5'9" (2.06m x 1.74m)
Built in reclaimed wood desk with shelving, wood flooring with under floor heating ceiling spot lights.
Main Bedroom
3.64m max x 4.09m
Wall to wall built in wardrobe, floor to ceiling double glazed windows to rear, wood flooring with under floor heating, ceiling spot lights.
En-Suite Shower Room
2.65m 1.50m
Glass shower cubicle with wall mounted shower, wall mounted wash hand basin with mixer tap, inset vanity unit with storage under, low flush WC with concealed cistern, bidet, extractor fan, heated towel rail, recessed LED ceiling lights, frosted window to front. Electric underfloor heating.
Bedroom 2
3.65m max 3.14m
Sliding double glazed window to rear, built in wardrobes, ceiling spot lights, wood flooring with under floor heating.
Bathroom
3.64m 1.51m
Panelled bath with glass shower screen and wall mounted shower over, sink unit with mixer tap inset vanity unit, bidet, low flush WC with concealed cistern, underfloor heating, storage cupboard with washing machine, extractor fan, recessed LED ceiling lights. Electric underfloor heating.
Tenure
Share of Freehold with 999 year lease from 01/11/2011
Service Charge
£2,134 every six months which includes contribution towards a sinking fund for any repairs.
IMPORTANT NOTE TO POTENTIAL PURCHASERS:
We endeavour to make our particulars accurate and reliable, however, they do not constitute or form part of an offer or any contract and none is to be relied upon as statements of representation or fact. The services, systems and appliances listed in this specification have not been tested by us and no guarantee as to their operating ability or efficiency is given. All photographs and measurements have been taken as a guide only and are not precise. Floor plans where included are not to scale and accuracy is not guaranteed. If you require clarification or further information on any points, please contact us, especially if you are travelling some distance to view. Fixtures and fittings other than those mentioned are to be agreed with the seller.
Lower Marsh, London, SE1
Additional Information
-
Property refKEI240045
-
EPCC
-
TenureShare of Freehold
-
Council TaxE
-
Local authorityLambeth Council Tax
Similar properties for sale by Reeds Rains Kennington
Two sliding double glazed windows to rear, wood flooring with under floor heating, ceiling spot lights.
Italian fitted kitchen with a range of wall and base units with glass worktop over, four ring ceramic hob with extractor hood over and electric oven under. Stainless steel one and half bowl sink with single drainer and swan neck mixer tap, under sink filtration system for drinking water, glass splash back. Integrated fridge/freezer, integrated microwave and dishwasher. Underfloor heating, recessed LED ceiling spot lights
Built in reclaimed wood desk with shelving, wood flooring with under floor heating ceiling spot lights.
Panelled bath with glass shower screen and wall mounted shower over, sink unit with mixer tap inset vanity unit, bidet, low flush WC with concealed cistern, underfloor heating, storage cupboard with washing machine, extractor fan, recessed LED ceiling lights. Electric underfloor heating.
The pin shows the exact address of the property
Energy Efficiency Rating
Very energy efficient - lower running costs
Not energy efficient - higher running costs
Current
78Potential
78CO2 Rating
Very energy efficient - lower running costs
Not energy efficient - higher running costs
