This calculator provides a guide to the amount of residential stamp duty you may pay and does not guarantee this will be the actual cost. This calculation is based on the Stamp Duty Land Tax Rates for residential properties purchased from 23rd September 2022 and second homes from 31st October 2024. For more information on Stamp Duty Land Tax, click here.
1 bedroom Flat for sale, Penton Place, London, SE17
Features and Description
- CASH BUYERS ONLY
- 650 SQ FT
- Unmodernised
- One Bedroom Flat
- Garden
- Period Building
- Chain Free
Available for sale with no onward chain is this large one double bedroom period apartment situated on the ground floor of the iconic Pullens Buildings.
This property requires full renovation and could be reconfigured into a two bedroom. This light and airy apartment boasts a wealth of charm and character associated with its heritage.
The property is situated in a sought after residential location and is close to the wide selection of amenities available in Elephant Park and on the Walworth Road. Kennington Tube Station (Northern Line), Elephant & Castle Station (Bakerloo Line, Northern Line and Overground) and a multitude of bus routes into the city are a short walk away. The green space of Pullens Gardens is on the doorstep and Pasley Park can also be found nearby.
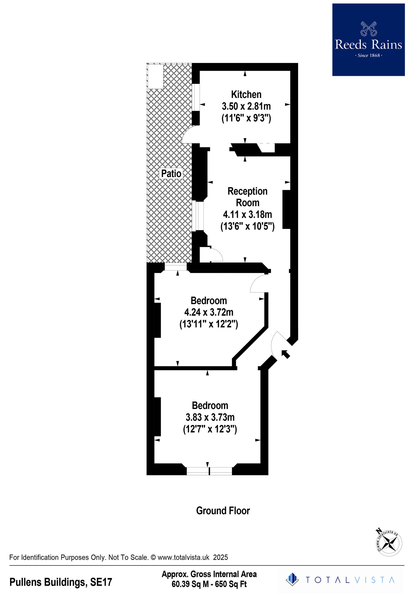
Accommodation comprises an entrance hall, one double bedroom, large living room, kitchen-diner, bathroom and courtyard Garden.
Hallway
Doors to bedroom, reception, kitchen / breakfast room, wooden flooring.
Reception Room
4.11 x 3.59
Two sash windows to front, coved ceiling, fitted fireplace with exposed brick chimney breast.
Bedroom
3.81 x 4.26
Sash window to rear, fitted fireplace with exposed brick. wooden flooring.
Kitchen Area
3.22 x 4.13
Sash window to rear, radiator, fitted fireplace, door to bathroom.
Bathroom Area
3.34 x 2.87
Frosted window to rear, wall mounted boiler, door to garden.
Garden
7.6 x 1.85
Paved patio
Tenure
Leasehold 125 Years from 10/04/1989
Ground Rent
£10 p.a
Service Charge
Awaiting Confirmation
IMPORTANT NOTE TO POTENTIAL PURCHASERS:
We endeavour to make our particulars accurate and reliable, however, they do not constitute or form part of an offer or any contract and none is to be relied upon as statements of representation or fact. The services, systems and appliances listed in this specification have not been tested by us and no guarantee as to their operating ability or efficiency is given. All photographs and measurements have been taken as a guide only and are not precise. Floor plans where included are not to scale and accuracy is not guaranteed. If you require clarification or further information on any points, please contact us, especially if you are travelling some distance to view. Fixtures and fittings other than those mentioned are to be agreed with the seller.
Penton Place, London, SE17
Additional Information
-
Property refKEI250061
-
EPCD
-
TenureLeasehold
-
Lease length88 years
-
Council TaxA
-
Local authoritySouthwark Council
-
Ground Rent£10
-
Ground Rent ReviewContact the branch
-
Service ChargeContact the branch
Similar properties for sale by Reeds Rains Kennington
The pin shows the exact address of the property
Energy Efficiency Rating
Very energy efficient - lower running costs
Not energy efficient - higher running costs
Current
60Potential
73CO2 Rating
Very energy efficient - lower running costs
Not energy efficient - higher running costs
