This calculator provides a guide to the amount of residential stamp duty you may pay and does not guarantee this will be the actual cost. This calculation is based on the Stamp Duty Land Tax Rates for residential properties purchased from 23rd September 2022 and second homes from 31st October 2024. For more information on Stamp Duty Land Tax, click here.
2 bedroom Flat for sale, South Marine Drive, Bridlington, East Yorkshire, YO15
Features and Description
- SEAFRONT LOCATION
- RECENTLY RENOVATED THROUGHOUT
- TWO BEDROOMS
- NO ONWARD CHAIN
A fantastic opportunity to buy a modern two bedroom apartment on Bridlington seafront.
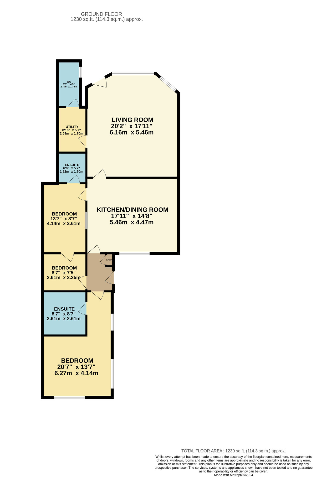
Having been recently renovated the accommodation comprises a bright and spacious living room, large kitchen/diner, utility room, two double bedrooms both having ensuites, separate W.C. and an office room.
The property also has a rear yard and paved area to the front of the property.
Living Room
An incredibly bright and spacious living room with feature gas fire, UPVC double glazed bay window and gas fired radiator.
Kitchen/Diner
Having both wall and base units with worktop over, UPVC double glazed window and gas fired radiator. There is plenty of room for a dining table.
Utility Room
With plumbing for washing machine & space for another appliance.
W.C
With low-flush W.C, hand wash basin and UPVC double glazed window.
Bedroom 2
Spacious double bedroom with ensuite shower room, glass brick window and door into office.
Ensuite
With low-flush W.C, hand wash basin and bath.
Office
Good size office room which could be used as a bedroom with gas fired radiator and door into Bedroom 2.
Bedroom 1
Large double bedroom with three UPVC double glazed windows, gas fired radiator and ensuite shower room.
Ensuite
Having low-flush W.C, shower cubicle and hand wash basin.
Entrance Hall
With UPVC door onto rear yard.
Outside
The property has a rear yard and paved area to the front of the flat.
Agent Notes
HMRC is a supervisory body for money laundering regulations, of which all estate agents need to be registered with. As part of this, there are multiple requirements that agents must rigorously and consistently meet to ensure they stay compliant with the regulations and protect their clients. To do this, we use an identity verification service, approved by the Government as part of the Digital Identity and Attributes Trust Framework (DIATF). This method and the process we follow to ensure compliance for your transaction come with significant time, financial and legal implications hence a portion of this is passed on. We elected for this verification process due to the speed, certainty, and accuracy it delivers. This helps us to protect all our client's interests by using the most advanced verification process to help prevent the impacts of money laundering alongside our internal manual policies and procedures while staying compliant with HMRC. The administrative charge for this process is £40 plus VAT for a sole purchaser, £65 plus VAT for two purchasers and £75 plus VAT three or more purchasers.
Living Room
An incredibly bright and spacious living room with feature gas fire, UPVC double glazed bay window and gas fired radiator.
Kitchen / Diner
Having both wall and base units with worktop over, UPVC double glazed window and gas fired radiator. There is plenty of room for a dining table.
Utility Room
With plumbing for washing machine & space for another appliance.
WC
With low-flush W.C, hand wash basin and UPVC double glazed window.
Bedroom 2
Spacious double bedroom with ensuite shower room, glass brick window and door into office.
En-Suite
With low-flush W.C, hand wash basin and bath.
Office
Good size office room which could be used as a bedroom with gas fired radiator and door into Bedroom 2.
Bedroom 1
Large double bedroom with three UPVC double glazed windows, gas fired radiator and ensuite shower room.
En-Suite
Having low-flush W.C, shower cubicle and hand wash basin.
Entrance Hall
With UPVC door onto rear yard.
Outside
The property has a rear yard and paved area to the front of the flat.
Agents Notes
Agent Notes HMRC is a supervisory body for money laundering regulations, of which all estate agents need to be registered with. As part of this, there are multiple requirements that agents must rigorously and consistently meet to ensure they stay compliant with the regulations and protect their clients. To do this, we use an identity verification service, approved by the Government as part of the Digital Identity and Attributes Trust Framework (DIATF). This method and the process we follow to ensure compliance for your transaction come with significant time, financial and legal implications hence a portion of this is passed on. We elected for this verification process due to the speed, certainty, and accuracy it delivers. This helps us to protect all our client's interests by using the most advanced verification process to help prevent the impacts of money laundering alongside our internal manual policies and procedures while staying compliant with HMRC. The administrative charge for this process is £40 plus VAT for a sole purchaser, £65 plus VAT for two purchasers and £75 plus VAT three or more purchasers.
IMPORTANT NOTE TO POTENTIAL PURCHASERS:
We endeavour to make our particulars accurate and reliable, however, they do not constitute or form part of an offer or any contract and none is to be relied upon as statements of representation or fact. The services, systems and appliances listed in this specification have not been tested by us and no guarantee as to their operating ability or efficiency is given. All photographs and measurements have been taken as a guide only and are not precise. Floor plans where included are not to scale and accuracy is not guaranteed. If you require clarification or further information on any points, please contact us, especially if you are travelling some distance to view. Fixtures and fittings other than those mentioned are to be agreed with the seller.
South Marine Drive, Bridlington, East Yorkshire, YO15
Additional Information
-
Property refBRI240295
-
EPCC
-
TenureLeasehold
-
Council TaxB
-
Local authorityEast Riding Of Yorkshire Council
-
Ground RentContact the branch
-
Ground Rent ReviewContact the branch
-
Service ChargeContact the branch
Similar properties for sale by Reeds Rains Bridlington
Spacious double bedroom with ensuite shower room, glass brick window and door into office.
With low-flush W.C, hand wash basin and bath.
Good size office room which could be used as a bedroom with gas fired radiator and door into Bedroom 2.
Large double bedroom with three UPVC double glazed windows, gas fired radiator and ensuite shower room.
The pin shows the exact address of the property
Energy Efficiency Rating
Very energy efficient - lower running costs
Not energy efficient - higher running costs
Current
75Potential
80CO2 Rating
Very energy efficient - lower running costs
Not energy efficient - higher running costs
