This calculator provides a guide to the amount of residential stamp duty you may pay and does not guarantee this will be the actual cost. This calculation is based on the Stamp Duty Land Tax Rates for residential properties purchased from 23rd September 2022 and second homes from 31st October 2024. For more information on Stamp Duty Land Tax, click here.
2 bedroom Flat for sale, South Road, Hythe, Kent, CT21
Features and Description
**SHOW HOME OPEN** A stunning selection of luxury two and three bedroom apartments within an exclusive gated development with direct access on to the promenade and beachfront. The apartments enjoy an enviable outlook across the local recreational ground with the historic St. Leonard's Church beyond.
The majority of apartments feature balconies or private patio gardens, along with high-specification fixtures, including quality fitted kitchens and underfloor heating.
Resident's will also benefit from secure private allocated parking with EV charging point and access to a beautifully landscaped courtyard exclusive to residents.
Each apartment comes with a 999-year lease and a share in the freehold.
Location
South Road enjoys an exceptional location that offers proximity to the sea, the town centre and the picturesque Royal Military canal. The historic waterway that spans through Hythe offers a charming and tranquil setting and beyond this the town centre has a variety of independent schools, cafes, restaurants, well known supermarkets and range of eateries with restaurants. South Road and its surrounds lie on the flat in a respected area ideally located to benefit from the seafront and all its associated activities
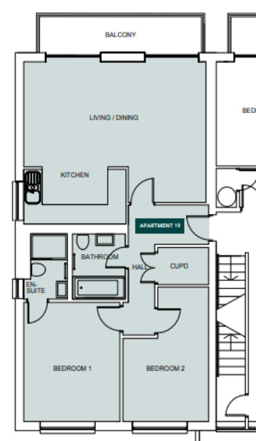
Apartment 19 The Residence
The first floor apartment highlighted here is a stunning two bedroom apartment that offers open-concept living with views overlooking parkland and towards the center of Hythe Town. This apartment includes two good sized bedrooms, an en-suite shower room for the primary bedroom, and a family bathroom. The open plan living space is well proportioned with access out to your private balcony with superb park views.
Open Plan Living
19'8" x 16'5" (6.00m x 5.00m)
Private Balcony
18'1" x 3'1" (5.50m x 0.95m)
Kitchen Area
10'9" x 5'7" (3.27m x 1.69m)
Bedroom 1
10'6" x 12'2" (3.20m x 3.70m)
En-Suite Shower Room
6'4" x 4'5" (1.94m x 1.35m)
Bedroom 2
9'2" x 13'9" (2.80m x 4.20m)
Bathroom
6'3" x 5'6" (1.90m x 1.67m)
Allocated Parking
Each apartment is being sold with its own allocated parking space.
Share of Freehold
We have been informed by our vendor that this property is being sold with a share of the freehold.
Lease Details
We have been informed by our vendor that the apartments are being sold with a 999 year lease.
Service Charge
We have been informed by our vendor that the service charge is £980 per annum.
Ground Rent
We have been informed by our vendor that there is no ground rent payable.
EPC Rating
EPC - B
IMPORTANT NOTE TO POTENTIAL PURCHASERS:
We endeavour to make our particulars accurate and reliable, however, they do not constitute or form part of an offer or any contract and none is to be relied upon as statements of representation or fact. The services, systems and appliances listed in this specification have not been tested by us and no guarantee as to their operating ability or efficiency is given. All photographs and measurements have been taken as a guide only and are not precise. Floor plans where included are not to scale and accuracy is not guaranteed. If you require clarification or further information on any points, please contact us, especially if you are travelling some distance to view. Fixtures and fittings other than those mentioned are to be agreed with the seller.
South Road, Hythe, Kent, CT21
Additional Information
-
Property refFOL250023
-
EPCB
-
TenureShare of Freehold
-
Council TaxC
-
Local authorityFolkestone and Hythe District Council
Similar properties for sale by Reeds Rains Folkestone
The pin shows the exact address of the property
Energy Efficiency Rating
Very energy efficient - lower running costs
Not energy efficient - higher running costs
Current
82Potential
82CO2 Rating
Very energy efficient - lower running costs
Not energy efficient - higher running costs
