3 bedroom Flat to rent, East Clevedon Triangle, Clevedon, North Somerset, BS21
Available Unfurnished, from 27/02/2026
Features and Description
- Maisonette Apartment with Own Private Entrance
- Three Bedrooms
- Cloakroom and Bathroom
- High-Quality Refurbishment,
- Parking for one Car
- Gas Central Heating
- Grade II Listed Building
- EPC Rating D and Council Tax B
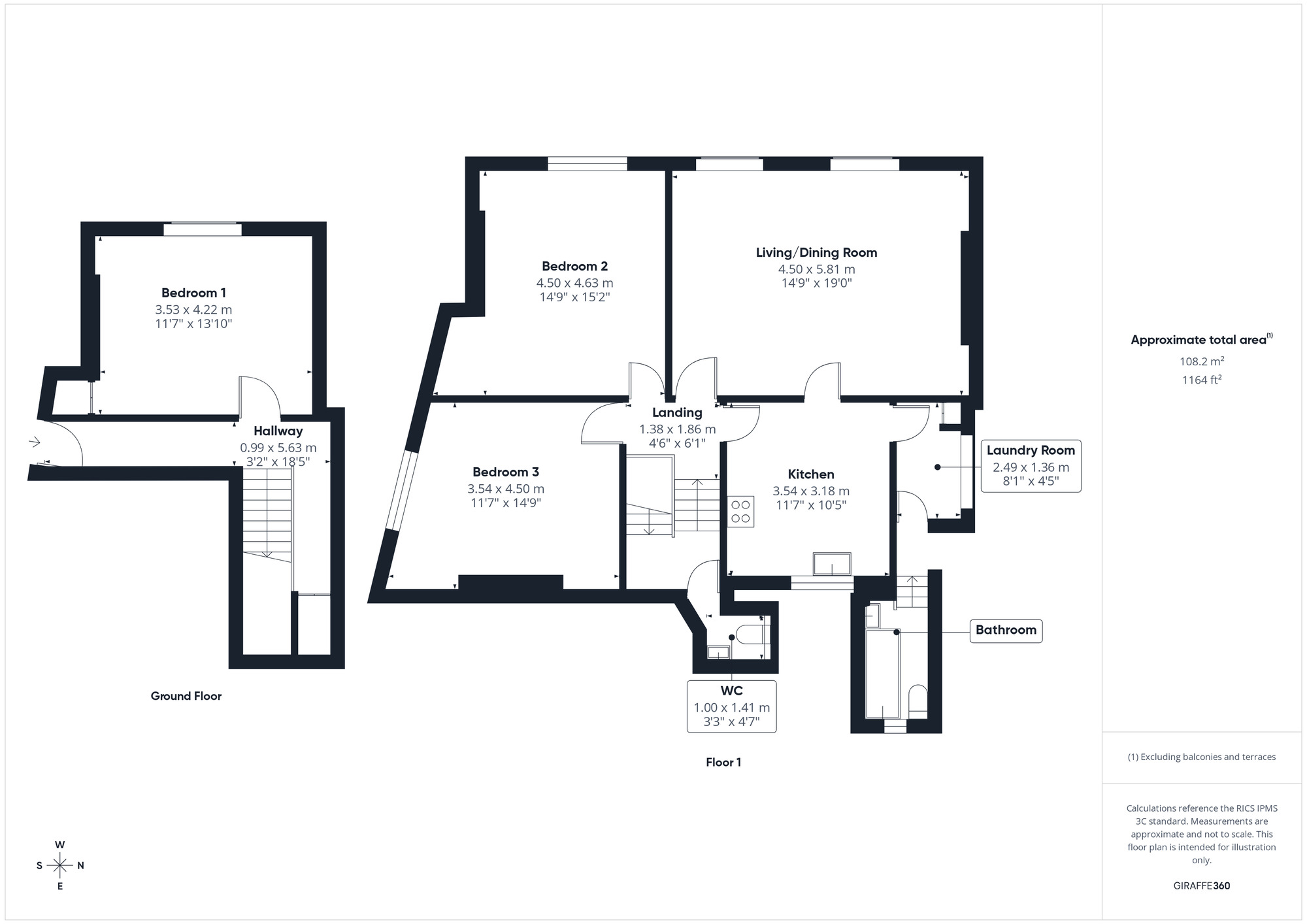
Situated within the historic Stonebridge House, dating from circa 1804 and originally built as a vicarage, this spacious three-bedroom maisonette offers character, generous proportions and the rare benefit of its own private entrance.
The property is arranged over two levels and provides well-balanced accommodation ideal for families or professional tenants alike. The home retains a wealth of period charm while offering practical modern living space.
This beautifully presented apartment within Stonebridge House, recently having undergone a complete high-specification makeover throughout. The property now offers stylish, modern living in a convenient Clevedon location.
The accommodation briefly comprises a welcoming entrance hallway, bedroom on the ground floor, bright and comfortable spacious living/dining room, contemporary fitted kitchen, utility room, two well-proportioned bedrooms and modern bathroom and cloakroom all on the first floor, Externally, the property further benefits from an allocated parking space, a valuable feature in this central position.
Externally, the property benefits from its independent access, enhancing privacy and giving the feel of a house rather than a traditional flat.
Clevedon is a sought-after North Somerset coastal town known for its attractive Victorian seafront, iconic pier and strong community feel. The town offers a wide range of amenities including supermarkets, independent retailers, cafés and restaurants. There are excellent commuter links via the M5 motorway and regular public transport into Bristol, making it popular with professionals.
Mains Electricity
Mains Drainage
Mains Water
Mains Gas
Gas Central Heating
Bills Not Included
Grade 11 listed building
Off street parking, situated at the rear of the building
EPC Rating D and Council Tax Band B
Holding deposit £346 and Security Deposit £1730
Broadband - Fibre to the cabinet broadband available with highest available download speed 76 Mbps and highest available upload speed 15 Mbps.
This information is sourced via www.openreach.com/fibre-broadband, we advise you make your own enquires.
Mobile Signal/coverage
There is good overage for mobile signal in this area, so please check with your provider if this will be available to you For an indication of coverage in the area, we recommend that you check the Ofcom checker.
https://checker.ofcom.org.uk/en-gb/mobile-coverage
IMPORTANT NOTE TO POTENTIAL RENTERS:
We endeavour to make our particulars accurate and reliable, however, they do not constitute or form part of an offer or any contract and none is to be relied upon as statements of representation or fact. The services, systems and appliances listed in this specification have not been tested by us and no guarantee as to their operating ability or efficiency is given. All photographs and measurements have been taken as a guide only and are not precise. Floor plans where included are not to scale and accuracy is not guaranteed. If you require clarification or further information on any points, please contact us, especially if you are travelling some distance to view.
All properties are available for a minimum of six months, with the exception of short term accommodation. A security deposit of at least one month’s rent is required. Rent is to be paid one month in advance. It is the tenant’s responsibility to insure any personal possessions. Payment of all utilities including water rates or metered supply and Council Tax is the responsibility of the tenant in every case.
Client Money Protection is provided by Propertymark. Redress through The Property Ombudsman Scheme.
East Clevedon Triangle, Clevedon, North Somerset, BS21
The pin shows the exact address of the property
Energy Efficiency Rating
Very energy efficient - lower running costs
Not energy efficient - higher running costs
Current
56Potential
74CO2 Rating
Very energy efficient - lower running costs
Not energy efficient - higher running costs
