









2 bedroom Flat to rent, Larne Court, Widnes, Cheshire, WA8
Available Unfurnished, from 08/10/2025
Features and Description
- Two spacious bedrooms
- En-suite to principal bedroom
- Newly fitted carpets
- Freshly painted throughout
- Open-plan kitchen and reception
- Modern, contemporary design
- Excellent transport links nearby
- Close to green spaces
- Desirable neighbourhood location
- EPC rating C for efficiency
Presenting this well-maintained two-bedroom flat available to let in a sought after location, ideal for those seeking modern living in a desirable area. The property is offered in good condition throughout, benefitting from newly fitted carpets and having been freshly painted, ensuring a welcoming and contemporary atmosphere on arrival.
Upon entering, you are greeted by an open-plan kitchen, thoughtfully designed to provide plenty of space for dining and entertaining, seamlessly flowing into the reception area. This layout creates a comfortable setting for both relaxing and hosting guests.
The accommodation includes two spacious bedrooms, designed with comfort in mind, offering ample storage and natural light. The principal bedroom features a convenient en-suite bathroom, adding a touch of luxury and privacy to the accommodation. A further well-appointed bathroom serves the second bedroom and guests alike.
The flat boasts an EPC rating of C, which reflects its good energy efficiency, contributing to lower utility costs. The property also falls within council tax band C, helping to keep living expenses manageable.
Located in a highly desirable neighbourhood, residents will appreciate excellent local amenities, access to transport links, and proximity to green spaces, ensuring a balanced urban lifestyle. With its recent refurbishment and modern features, this appealing flat presents a fantastic opportunity for tenants looking for a stylish, ready-to-move-into home in a prime setting.
Viewing is highly recommended to fully appreciate the quality and appeal of this property. Please contact us today to arrange an appointment.
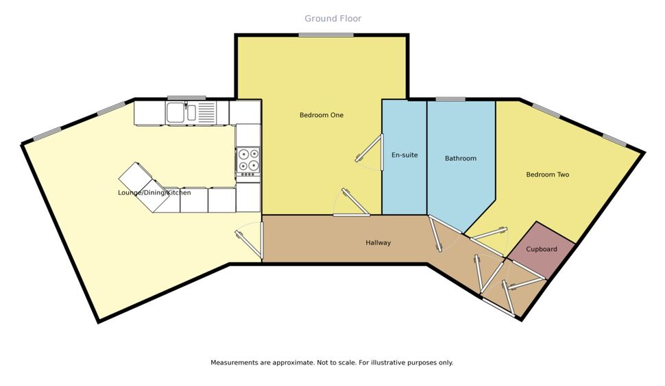
Entrance Hall
0 x 0
Entrance door, storage cupboard housing hot water tank.
Lounge / Dining Room
4.57 x 3.07
Spacious open plan lounge/dining room with two UPVC double glazed windows to rear elevation, electric heater, ceiling light point, TV point.
Kitchen Area
0 x 0
Modern kitchen fitted with a range of white high gloss wall and base units with stainless steel handles incorporating granite effect rolled edge worktops, stainless steel sink unit, stainless steel oven, four ring hob, stainless steel extractor hood, integral fridge/freezer, integral washing machine, ceiling light point, UPVC double glazed window to rear elevation.
Bedroom 1
4.17 x 4.17
Spacious master bedroom with UPVC double glazed round top window to rear elevation, two alcoves for wardrobe space, electric heater, ceiling light point, door leading to en-suite shower room.
En-Suite Shower Room
0 x 0
White three piece suite comprising a shower cubicle, push button low level WC, hand wash basin.
Bedroom 2
3.86 x 3.4
Two UPVC double glazed windows to rear elevation, electric heater, ceiling light point.
Bathroom
3.25 x 1.6
White three piece suite comprising a panelled bath, pedestal hand wash basin, push button low level WC, towel radiator, UPVC double glazed window to rear elevation.
External
0 x 0
One allocated parking space, communal visitors parking.
IMPORTANT NOTE TO POTENTIAL RENTERS:
We endeavour to make our particulars accurate and reliable, however, they do not constitute or form part of an offer or any contract and none is to be relied upon as statements of representation or fact. The services, systems and appliances listed in this specification have not been tested by us and no guarantee as to their operating ability or efficiency is given. All photographs and measurements have been taken as a guide only and are not precise. Floor plans where included are not to scale and accuracy is not guaranteed. If you require clarification or further information on any points, please contact us, especially if you are travelling some distance to view.
All properties are available for a minimum of six months, with the exception of short term accommodation. A security deposit of at least one month’s rent is required. Rent is to be paid one month in advance. It is the tenant’s responsibility to insure any personal possessions. Payment of all utilities including water rates or metered supply and Council Tax is the responsibility of the tenant in every case.
Client Money Protection is provided by Propertymark. Redress through The Property Ombudsman Scheme.
Larne Court, Widnes, Cheshire, WA8

Spacious open plan lounge/dining room with two UPVC double glazed windows to rear elevation, electric heater, ceiling light point, TV point.



Modern kitchen fitted with a range of white high gloss wall and base units with stainless steel handles incorporating granite effect rolled edge worktops, stainless steel sink unit, stainless steel oven, four ring hob, stainless steel extractor hood, integral fridge/freezer, integral washing machine, ceiling light point, UPVC double glazed window to rear elevation.

Spacious master bedroom with UPVC double glazed round top window to rear elevation, two alcoves for wardrobe space, electric heater, ceiling light point, door leading to en-suite shower room.

White three piece suite comprising a shower cubicle, push button low level WC, hand wash basin.

Two UPVC double glazed windows to rear elevation, electric heater, ceiling light point.

White three piece suite comprising a panelled bath, pedestal hand wash basin, push button low level WC, towel radiator, UPVC double glazed window to rear elevation.


The pin shows the exact address of the property
Energy Efficiency Rating
Very energy efficient - lower running costs
Not energy efficient - higher running costs
Current
75Potential
79CO2 Rating
Very energy efficient - lower running costs
Not energy efficient - higher running costs