







2 bedroom Flat to rent, Lower Seedley Road, Salford, Greater Manchester, M6
Available Unfurnished, from 27/10/2025
Features and Description
- Immaculately maintained flat
- Close to Salford Quays
- Excellent transport links
- Bright reception room
- Large windows
- Double and single bedrooms
- Well-equipped kitchen
- Abundance of natural light
- Unfurnished for personalization
- Council tax band A
*Zero Deposit Guarantee Available*
Proudly presenting this well maintained two-bedroom flat, available to let. Ideally situated in close proximity to Salford Quays, the property offers easy access to local amenities and excellent public transport links.
The property boasts one well-designed reception room, a hallmark of which is the large windows, inviting a profusion of natural light and creating a bright, welcoming space. It's a perfect setting for a relaxed evening or for hosting guests.
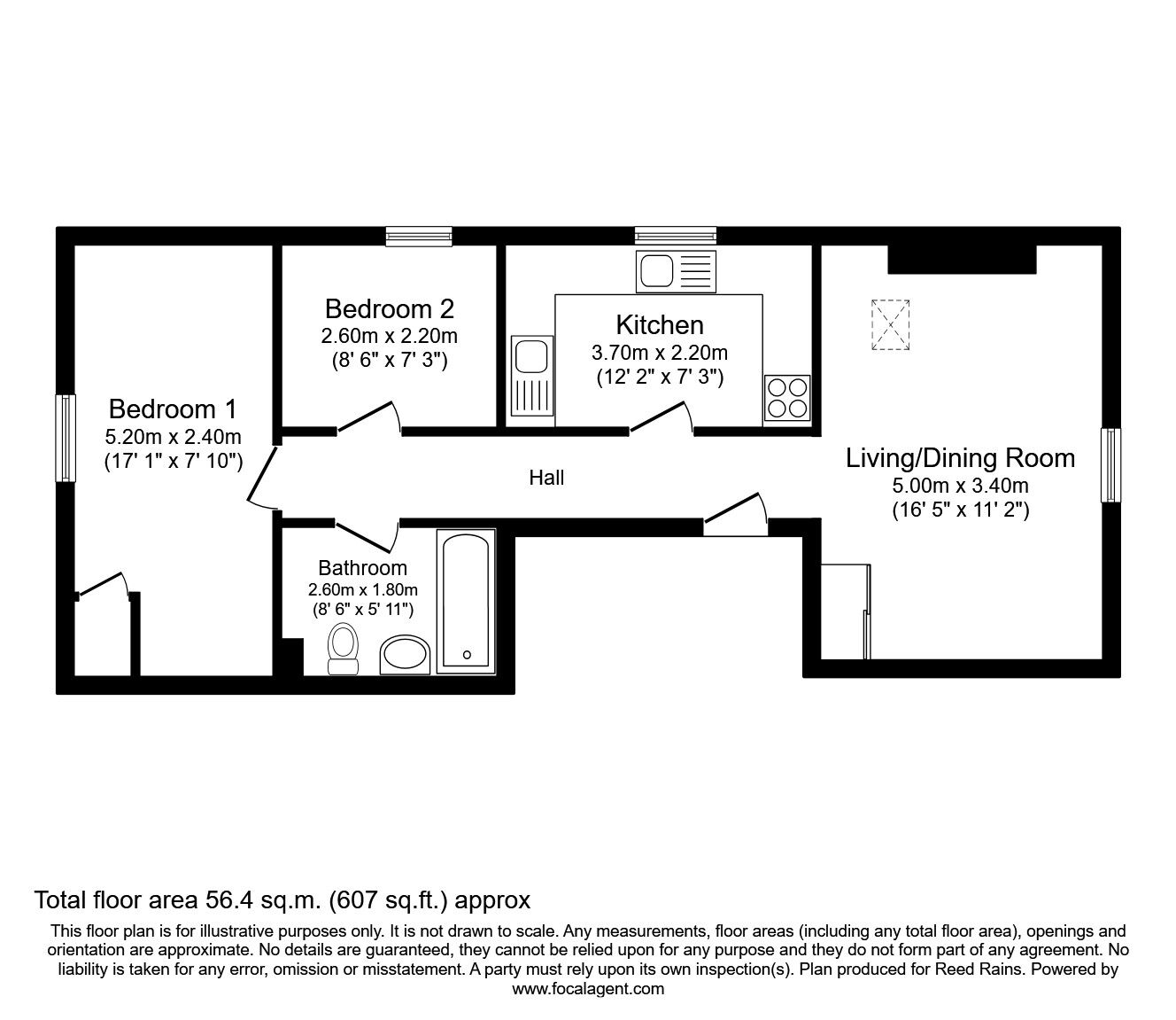
The flat comprises two bedrooms, one of which is a double, perfect for couples or individuals valuing their space. The second bedroom is a single, ideally suited as a home office or study room.
The property offers a single, well-equipped kitchen, which benefits from an abundance of natural light. It's a delightful space for those who appreciate cooking in a bright, airy environment.
The flat is unfurnished, providing a blank canvas for tenants to personalise and truly make their own. It offers one bathroom, promising no morning queues!
With a council tax band of A and an EPC rating of D, the property combines comfort with practicality. Ideal for couples or a single occupant, this delightful flat is waiting for someone to call it home. Reserve your viewing now and don't miss out on this opportunity. Email salford@reedsrains.co.uk to arrange a viewing.
Communal Entrance
UPVC front door.
Lounge
UPVC double glazed window to the front aspect. Radiator. Carpet flooring.
Kitchen
UPVC double glazed window to the aspect. Range of base units with tiled splashbacks, incorporating a single basin sink unit with taps. Freestanding appliances include oven and hob, fridge/freezer and washing machine. Radiator.
Bedroom 1
UPVC double glazed window to the rear aspect. Radiator. Carpet flooring.
Bedroom 2
UPVC double glazed window to the side aspect. Radiator.
Bathroom
White three piece suite comprising of WC, pedestal wash basin and bath with electric shower over. Fully tiled walls and extractor fan.
Exterior
Communal front garden and rear yard.
IMPORTANT NOTE TO POTENTIAL RENTERS:
We endeavour to make our particulars accurate and reliable, however, they do not constitute or form part of an offer or any contract and none is to be relied upon as statements of representation or fact. The services, systems and appliances listed in this specification have not been tested by us and no guarantee as to their operating ability or efficiency is given. All photographs and measurements have been taken as a guide only and are not precise. Floor plans where included are not to scale and accuracy is not guaranteed. If you require clarification or further information on any points, please contact us, especially if you are travelling some distance to view.
All properties are available for a minimum of six months, with the exception of short term accommodation. A security deposit of at least one month’s rent is required. Rent is to be paid one month in advance. It is the tenant’s responsibility to insure any personal possessions. Payment of all utilities including water rates or metered supply and Council Tax is the responsibility of the tenant in every case.
Client Money Protection is provided by Propertymark. Redress through The Property Ombudsman Scheme.
Lower Seedley Road, Salford, Greater Manchester, M6

UPVC double glazed window to the front aspect. Radiator. Carpet flooring.


UPVC double glazed window to the aspect. Range of base units with tiled splashbacks, incorporating a single basin sink unit with taps. Freestanding appliances include oven and hob, fridge/freezer and washing machine. Radiator.


UPVC double glazed window to the rear aspect. Radiator. Carpet flooring.

UPVC double glazed window to the side aspect. Radiator.

White three piece suite comprising of WC, pedestal wash basin and bath with electric shower over. Fully tiled walls and extractor fan.

The pin shows the exact address of the property
Energy Efficiency Rating
Very energy efficient - lower running costs
Not energy efficient - higher running costs
Current
61Potential
67CO2 Rating
Very energy efficient - lower running costs
Not energy efficient - higher running costs