









2 bedroom Flat to rent, Wrenbury Drive, Northwich, Cheshire, CW9
Available Unfurnished, from 13/10/2025
Features and Description
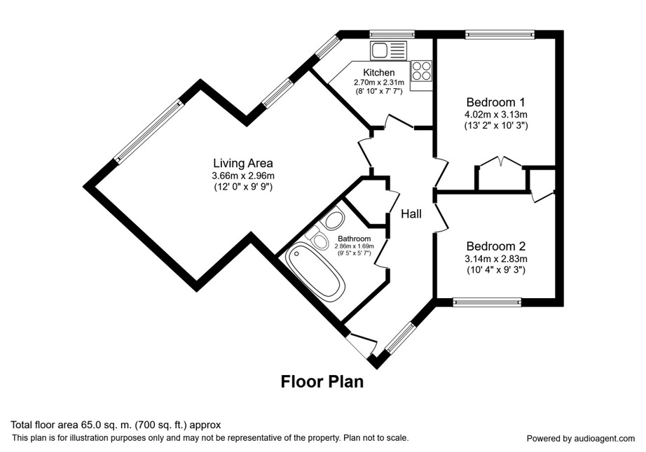
Two bedroom modern apartment, ideally located within the popular development of Kingsmead. The apartment is a ground floor apartment and benefits from UPVC double glazing and gas central heating. The property in brief comprises; entrance hallway, open plan lounge/dining area, fully fitted kitchen with integrated appliances, two good sized bedrooms, master with built in wardrobes and family bathroom. The apartment benefits from its own designated parking space.
EPC rating: C
Council tax band: C
Available to view: Immediately
Entrance Hall
Spacious entrance hall, doors to bedroms,, bathroom, kitchen and living room
Living Room
Spacious Living room with defined living and dining areas. Windows to the front of the building.
Kitchen
Fully equipped kitchen, with over, hob and extractor, fitted fridge freezer and automatic washing machine.Windows to the front
Bedroom 1
Double bedroom with built in wardrobes with window to the front.
Bedroom 2
Double bedroom with window to the rear
Bathroom
Family bathroom with bath tub with shower over, low level WC and pedestal wash hand basin. Tiled to the wet areas.
Outside
There is an allocated car part to the rear of the building, a separate bin store and path way to the Canal and local walks.
IMPORTANT NOTE TO POTENTIAL RENTERS:
We endeavour to make our particulars accurate and reliable, however, they do not constitute or form part of an offer or any contract and none is to be relied upon as statements of representation or fact. The services, systems and appliances listed in this specification have not been tested by us and no guarantee as to their operating ability or efficiency is given. All photographs and measurements have been taken as a guide only and are not precise. Floor plans where included are not to scale and accuracy is not guaranteed. If you require clarification or further information on any points, please contact us, especially if you are travelling some distance to view.
All properties are available for a minimum of six months, with the exception of short term accommodation. A security deposit of at least one month’s rent is required. Rent is to be paid one month in advance. It is the tenant’s responsibility to insure any personal possessions. Payment of all utilities including water rates or metered supply and Council Tax is the responsibility of the tenant in every case.
Client Money Protection is provided by Propertymark. Redress through The Property Ombudsman Scheme.
Wrenbury Drive, Northwich, Cheshire, CW9

Fully equipped kitchen, with over, hob and extractor, fitted fridge freezer and automatic washing machine.Windows to the front


Family bathroom with bath tub with shower over, low level WC and pedestal wash hand basin. Tiled to the wet areas.







The pin shows the exact address of the property
Energy Efficiency Rating
Very energy efficient - lower running costs
Not energy efficient - higher running costs
Current
79Potential
80CO2 Rating
Very energy efficient - lower running costs
Not energy efficient - higher running costs