This calculator provides a guide to the amount of residential stamp duty you may pay and does not guarantee this will be the actual cost. This calculation is based on the Stamp Duty Land Tax Rates for residential properties purchased from 23rd September 2022 and second homes from 31st October 2024. For more information on Stamp Duty Land Tax, click here.
3 bedroom Mid Terrace House for sale, Deakins Road, Birmingham, West Midlands, B25
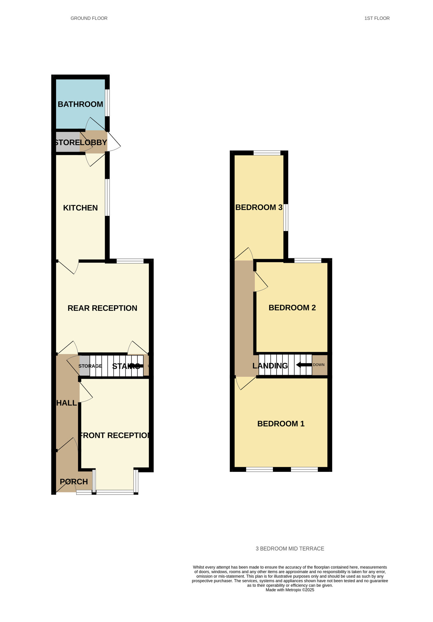
Features and Description
A three bedroom mid terrace property with no upward chain.
The Property has an entrance hall, 2 Reception Rooms, kitchen and bathroom on the ground floor and then 3 bedrooms on the first floor. The property has gas central heating,double glazing and a rear garden. Ideal first time buy or investment property.
Enclosed Porch
Having laminate wooden flooring and a door leading through to:-
Entrance Hall
Having a door giving access to an under stairs storage cupboard and also further doors leading into:-
Front Reception Room
2.58m x 4.4m max into bay
Having laminate wooden flooring, a double glazed bay window ad a radiator.
Rear Reception Room
11'12" x 11'4" (3.65m x 3.46m)
Having a double glazed window to the rear elevation, radiator, door to staircase leading to the first floor accommodation and further door leading through to:-
Kitchen
2.0m x 4.05m max
Being fitted with wall and base units with worktops over, a stainless steel sink and drainer unit, wall mounted gas boiler, double glazed window to the side elevation and a door leading through to:-
Rear Lobby
Having a door to a storage cupboard, door to the rear garden and a door leading through to:-
Bathroom
6'7" x 6'6" (2.00m x 1.98m)
Being fitted with a white suite comprising of a bath with electric shower over, pedestal wash hand basin, WC, radiator, tiled walls and a frosted glazed window to the side elevation.
1st Floor Landing
Having a radiator and doors leading off to:-
Bedroom 1
12'0" x 11'4" (3.67m x 3.45m)
Having 2 double glazed windows to the front elevation and a radiator.
Bedroom 2
9'2" x 11'5" (2.80m x 3.48m)
Having a double glazed window to the rear elevation, a radiator and a door giving access to a cupboard space .
Bedroom 3
2.03m x 4.08m max
Having a radiator and a double glazed window to the rear and side elevations.
Rear Garden
Having a patio area to the forefront and a path with steps leading down to a lawn with shrub bed borders.
IMPORTANT NOTE TO POTENTIAL PURCHASERS:
We endeavour to make our particulars accurate and reliable, however, they do not constitute or form part of an offer or any contract and none is to be relied upon as statements of representation or fact. The services, systems and appliances listed in this specification have not been tested by us and no guarantee as to their operating ability or efficiency is given. All photographs and measurements have been taken as a guide only and are not precise. Floor plans where included are not to scale and accuracy is not guaranteed. If you require clarification or further information on any points, please contact us, especially if you are travelling some distance to view. Fixtures and fittings other than those mentioned are to be agreed with the seller.
Additional Information
-
Property refYAR250266
-
EPCD
-
TenureFreehold
-
Council TaxB
-
Local authorityBirmingham City Council
Similar properties for sale by Reeds Rains Yardley
The pin shows the exact address of the property
Energy Efficiency Rating
Very energy efficient - lower running costs
Not energy efficient - higher running costs
Current
57Potential
74CO2 Rating
Very energy efficient - lower running costs
Not energy efficient - higher running costs
