This calculator provides a guide to the amount of residential stamp duty you may pay and does not guarantee this will be the actual cost. This calculation is based on the Stamp Duty Land Tax Rates for residential properties purchased from 23rd September 2022 and second homes from 31st October 2024. For more information on Stamp Duty Land Tax, click here.










2 bedroom Mid Terrace House for sale, Hope Street, Dukinfield, Greater Manchester, SK16
Features and Description
- TWO BED MID TERRACE
- NO VENDOR CHAIN
- REQUIRING REFURBISHMENT
- POPULAR LOCATION
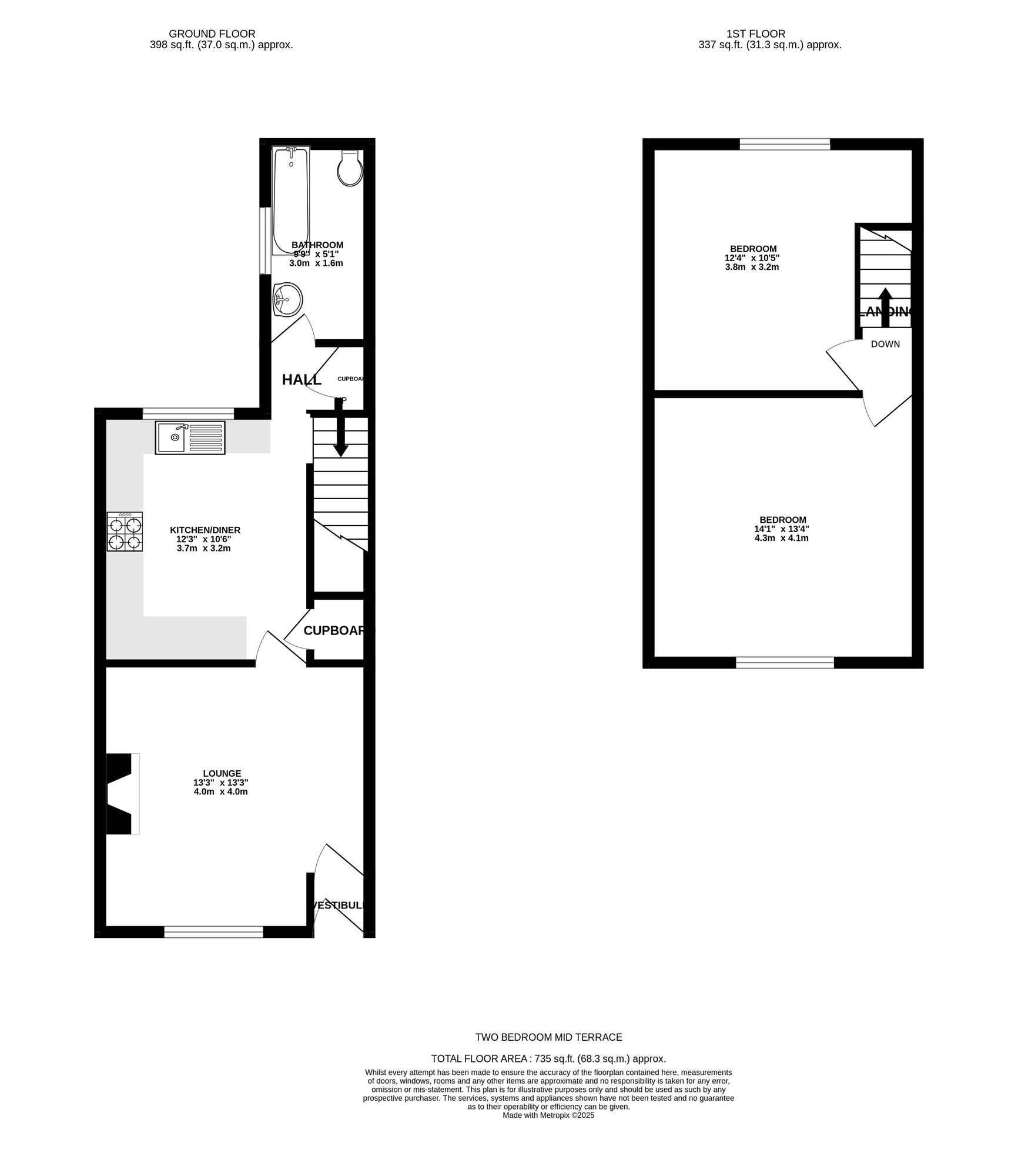
AVAILABLE WITH NO VENDOR CHAIN and located in a popular area of Dukinfield, this period mid-terrace property requires complete refurbishment throughout. The property represents an ideal acquisition for first time buyers, young families and investors alike, who are seeking a home which they can personalise to their own tastes and add value. The accommodation briefly comprises; entrance vestibule, lounge, dining kitchen, rear hallway and bathroom to the ground floor. To the first floor there are two bedrooms. Externally the property is complemented by an enclosed courtyard and a further communal area beyond. Located within walking distance to a range of shops and amenities within Dukinfield town centre, the property also lies within close proximity to Ashton-under-Lyne town centre and is minutes from the motorway network. EPC Grade E.
Entrance Vestibule
UPVC door to front aspect, door to lounge.
Lounge
4.04 x 4.03
UPVC double glazed window to front aspect, radiator, door to dining kitchen.
Dining Kitchen
3.19 x 3.74
Fitted with a range of wooden base units and wall mounted storage cupboards complemented by laminated worktops. Electric oven and four ring gas hob with extractor hob over, one and a half bowl sink with mixer tap over, single glazed window to rear aspect, doorway to rear hallway.
Rear Hallway
Doors to bathroom and rear aspect.
Bathroom
1.56 x 2.98
Fitted with a three piece suite comprising; WC, pedestal wash basin and 'P' shaped bath with shower over. Radiator. Wooden single glazed window to rear.
Landing
Loft access, doors to bedrooms.
Bedroom 1
4.06 x 4.03
UPVC double glazed window to front aspect, radiator.
Bedroom 2
3.17 x 3.76
UPVC double glazed window to front aspect, radiator.
Exterior
The property is complemented to the exterior by an enclosed courtyard to the rear.
IMPORTANT NOTE TO POTENTIAL PURCHASERS:
We endeavour to make our particulars accurate and reliable, however, they do not constitute or form part of an offer or any contract and none is to be relied upon as statements of representation or fact. The services, systems and appliances listed in this specification have not been tested by us and no guarantee as to their operating ability or efficiency is given. All photographs and measurements have been taken as a guide only and are not precise. Floor plans where included are not to scale and accuracy is not guaranteed. If you require clarification or further information on any points, please contact us, especially if you are travelling some distance to view. Fixtures and fittings other than those mentioned are to be agreed with the seller.
Hope Street, Dukinfield, Greater Manchester, SK16

Additional Information
-
Property refALY250351
-
EPCE
-
TenureFreehold
-
Council TaxA

Similar properties for sale by Reeds Rains Ashton-under-Lyne










The pin shows the exact address of the property
Energy Efficiency Rating
Very energy efficient - lower running costs
Not energy efficient - higher running costs
Current
49Potential
76CO2 Rating
Very energy efficient - lower running costs
Not energy efficient - higher running costs