This calculator provides a guide to the amount of residential stamp duty you may pay and does not guarantee this will be the actual cost. This calculation is based on the Stamp Duty Land Tax Rates for residential properties purchased from 23rd September 2022 and second homes from 31st October 2024. For more information on Stamp Duty Land Tax, click here.
4 bedroom Mid Terrace House for sale, Kent Street, Jarrow, Tyne and Wear, NE32
Features and Description
- Awaiting EPC/Tax Band C
- Lovely four bedroom period terrace home
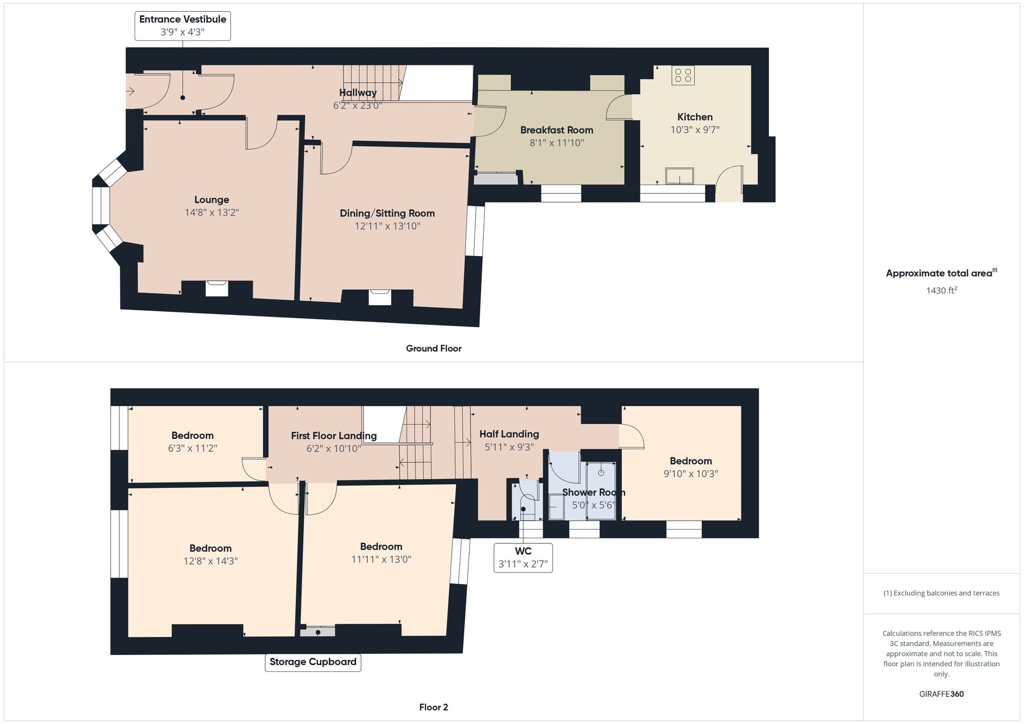
- Entrance vestibule into long hallway
- Offered for sale with NO UPWARD CHAIN
- Two large receptions/front with bay window
- Modern kitchen and separate breakfast room
- Half landing with bedroom/wc and shower room
- First floor landing with three further bedrooms
- Sought after location/Jarrow amenities on doorstep
Welcome to this beautifully presented four-bedroom period terrace property, ideally located on Kent Street in Jarrow. Retaining much of its original character, this charming home offers generous living space spread over multiple levels, perfect for families or those seeking room to grow.
Upon entering, you're greeted by two large and inviting reception rooms, one featuring an attractive bay window that fills the space with natural light. To the rear, a stylish modern kitchen opens seamlessly into a bright breakfast room, creating a sociable and functional space for daily living.
The home benefits from a versatile half-landing layout, offering a well-proportioned bedroom, a separate WC, and a separate shower room – ideal for guests or multi-generational living. The first-floor landing leads to three additional bedrooms, all amply sized.
With a blend of period charm and modern convenience, this property offers a rare opportunity to acquire a substantial home in a popular residential location with local park and Jarrow town centre with a variety of shops, bus and Metro links pretty much on the door step.
Early viewing is highly recommended to appreciate all that this wonderful home has to offer.
Entrance Vestibule
cornice ceiling, door to main hall
Hallway
laminate flooring, single radiator
Lounge
4.47m x 4.93m into bay
feature fire surround with electric fire inset, double radiator, cornice ceiling, ceiling rose
Dining Room / Sitting Room
4.06m into alcove x4.27m
feature fire surround with living flame gas fire, ceiling rose, dado rail, single radiator, laminate flooring, double glazed window
Breakfast Room
3.56m x 3.1m into alcove
double radiator, laminate flooring, double glazed window, storage cupboard housing Main combination central heating boiler
Kitchen
10'3" x 10'2" (3.12m x 3.10m)
modern fitted wall and floor units with contrasting work surface, integrated gas hob and electric oven, plumbed for automatic washing machine, integrated fridge/freezer, space for tumble dryer, laminate flooring, double glazed window, door to the rear yard
Half Landing
double glazed window, double radiator
Shower Room
white suite comprising:- pedestal hand wash basin, walk in shower area, tiled walls, tiled flooring, heated towel rail, double glazed window
Separate WC
white low level wc, tiled walls and flooring, double glazed window
Bedroom
9'7" x 9'8" (2.92m x 2.95m)
double radiator, double glazed window
First Floor Landing
loft access
Bedroom
3.86m x 4m into alcove
storage cupboard, double radiator, double glazed window
Bedroom
3.86m into alcove x 4.37m
double radiator, double glazed window, ceiling rose
Bedroom
6'2" x 11'2" (1.88m x 3.40m)
single radiator, double glazed window
Front Garden
enclosed front courtyard garden
Rear Yard
enclosed rear yard, water tap
EPC
Awaiting EPC
IMPORTANT NOTE TO POTENTIAL PURCHASERS:
We endeavour to make our particulars accurate and reliable, however, they do not constitute or form part of an offer or any contract and none is to be relied upon as statements of representation or fact. The services, systems and appliances listed in this specification have not been tested by us and no guarantee as to their operating ability or efficiency is given. All photographs and measurements have been taken as a guide only and are not precise. Floor plans where included are not to scale and accuracy is not guaranteed. If you require clarification or further information on any points, please contact us, especially if you are travelling some distance to view. Fixtures and fittings other than those mentioned are to be agreed with the seller.
Kent Street, Jarrow, Tyne and Wear, NE32
Additional Information
-
Property refHEB250194
-
EPCC
-
TenureFreehold
-
Council TaxC
Similar properties for sale by Reeds Rains Hebburn
laminate flooring, single radiator
feature fire surround with electric fire inset, double radiator, cornice ceiling, ceiling rose
feature fire surround with living flame gas fire, ceiling rose, dado rail, single radiator, laminate flooring, double glazed window
double radiator, laminate flooring, double glazed window, storage cupboard housing Main combination central heating boiler
modern fitted wall and floor units with contrasting work surface, integrated gas hob and electric oven, plumbed for automatic washing machine, integrated fridge/freezer, space for tumble dryer, laminate flooring, double glazed window, door to the rear yard
double glazed window, double radiator
white suite comprising:- pedestal hand wash basin, walk in shower area, tiled walls, tiled flooring, heated towel rail, double glazed window
enclosed rear yard, water tap
The pin shows the exact address of the property
Energy Efficiency Rating
Very energy efficient - lower running costs
Not energy efficient - higher running costs
Current
71Potential
79CO2 Rating
Very energy efficient - lower running costs
Not energy efficient - higher running costs
