This calculator provides a guide to the amount of residential stamp duty you may pay and does not guarantee this will be the actual cost. This calculation is based on the Stamp Duty Land Tax Rates for residential properties purchased from 23rd September 2022 and second homes from 31st October 2024. For more information on Stamp Duty Land Tax, click here.
4 bedroom Mid Terrace House for sale, Milestone Road, Dartford, Kent, DA2
Features and Description
Located in a sought-after residential area, this charming mid-terraced town house offers a perfect blend of modern comfort and traditional character.
Boasting four well-appointed bedrooms one of which containing its own en Suite, a spacious reception room, a family bathroom and downstairs WC, this property provides ample space for a growing family. The inviting garden provides a lovely outdoor retreat.
The property features a driveway for two cars. Situated in a desirable location, this home is within close proximity to local amenities, transport links and within the local catchment area for Dartford Grammar Schools, making it an ideal choice for those seeking both comfort and convenience.
Don't miss the opportunity to make this property your own and enjoy a wonderful living experience in this vibrant neighbourhood. Viewing is highly recommended.
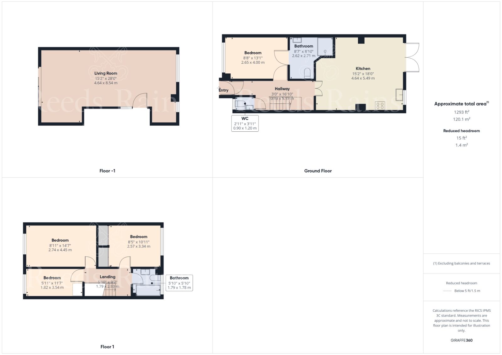
Entrance Hall
3 x 5.13m
Entrance door, Radiator, tiled flooring.
Bedroom 4
8'8" x 13'1" (2.64m x 4.00m)
Double glazed window to front, radiator, laminate flooring.
En-Suite Bathroom
8'7" x 8'10" (2.62m x 2.70m)
Shower cubicle , WC, wash hand basin, vinyl flooring.
Kitchen
4.62m x 18
Double glazed window to rear, patio door to rear, fitted wall and base units,breakfast island, integrated dishwasher, space for fridge freezer, space for gas cooker, space for washing machine.
Cloakroom
2'11" x 3'11" (0.90m x 1.20m)
Single glazed window to front, part tiled walls, WC, wash hand basin, tiled flooring.
Landing
Fitted carpet.
Reception Room
4.62m x 28
Double glazed door to balcony, two double glazed window to rear, 3x radiator, laminate flooring.
Landing
5'10" x 9'7" (1.78m x 2.92m)
Fitted carpet, loft access.
Bathroom
1.78m x '10
Double glazed window to rear, fully tiled walls, heated towel rail, WC, panelled bath with shower attachment, wash hand basin with mixer taps, tiled flooring.
Bedroom 1
8'11" x 14'7" (2.72m x 4.45m)
Double glazed window to front, radiator, laminate flooring.
Bedroom 2
8'11" x 10'11" (2.72m x 3.33m)
Double glazed window to rear, two fitted wardrobes, radiator, laminate flooring.
Bedroom 3
5'11" x 11'7" (1.80m x 3.53m)
Double glazed window to front, radiator, laminate flooring.
Garden
Patio area, rear access.
IMPORTANT NOTE TO POTENTIAL PURCHASERS:
We endeavour to make our particulars accurate and reliable, however, they do not constitute or form part of an offer or any contract and none is to be relied upon as statements of representation or fact. The services, systems and appliances listed in this specification have not been tested by us and no guarantee as to their operating ability or efficiency is given. All photographs and measurements have been taken as a guide only and are not precise. Floor plans where included are not to scale and accuracy is not guaranteed. If you require clarification or further information on any points, please contact us, especially if you are travelling some distance to view. Fixtures and fittings other than those mentioned are to be agreed with the seller.
Milestone Road, Dartford, Kent, DA2
        Additional Information
- 
                    Property refDAR250084
 - 
                    EPCD
 - 
                    TenureFreehold
 - 
                    Council TaxD
 - 
                    Local authorityDartford Borough Council
 
        Similar properties for sale by Reeds Rains Dartford
        
        
        
        
        
        
        
        
        
        
        
        
        
        The pin shows the exact address of the property
Energy Efficiency Rating
Very energy efficient - lower running costs
Not energy efficient - higher running costs
Current
68Potential
85CO2 Rating
Very energy efficient - lower running costs
Not energy efficient - higher running costs
