This calculator provides a guide to the amount of residential stamp duty you may pay and does not guarantee this will be the actual cost. This calculation is based on the Stamp Duty Land Tax Rates for residential properties purchased from 23rd September 2022 and second homes from 31st October 2024. For more information on Stamp Duty Land Tax, click here.
3 bedroom Mid Terrace House for sale, Pelham Street, Ashton-under-Lyne, Greater Manchester, OL7
Features and Description
- NO VENDOR CHAIN
- Spacious Accommodation
- Popular Residential Area
- Cosmetic Improvement Required
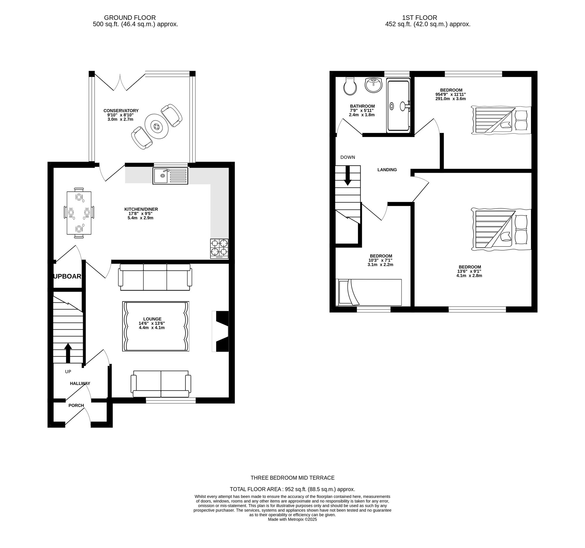
Offered for sale with NO VENDOR CHAIN and boasting spacious accommodation throughout, this substantial mid terrace property is well presented throughout and would suit a variety of purchasers including first time buyers and investors who are looking for a home which they can personalise to their own tastes and add value. The accommodation briefly comprises; entrance porch, entrance hall, lounge, dining kitchen and conservatory to the ground floor. To the first floor there are three bedrooms and a bathroom. The property is complemented to the front by a substantial garden laid mainly to lawn with planted areas. To the rear is a low maintenance garden with planted border and a detached garage with power and light. Enjoying a quiet residential location within this desirable area and conveniently situated within walking distance of a range of shops and amenities within Ashton town centre, the property is located within the catchment area of highly regarded local schools and is served by excellent road and public transport links to all areas. EPC Grade C.
Entrance Porch
Wooden door to entrance hallway.
Entrance Hallway
Radiator, stairs to first floor, door to lounge.
Lounge
4.41 x 4.11
UPVC double glazed bow window to front aspect, gas fire, radiator, door to dining kitchen.
Dining Kitchen
5.38 x 2.88
Fitted with a range of wooden base units and wall mounted storage cupboard complemented by laminated worktops and tiled splashbacks. One and a half bowl stainless steel sink and drainer with mixer tap over. Gas cooker with extractor hood over, spaces for washing machine and fridge freezer. Worcester Gas fired combination boiler, two UPVC double glazed windows to rear aspect, wooden door to conservatory.
Conservatory
2.99 x 2.68
UPVC double glazed French doors to rear aspect.
Landing
Doors to bedrooms and bathroom, storage cupboard.
Bedroom 1
2.78 x 4.11
Fitted with a range of built-in wardrobes and storage cupboard, cast iron feature fireplace, radiator, UPVC double glazed window to front aspect.
Bedroom 2
3.63 x 2.91
Fitted with a range of built-in wardrobes, cast iron feature fireplace. radiator, UPVC double glazed window to rear aspect.
Bedroom 3
2.16 x 3.13
UPVC double glazed window to front aspect, radiator.
Bathroom
2.37 x 1.80
Fitted with a three piece suite comprising; WC, pedestal wash basin and shower cubicle. Radiator, UPVC double glazed window to rear aspect.
Exterior
The property is complemented to the front by a substantial garden laid mainly to lawn with planted areas. To the rear is a low maintenance garden with planted border and a detached garage with power and light.
IMPORTANT NOTE TO POTENTIAL PURCHASERS:
We endeavour to make our particulars accurate and reliable, however, they do not constitute or form part of an offer or any contract and none is to be relied upon as statements of representation or fact. The services, systems and appliances listed in this specification have not been tested by us and no guarantee as to their operating ability or efficiency is given. All photographs and measurements have been taken as a guide only and are not precise. Floor plans where included are not to scale and accuracy is not guaranteed. If you require clarification or further information on any points, please contact us, especially if you are travelling some distance to view. Fixtures and fittings other than those mentioned are to be agreed with the seller.
Pelham Street, Ashton-under-Lyne, Greater Manchester, OL7
Additional Information
-
Property refALY250340
-
EPCC
-
TenureFreehold
-
Council TaxA
Similar properties for sale by Reeds Rains Ashton-under-Lyne
The pin shows the exact address of the property
Energy Efficiency Rating
Very energy efficient - lower running costs
Not energy efficient - higher running costs
Current
75Potential
80CO2 Rating
Very energy efficient - lower running costs
Not energy efficient - higher running costs
