This calculator provides a guide to the amount of residential stamp duty you may pay and does not guarantee this will be the actual cost. This calculation is based on the Stamp Duty Land Tax Rates for residential properties purchased from 23rd September 2022 and second homes from 31st October 2024. For more information on Stamp Duty Land Tax, click here.
3 bedroom Mid Terrace House for sale, Upritchard Court, Bangor, County Down, BT19
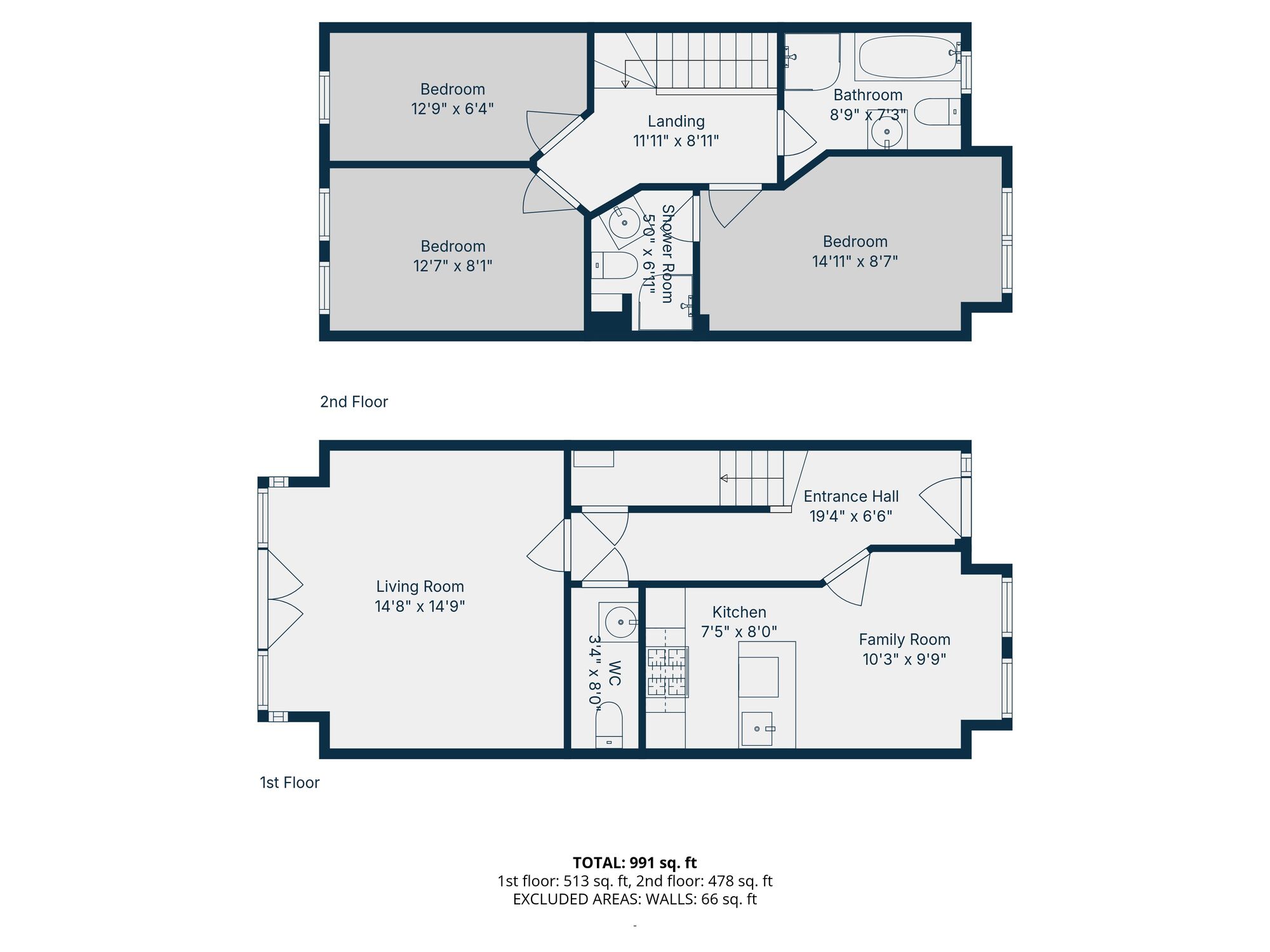
Features and Description
- Three Bedroom Townhouse
- EPC Rating = C69
- Gas Heating And Double Glazing
- En-suite Shower Room
- Downstairs Cloakroom
- Spacious Lounge
- Kitchen With Dining Area
- Enclosed Garden To Rear
- Unfurnished
Entrance Hall
PVC front door. Laminate wood floor. Built-in storage cupboard (gas boiler).
Lounge
4.88 x 4.67
Laminate wood floor, double glazed French doors to garden.
Kitchen / Dining Room
5.36 x 3.15
Stainless steel single drainer sink unit with mixer taps, excellent range of high and low-level units with rolled edge worktops. Built-in oven and four ring gas hob, stainless steel chimney extractor fan, plumbed for washing machine, integrated fridge freezer, part tiled walls, ceramic tiled floor, open to dining area with carpeted flooring.
Cloakroom
Two piece white suite comprising dual flush WC and pedestal wash hand basin with mixer tap and tiled splashback. Lino floor. Extractor fan.
First Floor
Access to loft.
Master Bedroom
4.88 x 2.72
En-Suite Shower Room
Contemporary white suite comprising fully tiled built in shower cubicle, thermostatically controlled shower unit, pedestal wash hand basin with mixer tap, dual flush WC, wash hand basin, ceramic tiled floor, extractor fan.
Bedroom 2
3.68 x 2.54
Bedroom 3
3.68 x 1.98
Bathroom
Contemporary four piece white suite comprising panel bath with mixer tap, fully tiled built in shower cubicle, thermostatically controlled shower unit, pedestal wash hand basin with mixer tap, dual flush WC, part tiled walls, ceramic tiled floor, extractor fan.
Outside
Enclosed rear garden laid in lawns and paved patio area.
IMPORTANT NOTE TO POTENTIAL PURCHASERS:
We endeavour to make our particulars accurate and reliable, however, they do not constitute or form part of an offer or any contract and none is to be relied upon as statements of representation or fact. The services, systems and appliances listed in this specification have not been tested by us and no guarantee as to their operating ability or efficiency is given. All photographs and measurements have been taken as a guide only and are not precise. Floor plans where included are not to scale and accuracy is not guaranteed. If you require clarification or further information on any points, please contact us, especially if you are travelling some distance to view. Fixtures and fittings other than those mentioned are to be agreed with the seller.
Upritchard Court, Bangor, County Down, BT19
The pin shows the exact address of the property
Energy Efficiency Rating
Very energy efficient - lower running costs
Not energy efficient - higher running costs
Current
75Potential
79CO2 Rating
Very energy efficient - lower running costs
Not energy efficient - higher running costs
