2 bedroom Mid Terrace House to rent, Church View, Wakefield, West Yorkshire, WF1
Available Unfurnished, from 18/05/2026
Features and Description
- EPC GRADE = D
- Council Tax Band = A
- Sandal Agbrigg Train Station Close By
- Enclosed Rear Garden
- Amenities Within Walking Distance
- Inner Terrace
- Great Commuter Links
Located within walking distance of Sandal Agbrigg Train Station and only a few minutes drive from Wakefield city centre, is this TWO BEDROOM mid terrace property. With enclosed rear garden and many local amenities within walking distance this property is ready to occupy.
EPC Grade = D
Council Tax Band = A
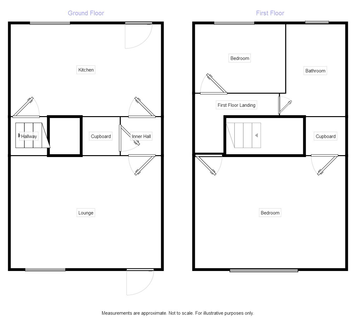
Ground Floor
Lounge
12' x 16' (3.66m x 4.88m)
Lovely room with fire surround and hearth. Carpet flooring and modern decor to walls. Please note the fireplace is not in working order.
Inner Hall
With door to kitchen area and stairs to first floor.
Kitchen/Breakfast Room
11'3" x 13' (3.43m x 3.96m)
Lovely bright room fitted with a good range of wall and base units with contrasting work surfaces and splash back tiling. Electric cooker with extractor unit over. Space and plumbing for automatic washing machine. Tiled flooring. Door leading to cellar and external door to rear garden.
First Floor
First Floor Landing
Doors to all rooms.
Bedroom
12' x 16' (3.66m x 4.88m)
Great sized bedroom to front aspect with carpet flooring and neutral decor. Storage cupboard.
Bedroom
8' x 10' (2.44m x 3.05m)
Window overlooking rear aspect, finished with neutral decor and carpet flooring.
Bathroom
5' x 18'6" (1.52m x 5.64m)
Modern bathroom fitted with white suite comprising of panelled spa/jacuzzi bath with shower over and shower screen, also having shower attachments from taps. Low flush WC and pedestal hand wash basin. Chrome radiator to wall. Part tiled walls and tiled floor.
External
To the front there is street parking and to the rear an enclosed garden area with stone patio and small lawn area.
Floorplan
Reeds Rains is a trading name, independently owned and operated under licence from Reeds Rains Limited, by Favsco 23 Ltd (company number 14709182) registered in England at 5 Brooklands Place, Brooklands Road, Sale, Cheshire M33 3SD. VAT registration no: 437 5421 92.
All Measurements
All Measurements are Approximate.
Laser Tape Clause
All measurements have been taken using a laser tape measure and therefore, may be subject to a small margin of error.
Floorplan Clause
Measurements are approximate. Not to Scale. For illustrative purposes only.
Lounge
12'0" x 16'0" (3.66m x 4.88m)
Lovely room with fire surround and hearth. Carpet flooring and modern decor to walls. Please note the fireplace is not in working order.
Inner Hall
With door to kitchen area and stairs to first floor.
Kitchen / Breakfast Room
11'3" x 12'12" (3.43m x 3.96m)
Lovely bright room fitted with a good range of wall and base units with contrasting work surfaces and splash back tiling. Electric cooker with extractor unit over. Space and plumbing for automatic washing machine. Tiled flooring. Door leading to cellar and external door to rear garden.
First Floor Landing
Doors to all rooms.
Bedroom
12'0" x 16'0" (3.66m x 4.88m)
Great sized bedroom to front aspect with carpet flooring and neutral decor. Storage cupboard.
Bedroom
8'0" x 10'0" (2.44m x 3.05m)
Window overlooking rear aspect, finished with neutral decor and carpet flooring.
Bathroom
4'12" x 18'6" (1.52m x 5.64m)
Modern bathroom fitted with white suite comprising of panelled spa/jacuzzi bath with shower over and shower screen, also having shower attachments from taps. Low flush WC and pedestal hand wash basin. Chrome raditor to wall. Part tiled walls and tiled floor.
External
To the front there is street parking and to the rear an enclosed garden area with stone patio and small lawn area.
IMPORTANT NOTE TO POTENTIAL RENTERS:
We endeavour to make our particulars accurate and reliable, however, they do not constitute or form part of an offer or any contract and none is to be relied upon as statements of representation or fact. The services, systems and appliances listed in this specification have not been tested by us and no guarantee as to their operating ability or efficiency is given. All photographs and measurements have been taken as a guide only and are not precise. Floor plans where included are not to scale and accuracy is not guaranteed. If you require clarification or further information on any points, please contact us, especially if you are travelling some distance to view.
All properties are available for a minimum of six months, with the exception of short term accommodation. A security deposit of at least one month’s rent is required. Rent is to be paid one month in advance. It is the tenant’s responsibility to insure any personal possessions. Payment of all utilities including water rates or metered supply and Council Tax is the responsibility of the tenant in every case.
Client Money Protection is provided by Propertymark. Redress through The Property Ombudsman Scheme.
Church View, Wakefield, West Yorkshire, WF1
To the front there is street parking and to the rear an enclosed garden area with stone patio and small lawn area.
The pin shows the exact address of the property
Energy Efficiency Rating
Very energy efficient - lower running costs
Not energy efficient - higher running costs
Current
52Potential
65CO2 Rating
Very energy efficient - lower running costs
Not energy efficient - higher running costs
