2 bedroom Mid Terrace House to rent, Greenall Road, Northwich, Cheshire, CW9
Available Unfurnished, from 01/12/2025
Features and Description
- Two Double Bedrooms
- Spacious Lounge Diner
- Excellent Location Close To Amenities
- Close To Northwich Train Station
- Viewing Highly Recommended
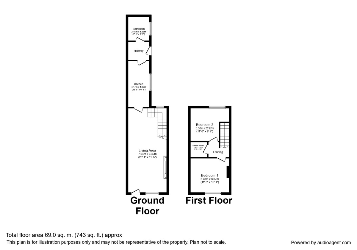
Mid terrace property offering open plan lounge/diner, kitchen, and bathroom to the ground floor with two double bedrooms and shower room to the first floor. Rear yard.
The property benefits from double glazing, gas central heating.
Council tax band: A
EPC rating: D
AGENT NOTE - To pass referencing for this property, you must have a minimum annual income of £25,500. Please only apply it you meet this criteria.
IMPORTANT NOTE TO POTENTIAL RENTERS:
We endeavour to make our particulars accurate and reliable, however, they do not constitute or form part of an offer or any contract and none is to be relied upon as statements of representation or fact. The services, systems and appliances listed in this specification have not been tested by us and no guarantee as to their operating ability or efficiency is given. All photographs and measurements have been taken as a guide only and are not precise. Floor plans where included are not to scale and accuracy is not guaranteed. If you require clarification or further information on any points, please contact us, especially if you are travelling some distance to view.
All properties are available for a minimum of six months, with the exception of short term accommodation. A security deposit of at least one month’s rent is required. Rent is to be paid one month in advance. It is the tenant’s responsibility to insure any personal possessions. Payment of all utilities including water rates or metered supply and Council Tax is the responsibility of the tenant in every case.
Client Money Protection is provided by Propertymark. Redress through The Property Ombudsman Scheme.
Greenall Road, Northwich, Cheshire, CW9
The pin shows the exact address of the property
Energy Efficiency Rating
Very energy efficient - lower running costs
Not energy efficient - higher running costs
Current
66Potential
84CO2 Rating
Very energy efficient - lower running costs
Not energy efficient - higher running costs
