Main image of 2 bedroom Mid Terrace House to rent, Heron Gardens, Portishead, Bristol, BS20
Living Room
Play property trailer
Image 3
Image 4
Bedroom 1
En-Suite Shower Room
Bedroom 2
Bathroom
Garden
£1,295 pcm

2 bedroom Mid Terrace House to rent,
Heron Gardens, Portishead, Bristol, BS20

Security Deposit £1,494 Refundable Holding Deposit: £298 Other permitted payments
Charlotte Emsley Branch Manager
Charlotte Emsley
Director & Owner of the Business
Save
Virtual tours

Features and Description

  • Two Bedroom Terraced House
  • Garage & Off Street Parking
  • Enclosed Rear Garden
  • Bathroom + En-Suite Shower Room
  • Available 11th February 2024
  • EPC Grade D + Council Tax Band B
  • £298 Holding Deposit
  • £1494 Security Deposit

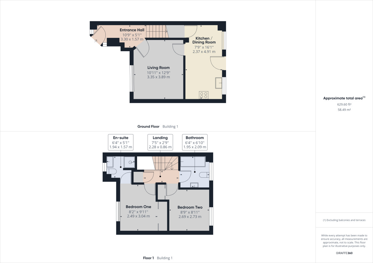
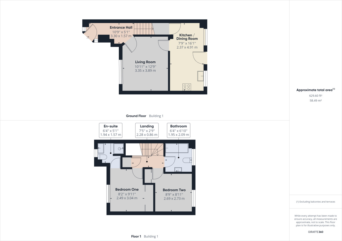
This two bedroom mid-terraced house is located on the popular Heron Gardens development in Portishead. The accommodation comprises of entrance hall, living room, kitchen/breakfast room to the ground floor. To the first floor are two bedrooms, one with ensuite and family bathroom. The home further benefits from front and rear gardens, garage and off road parking. EPC Grade D. Council Tax Band B. £298 Holding Deposit. £1494 Security Deposit. Utility Bills are NOT included in the rent.

Entrance Hall

Glass and UPVC panelled door, radiator, tiled flooring.

Living Room

Double glazed window to front, feature fire place, carpeted floor and radiator

Heron Gardens, Portishead, Bristol, BS20

Additional Information

  • Property ref
    CLV220234
  • Council Tax
    B
  • Local authority
    North Somerset Council
Charlotte Emsley Branch Manager
Charlotte Emsley
Director & Owner of the Business

Contents insurance for tenants

Even when renting it's important to make sure your contents are protected.

Reeds Rains Letting Agents Portishead

Portishead Branch Manager
Reeds Rains Portishead
58 High Street, Portishead, BS20 6EL
Mon - Fri09:00 - 18:00Saturday09:00 - 16:00SundayClosed
Nearby locations
Photos
Virtual tours
Floorplan
Map view
Street view
Main image of 2 bedroom Mid Terrace House to rent, Heron Gardens, Portishead, Bristol, BS20
Living Room

Double glazed window to front, feature fire place, carpeted floor and radiator

Living Room
Bedroom 1

Window to front, carpeted built in wardrobe, radiator and door leading to en-suite.

Bedroom 1
En-Suite Shower Room

Obscured double glazed window to front, low level WC, pedestal wash hand basin, shower cubicle with twin shower, mirror on wall, towel rail.

En-Suite Shower Room
Bedroom 2

Carpeted, window to rear, radiator and built-in wardrobe.

Bedroom 2
Bathroom

Obscured window to rear, low level WC, pedestal wash hand basin, panelled bath and radiator, mirror and vanity cabinet on wall.

Bathroom
Garden

Enclosed by wooden fence with paved patio, garden shed, washing line.

Garden
Image 3 Image 4

The pin shows the exact address of the property 

Energy Efficiency Rating

Very energy efficient - lower running costs

(92 plus) A
(81 - 91) B
(69 - 80) C
(55 - 68) D
(39 - 54) E
(21 - 38) F
(1 - 20) G

Not energy efficient - higher running costs

Current

N/A

Potential

N/A

CO2 Rating

Very energy efficient - lower running costs

(92 plus) A
(81 - 91) B
(69 - 80) C
(55 - 68) D
(39 - 54) E
(21 - 38) F
(1 - 20) G

Not energy efficient - higher running costs

Current

N/A

Potential

N/A