





2 bedroom Semi Detached Bungalow to rent, Ings Court, Hibaldstow, North Lincolnshire, DN20
Available Unfurnished, from 16/10/2025
Features and Description
*Rent to Buy Opportunity*
These properties are offered as a Rent-to-Buy opportunity, requiring tenants to pay 80% rent and save 20% toward a future mortgage deposit. The goal is homeownership after 5 years. Applicants are urged to review terms carefully.
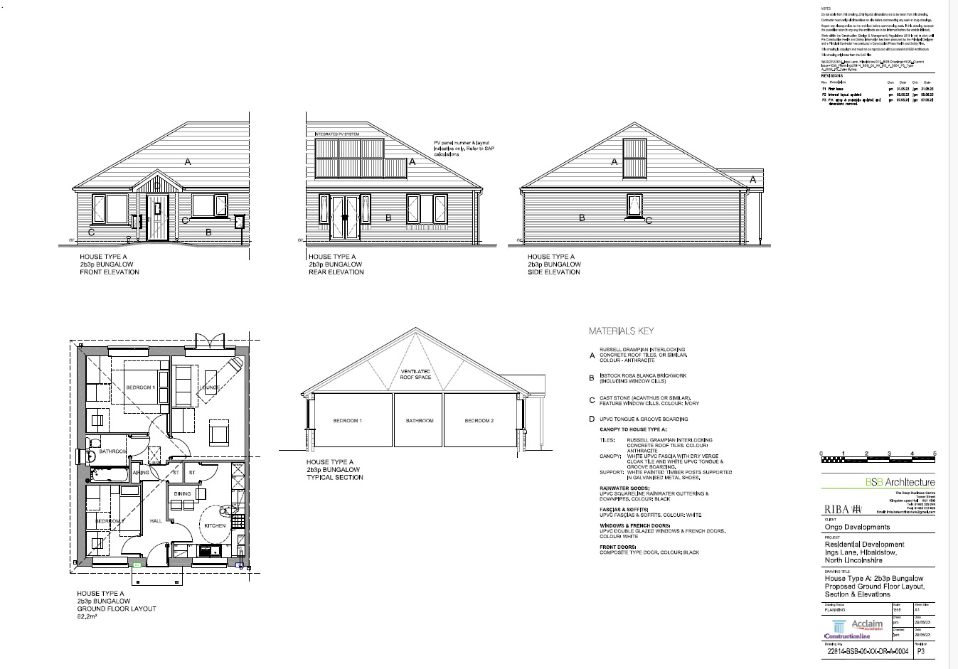
Reeds Rains are delighted to present 5 immaculate semi-detached bungalows to let in a highly sought-after village location of Hibaldstow, these brand new homes offers the perfect blend of comfort and convenience. Boasting two well-proportioned bedrooms, this property is ideal for those seeking modern living within easy reach of local amenities, green spaces, and excellent public transport links.
The inviting property features a thoughtfully designed reception room, providing a welcoming space for relaxation or entertaining guests. Complementing this is a contemporary kitchen, equipped to a high standard to accommodate daily living requirements. The stylish bathroom adds to the overall sense of luxury and comfort throughout the home.
Alongside its superb internal finish, this bungalow provides practical benefits including an energy-efficient ‘A’ EPC rating and falls within council tax band A, ensuring lower utility and council tax costs. Externally, a spacious driveway provides ample off-road parking, while the generous garden offers an excellent outdoor retreat, perfect for leisurely afternoons or summer gatherings.
Arrange a viewing today to appreciate all this bungalow has to offer.
IMPORTANT NOTE TO POTENTIAL RENTERS:
We endeavour to make our particulars accurate and reliable, however, they do not constitute or form part of an offer or any contract and none is to be relied upon as statements of representation or fact. The services, systems and appliances listed in this specification have not been tested by us and no guarantee as to their operating ability or efficiency is given. All photographs and measurements have been taken as a guide only and are not precise. Floor plans where included are not to scale and accuracy is not guaranteed. If you require clarification or further information on any points, please contact us, especially if you are travelling some distance to view.
All properties are available for a minimum of six months, with the exception of short term accommodation. A security deposit of at least one month’s rent is required. Rent is to be paid one month in advance. It is the tenant’s responsibility to insure any personal possessions. Payment of all utilities including water rates or metered supply and Council Tax is the responsibility of the tenant in every case.
Client Money Protection is provided by Propertymark. Redress through The Property Ombudsman Scheme.
Additional Information
-
Property refGRI250542
-
EPCA

Reeds Rains Letting Agents Grimsby







The pin shows the exact address of the property
Energy Efficiency Rating
Very energy efficient - lower running costs
Not energy efficient - higher running costs
Current
96Potential
96CO2 Rating
Very energy efficient - lower running costs
Not energy efficient - higher running costs