This calculator provides a guide to the amount of residential stamp duty you may pay and does not guarantee this will be the actual cost. This calculation is based on the Stamp Duty Land Tax Rates for residential properties purchased from 23rd September 2022 and second homes from 31st October 2024. For more information on Stamp Duty Land Tax, click here.
5 bedroom Semi Detached House for sale, Grassland Drive, Bridlington, East Yorkshire, YO15
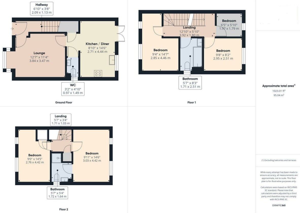
Features and Description
- IMMACULATELY PRESENTED
- FIVE BEDROOMS
- THREE STOREY
- GARAGE
- OFF ROAD PARKING
- REAR GARDEN
- POPULAR RESIDENTIAL LOCATION
This beautifully presented semi-detached town house boasts 5 bedrooms, spacious reception room, and 2 bathrooms, making it the perfect family home.
Situated in a sought-after neighbourhood, this property exudes charm and character. The interiors are clean, comfortable, and modern, offering a bright and spacious living environment.
The property is well-maintained and features a lovely garden, ideal for relaxing or entertaining guests. With off-street parking and a garage, convenience is key for busy families or professionals.
Don't miss the opportunity to make this house your home. Contact us today to arrange a viewing and experience the warmth and appeal of this delightful property.
Agent's Note
HMRC is a supervisory body for money laundering regulations, of which all estate agents need to be registered with. As part of this, there are multiple requirements that agents must rigorously and consistently meet to ensure they stay compliant with the regulations and protect their clients. To do this, we use an identity verification service, approved by the Government as part of the Digital Identity and Attributes Trust Framework (DIATF). This method and the process we follow to ensure compliance for your transaction come with significant time, financial and legal implications hence a portion of this is passed on. We elected for this verification process due to the speed, certainty, and accuracy it delivers. This helps us to protect all our client's interests by using the most advanced verification process to help prevent the impacts of money laundering alongside our internal manual policies and procedures while staying compliant with HMRC. The administrative charge for this process is £40 plus VAT for a sole purchaser, £65 plus VAT for two purchasers and £75 plus VAT three or more purchasers.
Agent's Note
HMRC is a supervisory body for money laundering regulations, of which all estate agents need to be registered with. As part of this, there are multiple requirements that agents must rigorously and consistently meet to ensure they stay compliant with the regulations and protect their clients. To do this, we use an identity verification service, approved by the Government as part of the Digital Identity and Attributes Trust Framework (DIATF). This method and the process we follow to ensure compliance for your transaction come with significant time, financial and legal implications hence a portion of this is passed on. We elected for this verification process due to the speed, certainty, and accuracy it delivers. This helps us to protect all our client's interests by using the most advanced verification process to help prevent the impacts of money laundering alongside our internal manual policies and procedures while staying compliant with HMRC. The administrative charge for this process is £40 plus VAT for a sole purchaser, £65 plus VAT for two purchasers and £75 plus VAT three or more purchasers.
IMPORTANT NOTE TO POTENTIAL PURCHASERS:
We endeavour to make our particulars accurate and reliable, however, they do not constitute or form part of an offer or any contract and none is to be relied upon as statements of representation or fact. The services, systems and appliances listed in this specification have not been tested by us and no guarantee as to their operating ability or efficiency is given. All photographs and measurements have been taken as a guide only and are not precise. Floor plans where included are not to scale and accuracy is not guaranteed. If you require clarification or further information on any points, please contact us, especially if you are travelling some distance to view. Fixtures and fittings other than those mentioned are to be agreed with the seller.
Grassland Drive, Bridlington, East Yorkshire, YO15
Additional Information
-
Property refBRI260039
-
EPCB
-
TenureFreehold
-
Council TaxC
-
Local authorityEast Riding of Yorkshire Council
Similar properties for sale by Reeds Rains Bridlington
The pin shows the exact address of the property
Energy Efficiency Rating
Very energy efficient - lower running costs
Not energy efficient - higher running costs
Current
85Potential
95CO2 Rating
Very energy efficient - lower running costs
Not energy efficient - higher running costs
