This calculator provides a guide to the amount of residential stamp duty you may pay and does not guarantee this will be the actual cost. This calculation is based on the Stamp Duty Land Tax Rates for residential properties purchased from 23rd September 2022 and second homes from 31st October 2024. For more information on Stamp Duty Land Tax, click here.
5 bedroom Semi Detached House for sale, High Street, Lyminge, Kent, CT18
Features and Description
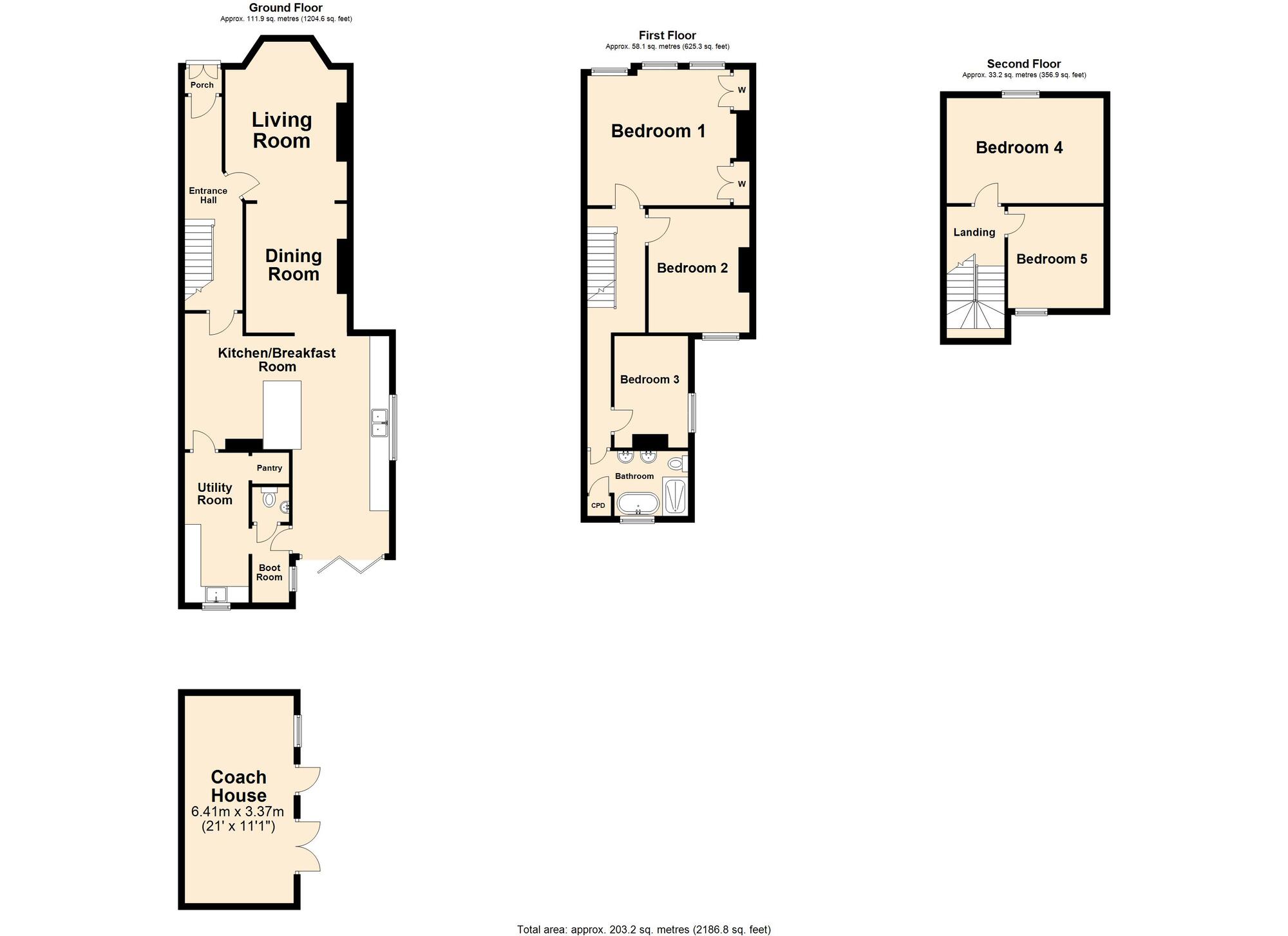
Reeds Rains are delighted to bring to the market this simply stunning five bedroom semi-detached residence which has been sympathetically updated and extended whilst retaining many character features. The house is ideally located in the sought after village of Lyminge which provides good transport links and primary schooling. On approach, this impressive house offers off road parking to the side along with EV charging facility. Upon entering this superb house, you are greeted by a welcoming hallway which provides access to the bay fronted living room, dining room and extended kitchen/breakfast room. The kitchen/breakfast room is a real feature of the house offering bi-fold doors out to the sunny garden with skylight windows and central island. Access is also provided from the kitchen to the utility room, pantry, boot room and cloakroom/WC. Once upstairs, you will find five good sized bedrooms spread across the first and second floor alongside a four piece bathroom suite. Externally, there is a delightful sunny aspect rear garden which is mostly laid to lawn with central entertaining space. To the rear of the garden, there is a corrugated coach house with vehicular access over a rear track with the possibility for off road parking to be installed to the side.
Location
The property is well located within this popular village, which boasts a good range of amenities, including newsagents, general stores, post office, tea rooms, public house/restaurant, primary school, church, two doctors' surgeries, pharmacy, takeaway and active village hall. There is also a public library, bowls club and sports field. The surrounding countryside forms part of the Kent Downs Area of Outstanding Natural Beauty over which there is a wealth of walks, rides and cycle routes. A regular bus service runs through the centre of the village, giving access, to the north, to the cathedral city of Canterbury and, to the south, the Channel Tunnel town of Folkestone and the Ancient Cinque Port Town of Hythe on the coast. Each of these offers a wide range of shopping, recreational and educational facilities, together with high speed main line train services to London with the travel time having been reduced to some 60 minutes to St Pancras.
Entrance Porch
3'9" x 2'5" (1.15m x 0.74m)
Entrance Hall
21'8" x 5'11" (6.61m x 1.80m)
Living Room
16'1" x 12'4" (4.90m x 3.76m)
Dining Room
13'1" x 10'3" (3.98m x 3.12m)
Kitchen / Breakfast Room
22'1" x 20'10" (6.72m x 6.34m)
Utility Room
15'3" x 6'6" (4.64m x 1.99m)
Boot Room
7'1" x 3'1" (2.17m x 0.95m)
Cloakroom / WC
3'7" x 3'1" (1.08m x 0.95m)
Bedroom 1
16'4" x 13'9" (4.98m x 4.19m)
Bedroom 2
13'1" x 10'2" (3.99m x 3.11m)
Bedroom 3
11'4" x 7'6" (3.45m x 2.28m)
Bathroom
10'0" x 6'8" (3.05m x 2.03m)
Bedroom 4
15'11" x 10'8" (4.85m x 3.26m)
Bedroom 5
10'4" x 9'8" (3.15m x 2.95m)
Coach House
20'12" x 11'1" (6.40m x 3.37m)
Corrugated outbuilding, formerly the original coach house (with possibility for garage or workshop) with room over and door to side, right of way over rear track giving access to road.
Gardens
A delightful sunny aspect rear garden with mature borders and fenced surround. Side access with pathway leading to the rear of the property and coach house. Central seating area which is ideal for relaxation or al-fresco dining.
EPC Rating
EPC - D
IMPORTANT NOTE TO POTENTIAL PURCHASERS:
We endeavour to make our particulars accurate and reliable, however, they do not constitute or form part of an offer or any contract and none is to be relied upon as statements of representation or fact. The services, systems and appliances listed in this specification have not been tested by us and no guarantee as to their operating ability or efficiency is given. All photographs and measurements have been taken as a guide only and are not precise. Floor plans where included are not to scale and accuracy is not guaranteed. If you require clarification or further information on any points, please contact us, especially if you are travelling some distance to view. Fixtures and fittings other than those mentioned are to be agreed with the seller.
High Street, Lyminge, Kent, CT18
Additional Information
-
Property refFOL250166
-
EPCD
-
TenureFreehold
-
Council TaxE
-
Local authorityFolkestone and Hythe District Council
Similar properties for sale by Reeds Rains Folkestone
Corrugated outbuilding, formerly the original coach house (with possibility for garage or workshop) with room over and door to side, right of way over rear track giving access to road.
The pin shows the exact address of the property
Energy Efficiency Rating
Very energy efficient - lower running costs
Not energy efficient - higher running costs
Current
56Potential
78CO2 Rating
Very energy efficient - lower running costs
Not energy efficient - higher running costs
