This calculator provides a guide to the amount of residential stamp duty you may pay and does not guarantee this will be the actual cost. This calculation is based on the Stamp Duty Land Tax Rates for residential properties purchased from 23rd September 2022 and second homes from 31st October 2024. For more information on Stamp Duty Land Tax, click here.
4 bedroom Semi Detached House for sale, Lichens Crescent, Oldham, Greater Manchester, OL8
Features and Description
- NO VENDOR CHAIN
- Four Bedroom Semi Detached
- Large Rear Garden
- Front Garden and Driveway
- UPVC double glazing
Notice Of Offer - Property Address: 9 Lichens Crescent, Oldham, OL8 2NS. We advise that an offer has been made for the above property in the sum of £225,000. Any persons wishing to increase on this offer should notify the agents of their best offer prior to exchange of contracts.
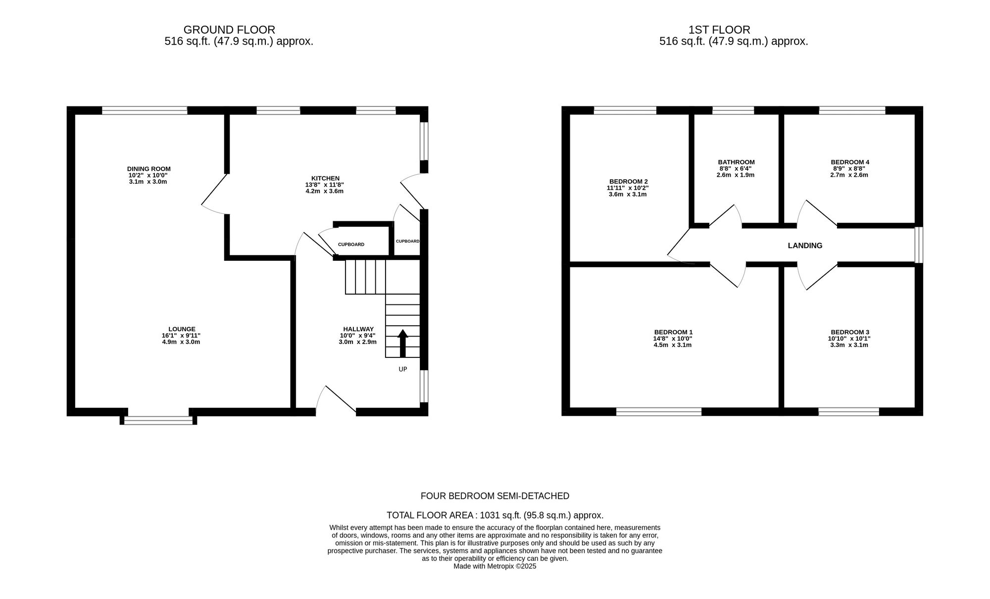
Agents Address: 5 Fletcher Street, Ashton-Under-Lyne, OL6 6BY. Agents Telephone Number: 0161 339 0466 - Offered for sale with NO VENDOR CHAIN this FOUR BEDROOM semi detached is in need of a little updating but boasts spacious accommodation throughout and represents an ideal acquisition for large or growing families or investors alike. Comprises: entrance hall, kitchen, dining room and lounge to the ground floor. To the first floor are four bedrooms and a family bathroom. There is a large rear garden and front garden with adjacent driveway. The property is situated in a well established residential area close to local shops, amenities and transport links. EPC Grade D.
Entrance Hall
2.85 x 3.04
Kitchen
4.17 x 3.56
Dining Room
3.09 x 3.04
Lounge
4.90 x 3.03
Bedroom 1
4.48 x 3.06
Bedroom 2
3.10 x 3.63
Bedroom 3
3.29 x 3.07
Bedroom 4
2.64 x 2.67
Bathroom
1.93 x 2.65
Exterior
Front and rear gardens and driveway.
IMPORTANT NOTE TO POTENTIAL PURCHASERS:
We endeavour to make our particulars accurate and reliable, however, they do not constitute or form part of an offer or any contract and none is to be relied upon as statements of representation or fact. The services, systems and appliances listed in this specification have not been tested by us and no guarantee as to their operating ability or efficiency is given. All photographs and measurements have been taken as a guide only and are not precise. Floor plans where included are not to scale and accuracy is not guaranteed. If you require clarification or further information on any points, please contact us, especially if you are travelling some distance to view. Fixtures and fittings other than those mentioned are to be agreed with the seller.
Lichens Crescent, Oldham, Greater Manchester, OL8
Additional Information
-
Property refALY250241
-
EPCD
-
TenureFreehold
Similar properties for sale by Reeds Rains Ashton-under-Lyne
The pin shows the exact address of the property
Energy Efficiency Rating
Very energy efficient - lower running costs
Not energy efficient - higher running costs
Current
66Potential
77CO2 Rating
Very energy efficient - lower running costs
Not energy efficient - higher running costs
