This calculator provides a guide to the amount of residential stamp duty you may pay and does not guarantee this will be the actual cost. This calculation is based on the Stamp Duty Land Tax Rates for residential properties purchased from 23rd September 2022 and second homes from 31st October 2024. For more information on Stamp Duty Land Tax, click here.
3 bedroom Semi Detached House for sale, Martin Drive, Stone, Kent, DA2
Features and Description
Situated in the sought-after area of development close to Bunstone Hall, this modern semi detached house boasts 3 bedrooms, 2 bathrooms, and a charming garden. The spacious living area is perfect for entertaining guests or relaxing with the family.
The contemporary kitchen has built in oven and hob and ample storage space. The bedrooms are bright and airy. The property also benefits from convenient access to local amenities, schools, and transport links, making it an ideal choice for families or professionals.
Don't miss out on the opportunity to make this stunning house your new home. Contact us today to arrange a viewing.
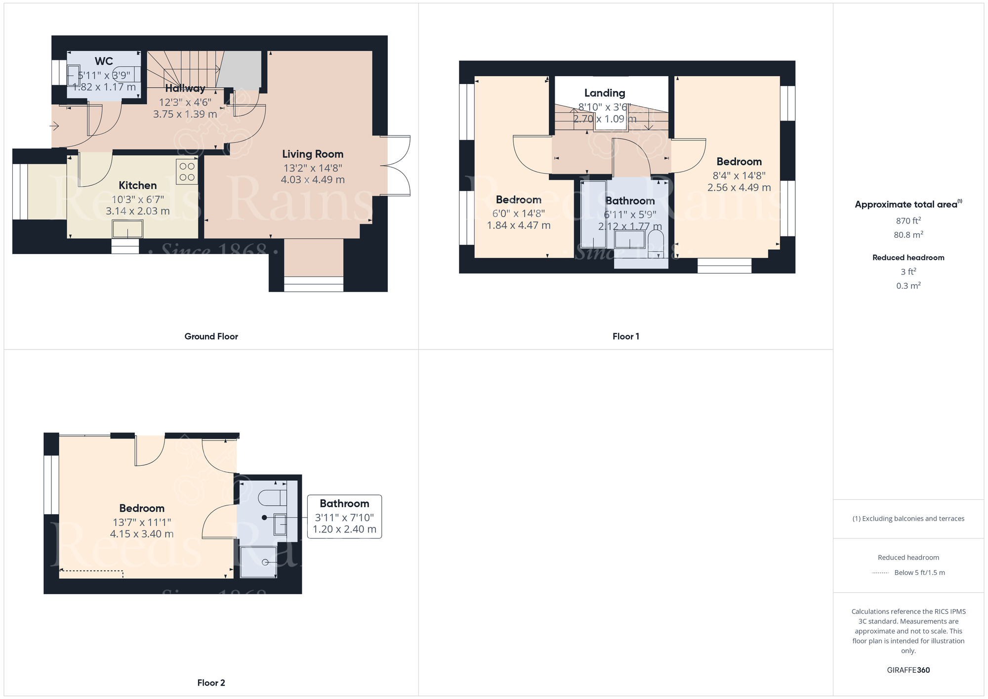
Entrance Hall
12'4" x 4'7" (3.75m x 1.39m)
Entrance door, radiator, laminate flooring.
Kitchen
10'4" x 6'8" (3.15m x 2.03m)
Double glazed window to front, dounle glazxed window to side, fitted wall and base units, gas hob with extractor fan, integrated fridge freezer, washing machine and dishwasher, laminate flooring.
Cloakroom
5'12" x 3'10" (1.82m x 1.17m)
Double glazed window to front, WC, wash hand basin, radiator, tiled flooring.
Reception Room
13'3" x 14'9" (4.03m x 4.49m)
Double glazed door to rear, double glazed window to side, two radiators, laminate flooring.
Bedroom 2
8'5" x 14'9" (2.56m x 4.49m)
Two double glazed window to rear, double glazed window to side, radiator, fitted carpet.
Bedroom 3
6'0" x 14'8" (1.84m x 4.47m)
Two double glazed window to front, radiator, fitted carpet.
Landing
8'10" x 3'7" (2.70m x 1.09m)
Radiator, fitted carpet.
Bathroom
6'11" x 5'10" (2.12m x 1.77m)
Partly tiled walls, panelled bath with shower attachment, heated towel rail, WC, wash hand basin, tiled flooring
Landing
Double glazed Velux window, fitted carpet.
Bedroom 1
13'7" x 11'2" (4.14m x 3.40m)
Double glazed window to front, two fitted wardrobes, radiator, fitted carpet.
En-Suite Bathroom
3'11" x 7'10" (1.20m x 2.40m)
Double glazed Velux window, partly tiled walls shower cubicle, heated towel rail, tiled flooring.
Service Charge
January to June 2026 £224.40
AML CHECKS
By law, we required to conduct anti-money laundering checks on all potential buyers, and we take this responsibility very seriously. In line with HMRC guidelines, our trusted partner, Landmark, will securely manage these checks on our behalf. Once an offer is accepted (subject to contract), Landmark will send a secure link for you to complete the biometric checks electronically. A non-refundable fee of £40+ VAT per person will apply for these checks, and Landmark will handle the payment for this service. These anti-money laundering checks must be completed before we can send the memorandum of sale to the solicitors to confirm the sale.
IMPORTANT NOTE TO POTENTIAL PURCHASERS:
We endeavour to make our particulars accurate and reliable, however, they do not constitute or form part of an offer or any contract and none is to be relied upon as statements of representation or fact. The services, systems and appliances listed in this specification have not been tested by us and no guarantee as to their operating ability or efficiency is given. All photographs and measurements have been taken as a guide only and are not precise. Floor plans where included are not to scale and accuracy is not guaranteed. If you require clarification or further information on any points, please contact us, especially if you are travelling some distance to view. Fixtures and fittings other than those mentioned are to be agreed with the seller.
Martin Drive, Stone, Kent, DA2
Additional Information
-
Property refDAR250219
-
EPCC
-
TenureFreehold
-
Council TaxE
-
Local authorityDartford Borough Council
Similar properties for sale by Reeds Rains Dartford
The pin shows the exact address of the property
Energy Efficiency Rating
Very energy efficient - lower running costs
Not energy efficient - higher running costs
Current
77Potential
82CO2 Rating
Very energy efficient - lower running costs
Not energy efficient - higher running costs
