This calculator provides a guide to the amount of residential stamp duty you may pay and does not guarantee this will be the actual cost. This calculation is based on the Stamp Duty Land Tax Rates for residential properties purchased from 23rd September 2022 and second homes from 31st October 2024. For more information on Stamp Duty Land Tax, click here.





























3 bedroom Semi Detached House for sale, Rosemary Park, Bangor, County Down, BT20
Features and Description
- Attractive red brick semi-detached villa in a prime location
- Bright lounge leading to open-plan dining room
- Modern fitted kitchen
- Three well-proportioned first-floor bedrooms
- Bathroom with white suite
- Oil-fired central heating and double glazing throughout
- PVC fascia, soffits and guttering for low-maintenance living
- Generous driveway parking plus detached garage
- Enclosed rear gardens, ideal for children and outdoor entertaining
- An excellent choice for young families or first-time buyers
This attractive red brick semi-detached villa presents an excellent opportunity for young families or first-time buyers seeking a home in one of Bangor’s prime residential locations.
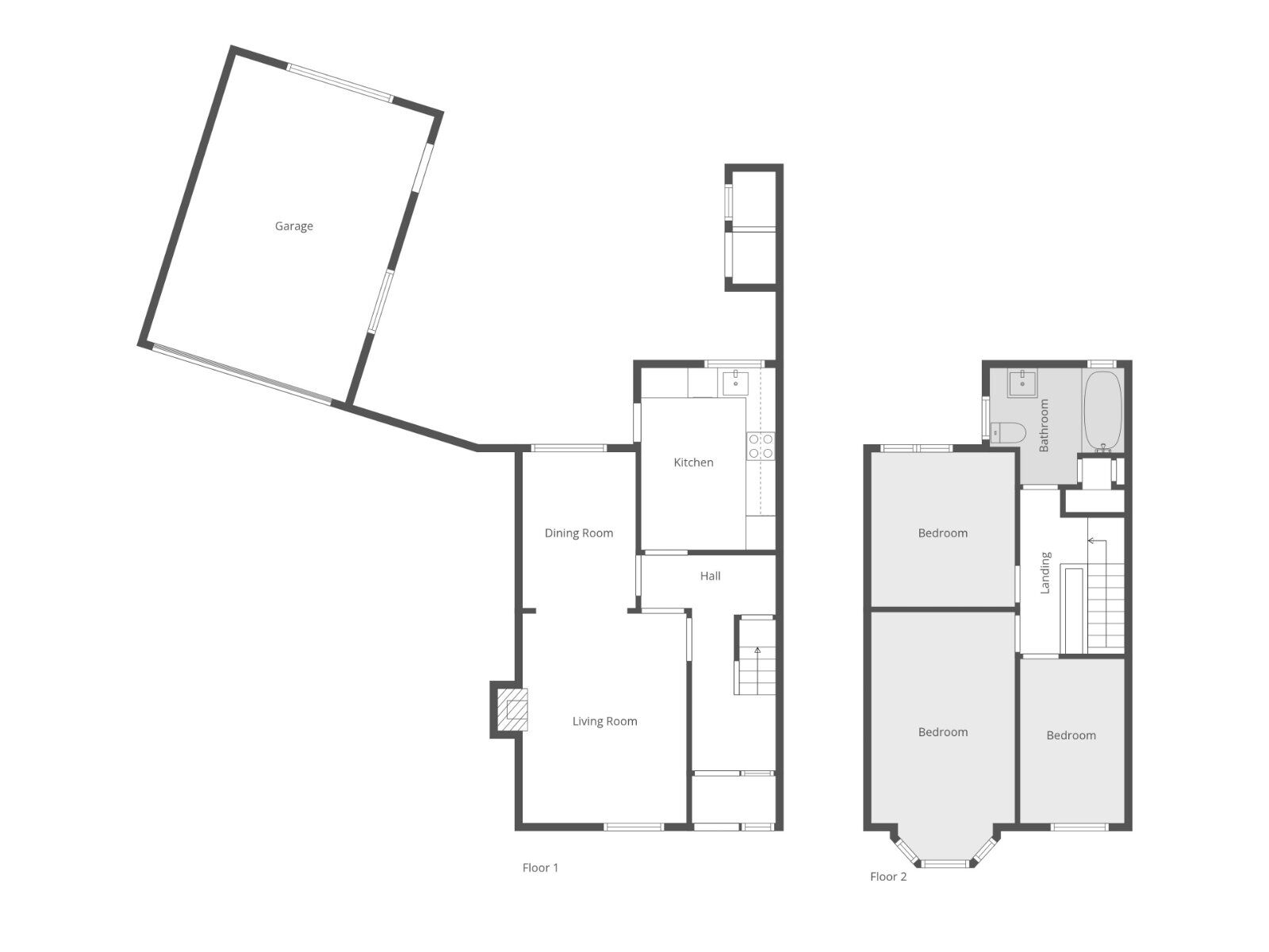
Entrance Porch
uPVC double glazed front door, laminate wooden floor, glazed door to hall.
Reception Hall
Cloaks recess under stairs.
Lounge
13'10" x 12'9" (4.22m x 3.89m)
Fireplace with slate hearth, open plan to Dining Room.
Dining Room
10'4" x 7'6" (3.15m x 2.29m)
Kitchen
12'0" x 8'11" (3.66m x 2.72m)
Single drainer stainless steel sink unit with mixer taps, excellent range of high and low level units with laminated work surfaces, built in oven and 4 ring ceramic hob, glass splash back, stainless steel chimney extractor fan, plumbed for washing machine, integrated fridge freezer, laminate wooden floor, uPVC double glazed door to rear garden.
First Floor Landing
Access to roof space.
Bedroom 1
16'4" x 9'6" (4.98m x 2.90m)
Bedroom 2
10'2" x 9'6" (3.10m x 2.90m)
Bedroom 3
10'10" x 6'11" (3.30m x 2.10m)
Bathroom
White suite comprising: Panelled bath with mixer taps and thermostatically controlled shower, dual flush WC pedestal wash hand basin, part panelled walls, heated towel rail, recessed spotlights, hot press with storage above.
Outside
Concrete driveway to excellent off street parking for multiple vehicles.
Detached Garage
19'8" x 13'9" (6.00m x 4.20m)
Roller door, side access.
Gardens
Front and side gardens in lawns and shrubs. Enclosed garden to the rear in lawns, shrubs and paved patio area. PVC Oil tank, boiler house with oil boiler. The property benefits from PVC fascia soffits and guttering.
NB
As a business carrying out estate agency work, we are required to verify the identity of both the vendor and the purchaser as outlined in the following: The Money Laundering, Terrorist Financing and Transfer of Funds (Information on the Payer) Regulations 2017 - https://www.legislation.gov.uk/uksi/2017/692/contents.To be able to purchase a property in the United Kingdom all agents have a legal requirement to conduct Identity checks on all customers involved in the transaction to fulfil their obligations under Anti Money Laundering regulations. We outsource this check to a third party and a charge will apply of £30 + VAT for a single purchaser or £50 + VAT per couple.
IMPORTANT NOTE TO POTENTIAL PURCHASERS:
We endeavour to make our particulars accurate and reliable, however, they do not constitute or form part of an offer or any contract and none is to be relied upon as statements of representation or fact. The services, systems and appliances listed in this specification have not been tested by us and no guarantee as to their operating ability or efficiency is given. All photographs and measurements have been taken as a guide only and are not precise. Floor plans where included are not to scale and accuracy is not guaranteed. If you require clarification or further information on any points, please contact us, especially if you are travelling some distance to view. Fixtures and fittings other than those mentioned are to be agreed with the seller.
Rosemary Park, Bangor, County Down, BT20





























The pin shows the exact address of the property
Energy Efficiency Rating
Very energy efficient - lower running costs
Not energy efficient - higher running costs
Current
51Potential
68CO2 Rating
Very energy efficient - lower running costs
Not energy efficient - higher running costs