This calculator provides a guide to the amount of residential stamp duty you may pay and does not guarantee this will be the actual cost. This calculation is based on the Stamp Duty Land Tax Rates for residential properties purchased from 23rd September 2022 and second homes from 31st October 2024. For more information on Stamp Duty Land Tax, click here.
4 bedroom Semi Detached House for sale, Wadsworth, Hebden Bridge, HX7
Features and Description
- DEVELOPMENT OF SIX PROPERTIES
- FANTASTIC LOCATION
- LUXURY HOMES
- CHARACTERFUL FEATURES
- VILLAGE LOCATION
- ENVIABLE VIEWS
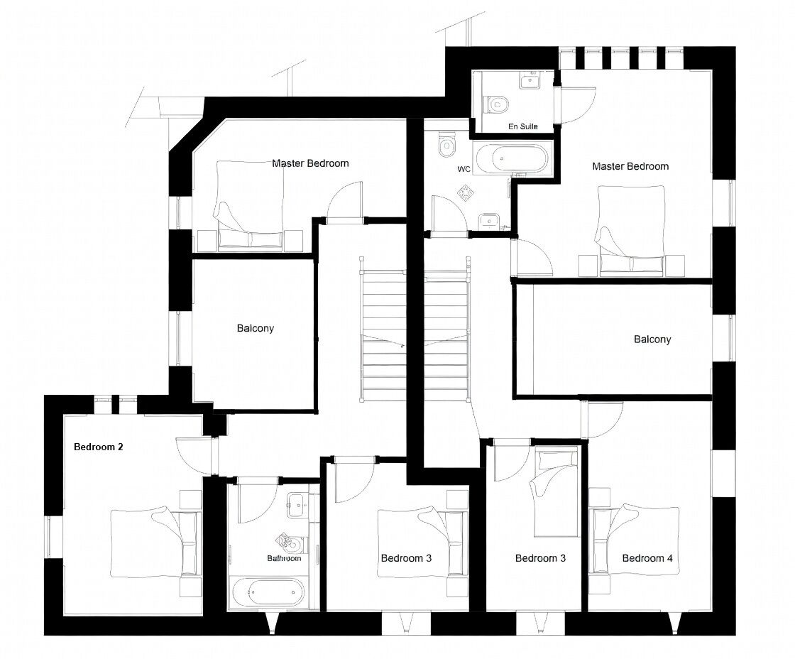
The Dairy Barn forms one half of the extensive original barn property. This four-bedroom, four-bathroom conversion is known has a dramatic double-height hallway which overlooks the living area creating a jaw dropping sense of height and space. There is garden and parking to the front aspect with stunning arched glass window on offer too. A truly remarkable building full of character and charm, all sat within a modern build.
Agents notes
FreeholdEPC- TBCCouncil Tax Band- TBCTo be able to purchase a property in the United Kingdom all agents have a legal requirement to conduct Identity checks on all customers involved in the transaction to fulfil their obligations under Anti Money Laundering regulations. We outsource this check to a third party and a charge will apply. Ask the branch for further details.
IMPORTANT NOTE TO POTENTIAL PURCHASERS:
We endeavour to make our particulars accurate and reliable, however, they do not constitute or form part of an offer or any contract and none is to be relied upon as statements of representation or fact. The services, systems and appliances listed in this specification have not been tested by us and no guarantee as to their operating ability or efficiency is given. All photographs and measurements have been taken as a guide only and are not precise. Floor plans where included are not to scale and accuracy is not guaranteed. If you require clarification or further information on any points, please contact us, especially if you are travelling some distance to view. Fixtures and fittings other than those mentioned are to be agreed with the seller.
Wadsworth, Hebden Bridge, HX7
Additional Information
-
Property refHBR260131
-
TenureFreehold
Similar properties for sale by Reeds Rains Hebden Bridge
The pin shows the exact address of the property
Energy Efficiency Rating
Very energy efficient - lower running costs
Not energy efficient - higher running costs
Current
N/APotential
N/ACO2 Rating
Very energy efficient - lower running costs
Not energy efficient - higher running costs
