This calculator provides a guide to the amount of residential stamp duty you may pay and does not guarantee this will be the actual cost. This calculation is based on the Stamp Duty Land Tax Rates for residential properties purchased from 23rd September 2022 and second homes from 31st October 2024. For more information on Stamp Duty Land Tax, click here.
3 bedroom Semi Detached House for sale, Western Avenue, Nantwich, Cheshire, CW5
Features and Description
- Semi-Detached Family Home
- Yards from Brine Leas and Weaver Schools
- Requiring Full Modernisation
- Three Good Size Bedrooms
- Close To Nantwich Lake and Two Centre
- Driveway and Garage
- Gardens to Front and Rear
- Secluded Rear Garden
Set within yards of Brine Leas Academy and Weaver Primary schools, with Nantwich centre and train station just a short stroll away, this semi detached property offers an ideal opportunity to update, improve and subject to any necessary permissions, extend to a buyers own style and requirements.
Requiring a full programme of modernisation, this well proportioned home offers an excellent opportunity, all in a perfect family location.
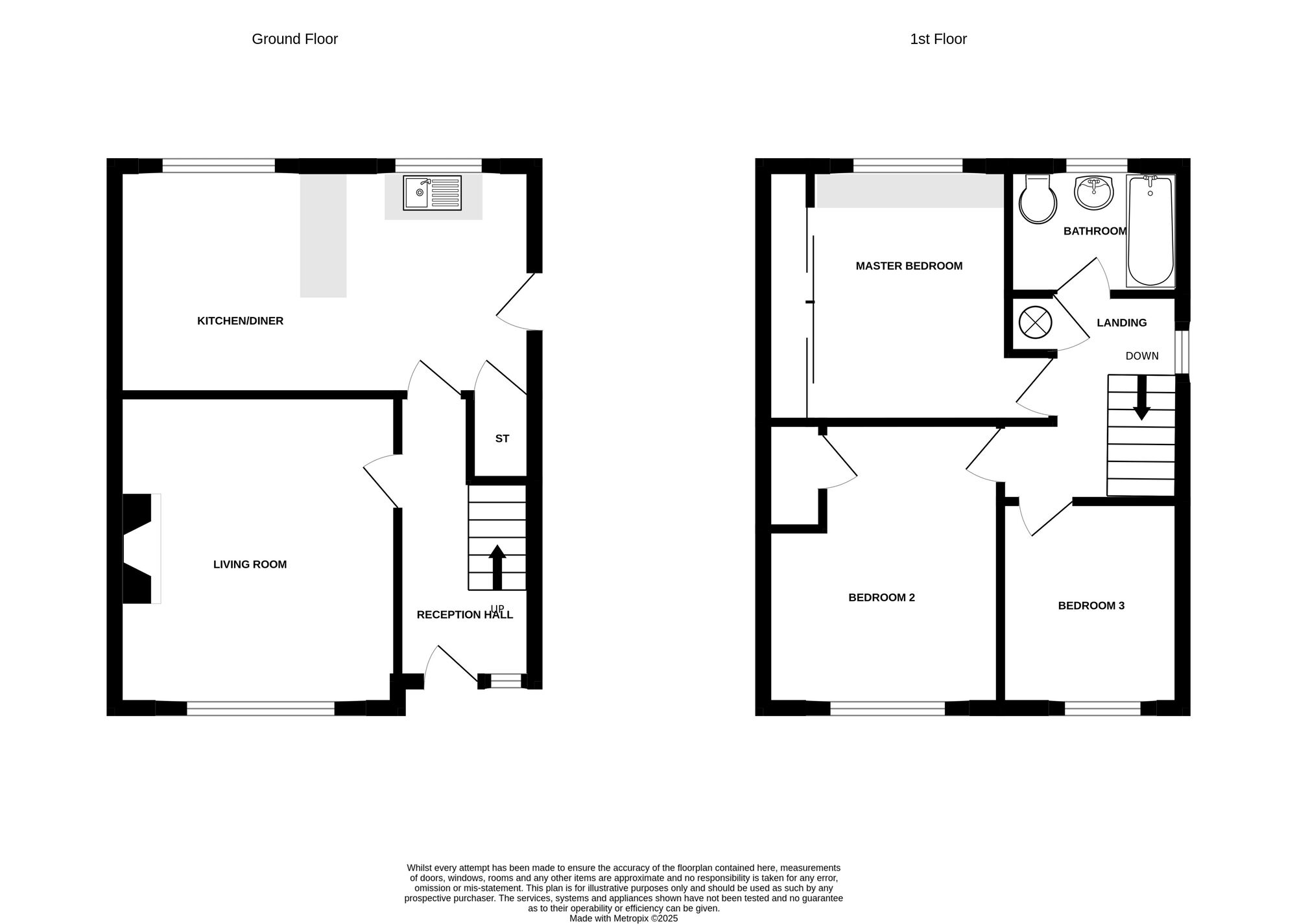
Reception Hall, Living Room, 18ft Kitchen/Dining Room, Three Bedrooms, Bathroom. Gardens to the front and rear, driveway providing off road parking, extending to the side and rear and giving access to the detached garage.
Living Room
13'6" x 12'0" (4.11m x 3.66m)
Kitchen / Dining Room
18'0" x 10'0" (5.49m x 3.05m)
Bedroom 1
12'8" x 9'10" (3.86m x 3.00m)
Bedroom 2
3.35m x 2.54m +wards
Bedroom 3
8'8" x 8'0" (2.64m x 2.44m)
IMPORTANT NOTE TO POTENTIAL PURCHASERS:
We endeavour to make our particulars accurate and reliable, however, they do not constitute or form part of an offer or any contract and none is to be relied upon as statements of representation or fact. The services, systems and appliances listed in this specification have not been tested by us and no guarantee as to their operating ability or efficiency is given. All photographs and measurements have been taken as a guide only and are not precise. Floor plans where included are not to scale and accuracy is not guaranteed. If you require clarification or further information on any points, please contact us, especially if you are travelling some distance to view. Fixtures and fittings other than those mentioned are to be agreed with the seller.
Western Avenue, Nantwich, Cheshire, CW5
Additional Information
-
Property refNAN240304
-
EPCE
-
TenureFreehold
-
Council TaxC
-
Local authorityCheshire East County Council
Similar properties for sale by Reeds Rains Nantwich
The pin shows the exact address of the property
Energy Efficiency Rating
Very energy efficient - lower running costs
Not energy efficient - higher running costs
Current
43Potential
76CO2 Rating
Very energy efficient - lower running costs
Not energy efficient - higher running costs
