This calculator provides a guide to the amount of residential stamp duty you may pay and does not guarantee this will be the actual cost. This calculation is based on the Stamp Duty Land Tax Rates for residential properties purchased from 23rd September 2022 and second homes from 31st October 2024. For more information on Stamp Duty Land Tax, click here.
3 bedroom Semi Detached House for sale, Westwood Avenue, Middlesbrough, North Yorkshire, TS5
Features and Description
- A fine example of it's kind
- Exquisite large three bedroom family home
- Updated and modernised to the highest of standards
- Outstanding superb kitchen/diner
- Three double bedrooms
- Stunning replacement sash windows
- Two large reception rooms
- Ground floor WC
- Gas central heating system
- Superb landscaped outside space and off street parking
- High quality fittings throughout
- An early internal viewing is simply essential
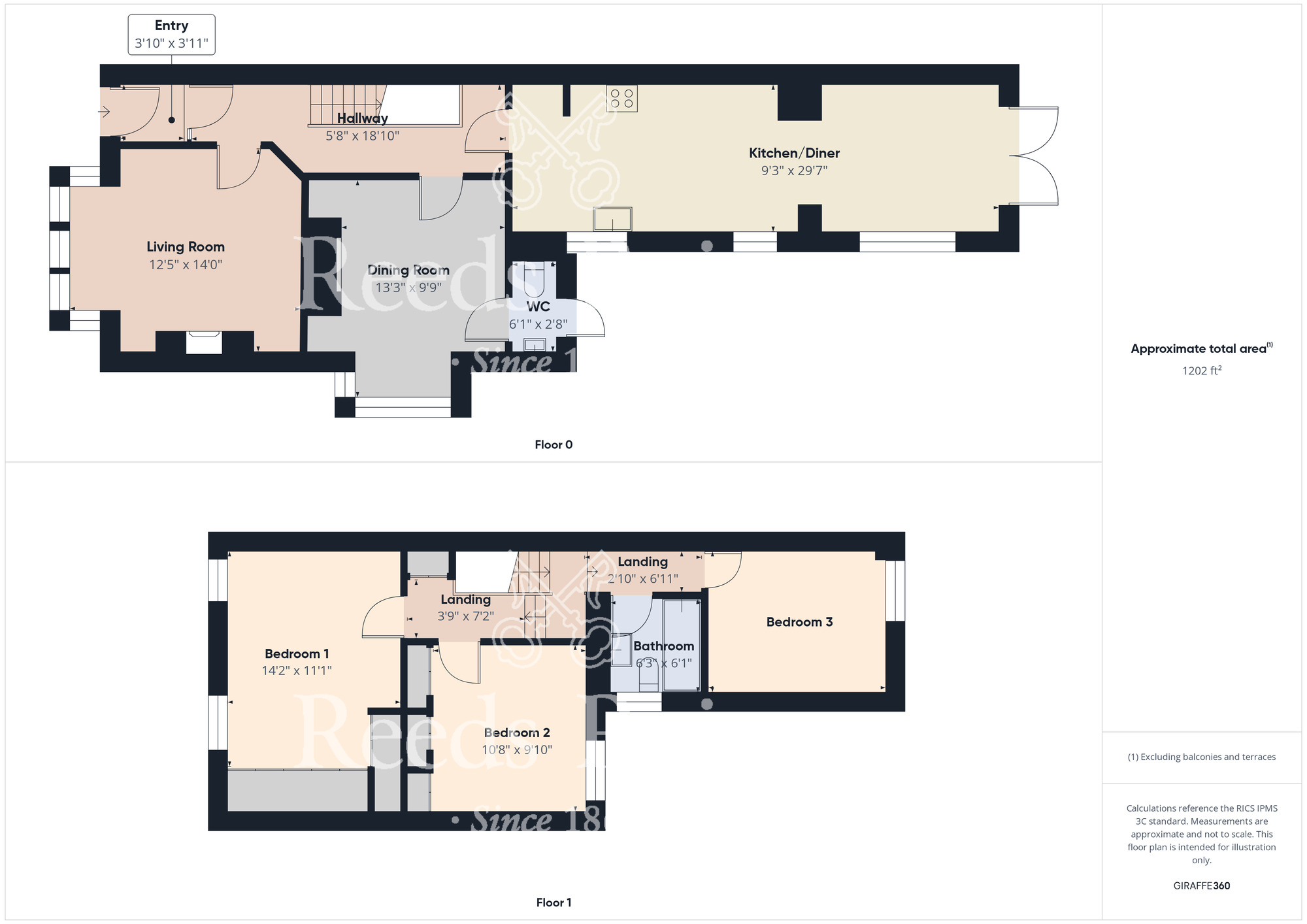
With absolutely no expense spared we are delighted to have been given instruction to market this outstanding family home which dates back to the 1900's. The property retains a whole host of its original character whilst being brought up to todays modern living standards. Immaculate throughout and boasting high quality fittings and offering accommodation comprising entrance vestibule, hallway, large lounge with feature bay window with sash windows. Additional reception room which is currently been used as a playroom but could be a dining room or has a number of potential usages. Ground floor wc perfect for young families. Outstanding re fitted kitchen with stunning units and integrated appliances, French doors from the breakfast area open on the beautifully landscaped rear garden. First floor landing fives access to three double bedrooms with the master bedroom having fitted wardrobes. Beautiful bathroom suite. Recent replacement sash windows. Gas central heating system. Low maintenance garden to the front. Externally there is a superb rear garden which has been landscaped with feature patio area. Double gates give access to the driveway. An early internal inspection is simply essential for the size and quality of this superb home to be fully appreciated. Tenure is freehold. EPC RATING TBC. COUNCIL TAX BAND IS D.
Agents Notes
EPC RATING TBCCOUNCIL TAX BAND IS DTENURE FREEHOLDProperty construction - BrickElectricity supply - MainsWater supply - MainsSewerage - MainsHeating - GasParking - Off StreetBuilding Safety - Contact SolicitorRestrictions - please refer to council websiteRights and easements - Contact SolicitorFlood risk - Very LowCoastal erosion - Very LowPlanning permission - Refer to Council WebsiteAccessibility / adaptions - Refer to CouncilCoalfield or mining area - See SolicitorBT, SKY VIRGIN AvailableStandard 22 mbpsSuperfast -Ultrafast 1000 mbps
Additional Information
HMRC is a supervisory body for money laundering regulations, of which all estate agents need to be registered with. As part of this, there are multiple requirements that agents must rigorously and consistently meet to ensure they stay compliant with the regulations and protect their clients. To do this, we use an identity verification service, approved by the Government as part of the Digital Identity and Attributes Trust Framework (DIATF). This method and the process we follow to ensure compliance for your transaction come with significant time, financial and legal implications hence a portion of this is passed on to our clients. We elected for this verification process due to the speed, certainty, and accuracy it delivers. This helps us to protect all our client's interests by using the most advanced verification process to help prevent the impacts of money laundering alongside our internal manual policies and procedures while staying compliant with HMRC.£40.00 + VAT for a sole purchaser£65.00 + VAT for two purchasers 75.00 + VAT for 3 or more purchasers.
IMPORTANT NOTE TO POTENTIAL PURCHASERS:
We endeavour to make our particulars accurate and reliable, however, they do not constitute or form part of an offer or any contract and none is to be relied upon as statements of representation or fact. The services, systems and appliances listed in this specification have not been tested by us and no guarantee as to their operating ability or efficiency is given. All photographs and measurements have been taken as a guide only and are not precise. Floor plans where included are not to scale and accuracy is not guaranteed. If you require clarification or further information on any points, please contact us, especially if you are travelling some distance to view. Fixtures and fittings other than those mentioned are to be agreed with the seller.
Westwood Avenue, Middlesbrough, North Yorkshire, TS5
Additional Information
-
Property refMID250663
-
EPCD
-
TenureFreehold
-
Council TaxD
-
Local authorityMiddlesbrough Council
Similar properties for sale by Reeds Rains Middlesbrough
The pin shows the exact address of the property
Energy Efficiency Rating
Very energy efficient - lower running costs
Not energy efficient - higher running costs
Current
65Potential
78CO2 Rating
Very energy efficient - lower running costs
Not energy efficient - higher running costs
