2 bedroom House to rent, The Conifers, Nicholas Street, Burnley, BB10
Available Unfurnished, from 03/11/2025
Features and Description
*** ZERO DEPOSIT GUARANTEE AVAILABLE *** HIGHLY DESIRABLE two-bedroomed first floor apartment, situated in the hugely desirable area of Harle Syke. The property offers an excellent spacious lounge/dining area open to the kitchen, bathroom and two great size double bedrooms, as well as residents parking. This will not stay on the market long!
EPC - Grade C
Council Tax - Band B
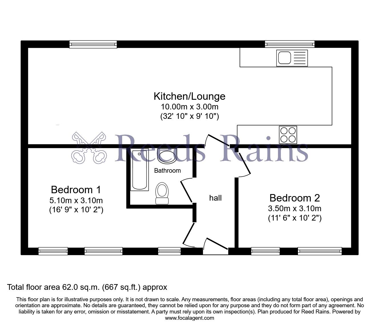
Hallway
Intercom and carpet
Lounge / Kitchen / Diner
32'10" x 9'10" (10.00m x 3.00m)
Upvc double glazed windiow overlooking car park, gas central heating radiator, carpeted, range of base and wall units with complimentary worktops, stainless steel sink with mixer tap, plumbing for washing machine and dishwasher, gas hob, electric oven and extractor, integrated fridge freezer
Bedroom 1
16'9" x 10'2" (5.10m x 3.10m)
Glass brick windows, gas central heating radiator, carpeted
Bedroom 2
11'6" x 10'2" (3.50m x 3.10m)
Upvc double glazed window, gas central heating radiator, carpeted, fitted wardrobe
Bathroom
7'7" x 6'3" (2.30m x 1.90m)
Three piece suite compromising of bath with faucet taps and shower over, sink, part tiled walls, carpeted, gas central heating radiator
IMPORTANT NOTE TO POTENTIAL RENTERS:
We endeavour to make our particulars accurate and reliable, however, they do not constitute or form part of an offer or any contract and none is to be relied upon as statements of representation or fact. The services, systems and appliances listed in this specification have not been tested by us and no guarantee as to their operating ability or efficiency is given. All photographs and measurements have been taken as a guide only and are not precise. Floor plans where included are not to scale and accuracy is not guaranteed. If you require clarification or further information on any points, please contact us, especially if you are travelling some distance to view.
All properties are available for a minimum of six months, with the exception of short term accommodation. A security deposit of at least one month’s rent is required. Rent is to be paid one month in advance. It is the tenant’s responsibility to insure any personal possessions. Payment of all utilities including water rates or metered supply and Council Tax is the responsibility of the tenant in every case.
Client Money Protection is provided by Propertymark. Redress through The Property Ombudsman Scheme.
The Conifers, Nicholas Street, Burnley, BB10
The pin shows the exact address of the property
Energy Efficiency Rating
Very energy efficient - lower running costs
Not energy efficient - higher running costs
Current
78Potential
80CO2 Rating
Very energy efficient - lower running costs
Not energy efficient - higher running costs
