This calculator provides a guide to the amount of residential stamp duty you may pay and does not guarantee this will be the actual cost. This calculation is based on the Stamp Duty Land Tax Rates for residential properties purchased from 23rd September 2022 and second homes from 31st October 2024. For more information on land transaction tax, click here.
3 bedroom Detached Bungalow for sale, Sandy Lane, Higher Kinnerton, Flintshire, CH4
Features and Description
- Three well-proportioned bedrooms – ideal for family living, guests, or home office use.
- Spacious lounge with large window and a modern electric fireplace.
- Open-plan kitchen/dining room – perfect for family meals and entertaining.
- Large utility room providing extra storage and laundry space.
- Bathroom in need of modernisation – ready for you to add your own style.
- Stunning wraparound garden overlooking the countryside.
- Detached single garage plus a private driveway with off-street parking.
- Additional garden shed for storage of tools, bikes, or equipment.
- Peaceful village location with a strong sense of community.
- Just outside Chester – enjoy countryside living with city amenities nearby.
- Single-level layout – perfect for downsizers, retirees, or anyone seeking accessible living.
Nestled in a quiet and picturesque village just a short drive from the historic city of Chester, this delightful 3-bedroom detached bungalow offers the perfect blend of countryside charm and everyday convenience.
Set on a generous plot in a friendly and well-established community, the property is well-presented throughout and provides spacious, single-level living ideally suited to families, downsizers, or those seeking a more relaxed pace of life.
At the heart of the home is a bright and inviting lounge, featuring a large front-facing window and a modern electric fireplace, creating a cosy focal point for relaxing evenings. The adjoining kitchen is well-equipped with ample storage and worktop space, with scope for personalisation.
There are three well-proportioned bedrooms, offering flexibility for sleeping, working from home, or accommodating guests, along with a family bathroom.
Outside, the property boasts a private and low-maintenance garden, ideal for enjoying the outdoors or entertaining. Additional benefits include a detached garage, providing secure parking or storage, and a useful garden shed, perfect for tools or outdoor equipment.
Located in a peaceful setting with stunning views of the countryside, yet within easy reach of Chester’s shops, restaurants, schools, and transport links, this lovely bungalow offers comfort, practicality, and a true sense of home.
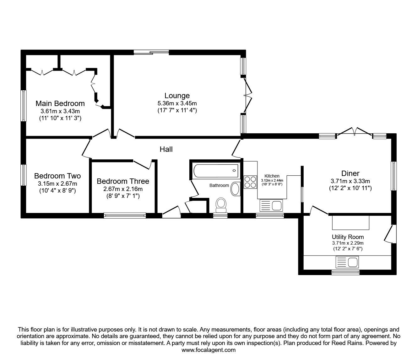
Living Room
17'7" x 11'4" (5.36m x 3.45m)
A bright and welcoming main living space, the lounge benefits from a large front-facing window that floods the room with natural light. The focal point is a modern electric fireplace, offering both warmth and ambiance, perfect for cosy evenings. Neutral décor and a spacious layout make this a comfortable area for relaxing or entertaining.
Kitchen Dining Room
10'3" x 8'0" (3.12m x 2.44m)
This open-plan kitchen and dining area forms the heart of the home—ideal for both everyday living and entertaining. The kitchen is fitted with a range of wall and base units, offering ample storage and workspace, while the dining area provides room for a family table and chairs. A rear door gives direct access to the garden, making al fresco dining easy in the warmer months.
Utility Room
12'2" x 7'6" (3.70m x 2.29m)
A fantastic addition to the property, the generous utility room offers plenty of space for laundry appliances, additional storage, and even a secondary food prep area if needed. It keeps the main kitchen clutter-free and adds valuable practicality to the home.
Master Bedroom
11'10" x 11'3" (3.60m x 3.43m)
A well-sized double bedroom located at the front of the property. Bright and peaceful, with plenty of room for wardrobes and storage, making it a perfect master bedroom.
Bedroom 2
10'4" x 8'9" (3.15m x 2.67m)
Another comfortable double bedroom, positioned at the rear of the bungalow. Overlooking the garden, it provides a quiet and relaxing retreat for guests or family.
Bedroom 3
8'9" x 7'1" (2.67m x 2.16m)
A versatile single bedroom that could also serve as a home office, nursery, or hobby room. Compact yet functional, it easily adapts to your lifestyle needs.
Bathroom
The bathroom is in need of modernisation, currently fitted with a traditional suite including a bath, basin, and W.C. While fully functional, it presents an excellent opportunity for the new owners to update and create a stylish, contemporary space to their own taste.
IMPORTANT NOTE TO POTENTIAL PURCHASERS:
We endeavour to make our particulars accurate and reliable, however, they do not constitute or form part of an offer or any contract and none is to be relied upon as statements of representation or fact. The services, systems and appliances listed in this specification have not been tested by us and no guarantee as to their operating ability or efficiency is given. All photographs and measurements have been taken as a guide only and are not precise. Floor plans where included are not to scale and accuracy is not guaranteed. If you require clarification or further information on any points, please contact us, especially if you are travelling some distance to view. Fixtures and fittings other than those mentioned are to be agreed with the seller.
Sandy Lane, Higher Kinnerton, Flintshire, CH4

Additional Information
-
Property refCHT240416
-
Council TaxE
-
Local authorityFlintshire County Council

Similar properties for sale by Reeds Rains Chester












The pin shows the exact address of the property
Energy Efficiency Rating
Very energy efficient - lower running costs
Not energy efficient - higher running costs
Current
N/APotential
N/ACO2 Rating
Very energy efficient - lower running costs
Not energy efficient - higher running costs