This calculator provides a guide to the amount of residential stamp duty you may pay and does not guarantee this will be the actual cost. This calculation is based on the Stamp Duty Land Tax Rates for residential properties purchased from 23rd September 2022 and second homes from 31st October 2024. For more information on Stamp Duty Land Tax, click here.
2 bedroom Detached Bungalow for sale, Somerford, Congleton, Cheshire, CW12
Features and Description
PRICES FROM £325,000.
Very flexible scheme with five available plots offering various positions on the development, with the distinct benefit of being able to custom design and build a detached lodge to suit various budgets.
Brand new riverside homes providing an exquisite rural retreat and uninterrupted views of the neighbouring countryside.
It is located on an exclusive niche development called Hunters Pointe, which is home to only twenty residential lodges, securely set behind electronically operated double gates in the heart of finest Cheshire countryside.
Hunters Pointe is discretely positioned in a hidden valley, sharing the Somerford Manor Estate and fifteen acres of idyllic natural woodland. It provides for a very tranquil setting where the 'River Dane' gently wraps around the beautifully manicured development.
Hunters Pointe which is not to be confused with any other development, this is a privileged freehold development maintained to the highest of standards.
This pictured lodge has a breathtaking and elevated vantage point over the River Dane and abundant wildlife. Internally, It has been designed with careful thought and attention, affording buyers with two spacious bedrooms, master suite, bathroom and a modern open plan living through kitchen space. This bright and airy property is 'turn key' and includes high specification fixtures, fittings, furniture and soft furnishings in the price.
Closer inspection is considered paramount and certainly of worthy consideration if you are searching for a nearby bungalow. We love it and believe it to be an ideal full time home or 'lock up and leave'.
Why not take a moment to admire our immersive, interactive virtual tour.
EPC EXEMPT.
Entrance Hall
Lift up seating area with cupboards. The wall is finished with 'V' groove detail and 'secret' coat hooks.Radiator.
Living / Dining / Kitchen
Tilt and slide doors.Vaulted ceiling with 'V' groove finish.Plus floor system (Maverick).Fully fitted kitchen units including larder and central island (dark steel) with integrated microwave, double oven, hob, fridge, freezer, dishwasher, wine cooler. Furniture, blinds curtains and soft furnishings all included.Radiators.Television connection.
Utility Room
Fully fitted units (matt light grey) with a natural acrylic worktop.Combination washer/ dryer.LPG boiler.Radiator.Coat hooks.
Family Bathroom
Waxman ceramic floor and wall tiling (Ionic/ sand with copper impact décor feature wall).'Laufen' suite comprising of a white WC and vanity basin bath and shower. Fitted vanity unit.Radiator.
Master Bedroom
Fitted wardrobe arrangement. Double ladies wardrobe with a single shelf and a double gentlemans wardrobe with three drawers (white Halifax oak).Dresser with mirror and stool. Two bedside cabinets.6' 6'' bed and headboard.Curtains and blinds.Radiator.Television.
En-Suite Shower Room
Waxman ceramic floor and wall tiling (ardesia/ gris),Suite comprising of a white WC, twin basins and vanity unit.Radiator.
Bedroom 2
Fitted wardrobe arrangement (white Halifax oak).Twin 3' beds and headboards.Two bedside cabinets.Mirror.Curtains.Radiator.Television connection.
Construction
Marley Eternit Cedral Weatherboard (burnt red)PVCu windows (anthracite)External spotlights and tap.
Exterior and Parking
Double width block paved parking, hardstanding for shed and a large decked sun terrace.
Utilities
Gas and Electricity (by meter reading).Water (approximately £22 per month).LPG Tank Rental (approximately £7.95 per quarter).
Agents Note / Disclaimer
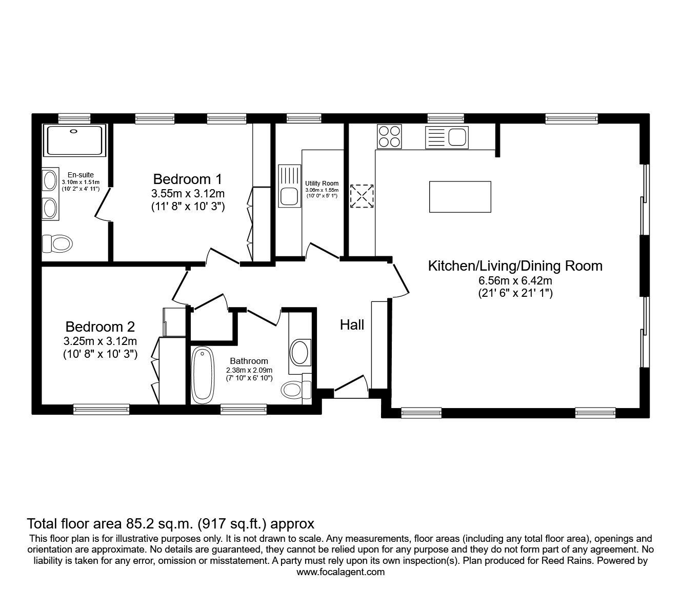
Photos, specifications and sizes are ILLUSTRATIVE ONLY to give an indication of the final finish that can be achieved. These should be used as a guide.There are two plots left plots for sale, which offer different vantage points and lodges are very customisable. This can be designed to suite a number of budgets.*Please note that the lodge measurements on the floorplan have been taken from a 45' model. Prices start at at £325,000 for a 40' and therefore room measurements may vary accordingly.
Agents Note
To be able to purchase a property in the United Kingdom all agents have a legal requirement to conduct Identity checks on all customers involved in the transaction to fulfil their obligations under Anti Money Laundering regulations. We outsource this check to a third party and a charge will apply. Ask the branch for further details.
IMPORTANT NOTE TO POTENTIAL PURCHASERS:
We endeavour to make our particulars accurate and reliable, however, they do not constitute or form part of an offer or any contract and none is to be relied upon as statements of representation or fact. The services, systems and appliances listed in this specification have not been tested by us and no guarantee as to their operating ability or efficiency is given. All photographs and measurements have been taken as a guide only and are not precise. Floor plans where included are not to scale and accuracy is not guaranteed. If you require clarification or further information on any points, please contact us, especially if you are travelling some distance to view. Fixtures and fittings other than those mentioned are to be agreed with the seller.
Somerford, Congleton, Cheshire, CW12
Additional Information
-
Property refCNG250206
-
TenureFreehold
-
Council TaxA
-
Local authorityCheshire East Council
Similar properties for sale by Reeds Rains Congleton
The pin shows the exact address of the property
Energy Efficiency Rating
Very energy efficient - lower running costs
Not energy efficient - higher running costs
Current
N/APotential
N/ACO2 Rating
Very energy efficient - lower running costs
Not energy efficient - higher running costs
