This calculator provides a guide to the amount of residential stamp duty you may pay and does not guarantee this will be the actual cost. This calculation is based on the Stamp Duty Land Tax Rates for residential properties purchased from 23rd September 2022 and second homes from 31st October 2024. For more information on Stamp Duty Land Tax, click here.
4 bedroom Detached House for sale, Back Lane, Burton Pidsea, East Yorkshire, HU12
Features and Description
- The Chestnuts is a striking Grade II listed former farmhouse dating from 1835, nestled along leafy Back Lane in Burton Pidsea.
- Offering a foot print of over 4,000 sq ft, this exceptional home blends original charm with carefully sourced period features across three floors—served by three separate staircases.
- Lovingly renovated by the current owners since 2007, the property showcases high ceilings, sash-style windows, elegant fireplaces, and recreated coving throughout.
- Living spaces include a grand reception hall, two formal reception rooms, a stunning 27ft kitchen/dining/family room with bespoke cabinetry and granite worktops, a utility, study and WC.
- Upstairs offers four large bedrooms, including a principal suite with luxurious ensuite, a Jack & Jill bathroom, and an additional house bathroom. Two staircases lead to generous attic rooms with scope for further conversion.
- Outside, a sweeping gravel driveway, large garage, beautiful side garden, courtyard and original stable block complete the picture.
- Offered with no onward chain, The Chestnuts is a rare opportunity to own a remarkable period home in an idyllic village setting.
- Council Tax Band G – EPC Exempt (Listed)
The Chestnuts is a truly magnificent detached former farmhouse, Grade II listed and dating back to 1835, occupying a commanding position along the peaceful and leafy Back Lane in the highly sought-after East Riding village of Burton Pidsea.
With a substantial internal footprint of over 4,000 sq ft arranged across three floors, this exceptional home offers beautifully restored and character-filled living spaces, all set within an expansive mature plot that includes established gardens, a former stable block, generous parking and a large attached garage.
When the current owners first stepped through the front door in 2007, there was no doubt in their minds—this was to be their dream family home. Although in need of total renovation, they saw the potential and embarked on an extensive and sensitive restoration programme. The result is quite simply stunning. Many original features have been preserved, while others—such as decorative coving and fireplaces—have been carefully sourced or recreated to reflect the home’s early 19th-century heritage, blending seamlessly with modern touches for comfortable everyday living.
This is a home of genuinely grand proportions and immense warmth, where character and attention to detail are evident throughout. A beautiful portico entrance opens into a welcoming reception hallway, where the sweeping original staircase immediately sets the tone. High ceilings, large sash-style windows, elegant fireplaces and quality finishes continue throughout the main living spaces.
The principal sitting room is a wonderfully light-filled space with dual-aspect sash-style windows and a handsome marble fireplace housing a log-burning stove. The separate family room is equally charming, with its own period-style fireplace and a peaceful outlook over the grounds. At the heart of the home lies a vast 27ft kitchen/dining/family room—an outstanding everyday living and entertaining space—fitted with bespoke shaker-style cabinetry, solid granite worktops, a traditional range cooker, and a feature central island. There’s also a useful utility/laundry room, rear hallway, study, and smartly finished ground floor cloakroom/WC.
Unusually, there are three separate staircases rising to the first and second floors—one from the main hall and two from the kitchen leading to the former staff quarters—which offer both character and versatility in layout.
Upstairs, the principal bedroom is a serene retreat with views over the front garden, original window shutters and its own elegant four-piece ensuite bathroom. A central landing leads to another spacious double bedroom, while a second landing—accessed via one of the additional staircases—leads to two further double bedrooms connected via a Jack and Jill ensuite, and a beautifully appointed main house bathroom featuring travertine tiling, a freestanding bath and walk-in shower.
Two staircases then rise to the top floor, where the former attic rooms—once used as staff quarters in a bygone era—offer superb potential for further conversion (subject to any necessary consents). These large, versatile spaces are perfect for additional bedrooms, workspaces or guest accommodation.
Outside, the property continues to impress. An in-and-out gravel driveway provides plentiful parking and leads to an attached garage. The grounds are equally special—beautifully landscaped, with a mature lawned garden to the side, enclosed by established trees, shrubs and a striking original brick and stone wall. At the rear, a charming enclosed courtyard offers a tranquil spot to relax, and the former stable block, currently used for storage, is brimming with potential for conversion into a studio, garden room or home office.
The Chestnuts is offered to the market with no onward chain, allowing a smooth and uncomplicated purchase. This is a truly remarkable home—rich in history, full of soul, and immaculately presented. Viewings are highly recommended to fully appreciate everything it offers.
Council Tax Band: G
Local Authority: East Riding of Yorkshire Council
EPC: Exempt (Grade II Listed)
Entrance Hall
11'10" x 8'10" (3.60m x 2.70m)
A grand welcome awaits through the impressive pillared portico, leading to a partially glazed timber entrance door that opens into the elegant entrance hall. This space delivers an immediate sense of the home's character and quality, with its stunning original spindled dog-leg staircase rising to the first floor. The hallway is finished with a warm-toned oak floor covering, beautiful ceiling coving, and a striking stained glass fanlight above the front door. Radiator and deep skirting boards complete the refined feel of this majestic introduction.
Cloakroom
5'9" x 4'8" (1.75m x 1.42m)
Stylishly appointed with a modern two-piece suite in white, comprising a flush WC and contemporary wash basin set into a sleek vanity unit with integrated storage. A side-facing window provides ventilation and natural light, ceramic splash-back tiling and laminate flooring completing the look.
Sitting Room
16'6" x 14'9" (5.03m x 4.50m)
A wonderfully proportioned reception room bathed in natural light from traditional sash windows to the front and side aspects, offering delightful views of the surrounding grounds. A beautiful marble fireplace with a complementary hearth houses a log-burning stove—perfect for cosy evenings. Rich oak flooring, elegant ceiling coving, and heritage-style skirting boards combine to create a timeless, luxurious living space.
Family Room
14'12" x 14'6" (4.57m x 4.42m)
Positioned to the front of the property, this inviting room is equally suited as a formal reception or relaxed family lounge. A period cast-iron fireplace with tiled inserts and an open grate offers an ideal focal point, framed by a charming overmantel mirror and surround. A built-in storage cupboard nestles into the recess, while oak flooring and ceiling coving continue the theme of classic elegance. A sash window adds to the room's authentic charm and fills the space with natural light.
Kitchen / Dining Room
27'9" x 16'0" (8.46m x 4.88m)
The true heart of the home—this magnificent open-plan kitchen, dining, and living space is designed for family life and entertaining in style. Sash-style windows to the side and rear offer garden views and natural light throughout. The bespoke shaker-style cabinetry is arranged across wall and base levels and topped with solid midnight black granite worktops. Brick-pattern ceramic tiling adds texture and heritage charm, while an Inglenook-style recess houses an impressive cream Rangemaster oven. Built-in microwave. A substantial central island features a small white porcelain Belfast sink with mixer tap, extra storage, and a breakfast bar—ideal for informal dining or socialising. Additional features include a further Belfast sink unit, travertine flooring, ceiling spotlights, ceiling coving, and a raised oak-floored dining area. Two concealed staircases provide separate access to the upper floors, and partially glazed external doors lead to the side garden and a useful storage area.
Utility Room
17'1" x 8'11" (5.20m x 2.72m)
Practical yet stylish, the utility room includes a Yorkshire sash style window to the side elevation and is fitted with a stainless steel sink inset into a laminated worktop. A range of storage cupboards is complemented by ceramic splashback tiling, with ample space for laundry appliances and household essentials.
Inner Hallway
8'3" x 2'12" (2.51m x 0.91m)
Flowing from the kitchen and connecting back to the main entrance hall, this inner corridor includes a built-in storage cupboard and provides access to the study, cloakroom, and kitchen. Laminate flooring ensures a seamless transition between spaces.
Study
12'5" x 8'9" (3.78m x 2.67m)
A flexible space ideal for home working, reading, or quiet reflection. Windows to the side and rear allow plenty of natural light, while the neutral décor and laminate flooring create a calm and productive atmosphere.
Main Landing
8'12" x 8'9" (2.74m x 2.67m)
Accessed via the magnificent original spindle staircase, the first-floor landing sets a graceful tone with its generous proportions and soft natural light. A feature sash window to the front offers charming views while detailed ceiling coving and a classic radiator continue the elegant period styling. A half-landing leads to the rear section of the home.
Principal Bedroom
16'1" x 14'12" (4.90m x 4.57m)
A superb principal suite, beautifully proportioned and filled with light from a large sash window to the front—complete with original shutters that add a touch of grandeur. Ceiling coving and radiator. A door and steps lead down to the en-suite bathroom, creating a private, luxurious retreat.
En-Suite
12'7" x 8'6" (3.84m x 2.60m)
This stunning en-suite is a true highlight, appointed with a timeless four-piece suite in period style. It features a freestanding roll-top bath set on clawed feet, a wash basin atop a heritage vanity stand, a low-flush WC, and an large walk-in shower with fitted rain shower. Stylish ceramic tiling and a column radiator with an integrated heated towel rail complete the space, while a side-facing sash window brings in natural light.
Bedroom 2
14'12" x 14'5" (4.57m x 4.40m)
Another elegant double room with sash window to the front, retaining original internal shutters that add character and authenticity. A built-in storage cupboard offers practicality, while ceiling coving and a traditional radiator complete the room’s timeless aesthetic. Door connecting through to the:
Rear Landing
12'2" x 2'10" (3.70m x 0.86m)
The rear landing, accessed via a separate staircase rising from the kitchen, serves as a flexible circulation area with access to a built-in storage cupboard, two further bedrooms, and the family bathroom. A concealed staircase continues up to the upper loft rooms, giving a sense of private separation for the upper quarters.
Bedroom 3
16'0" x 12'3" (4.88m x 3.73m)
A charming double bedroom featuring a sash window to the side, ornate cast-iron fireplace providing an ornamental focal point, and traditional ceiling coving. A connecting door leads through to Bedroom Four, offering potential for a suite-style layout or flexible multi-room use. Another door opens into the Jack and Jill en-suite.
Bedroom 4
17'3" x 15'11" (5.26m x 4.85m)
With a sash window overlooking the rear garden, Bedroom Four is a delightful space boasting ceiling coving, radiator and a charming feature fireplace. A small landing area off this room includes a staircase leading up to the loft room—adding scope and versatility.
Jack & Jill En-Suite
5'1" x 4'11" (1.55m x 1.50m)
Shared between Bedrooms Three and Four, this well-appointed en-suite shower room is fitted with a contemporary three-piece suite in white. It includes a flush WC, a wash basin set into a sleek vanity cabinet with storage, and a fully tiled shower enclosure. Stylish ceramic splashback tiling and vinyl floor covering complete the room.
House Bathroom
14'7" x 5'3" (4.45m x 1.60m)
This superbly finished family bathroom is bathed in natural light from two sash windows to the rear and showcases a luxurious four-piece suite in white. It features a panelled bath, a walk-in shower enclosure, low-flush WC, and a heritage-style vanity unit with wash basin. Extensive travertine wall tiling, tiled flooring, a column radiator with heated towel rail, and recessed ceiling spotlights complete this indulgent space.
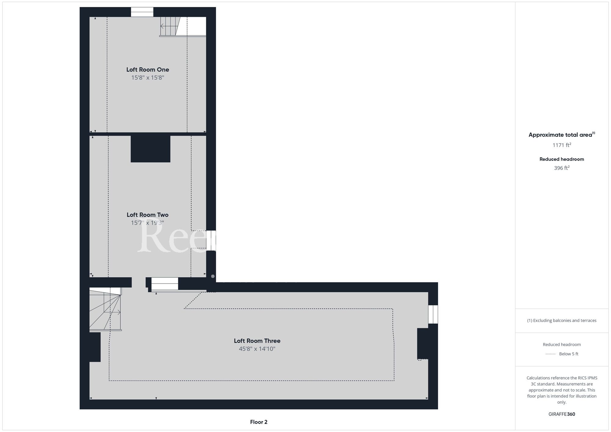
Loft Room
15'8" x 15'8" (4.78m x 4.78m)
Accessed via the rear staircase, Loft Room One is a substantial space filled with potential. Once used as staff quarters in a bygone era, it retains a traditional sash-style window to the side and is currently used for storage—though it offers excellent scope for conversion into an additional bedroom, home office, or creative studio.
Loft Room
45'8" x 14'10" (13.92m x 4.52m)
A further expansive and versatile loft space, boasting exposed ceiling trusses and a small side-facing window. It presents as a blank canvas for further development, ideal as a games room, gym, or large home office. A connecting door leads through to Loft Room Three.
Loft Room
17'3" x 15'7" (5.26m x 4.75m)
Currently utilised for storage, this final loft space completes the trio and offers additional flexibility for conversion. With a side-facing window and generous proportions, it’s full of promise for those looking to extend the home's living space even further.
Driveway
‘The Chestnuts’ enjoys a commanding position along sought-after Back Lane, approached via an impressive in-and-out gravel driveway. Mature hedging and a collection of established chestnut and specimen trees provide privacy and grandeur, while generous parking is available for multiple vehicles. The western access is retained by the adjoining converted barn (the seller’s new residence), with a right of way/entry assigned for usage of the new owners of The Chestnuts. The entry point at the opposite end is solely for The Chestnuts.
Attached Gargage
25'3" x 14'12" (7.70m x 4.57m)
Accessed from the front through double doors. Internal door leading into the kitchen.
Rear Courtyard Garden
To the rear lies a charming courtyard area—an ideal spot for a morning coffee or a quiet evening drink. A paved path connects this space back to the kitchen entrance and offers easy access to the stable block. Internal store (13'8'' max x 9'2'' max).
Stable Block
Rich with character and brimming with potential, the original stable block comprises separate rooms, each with its own entrance. Currently used for storage, this space is ideal for conversion into a studio, garden room, or bespoke home office, subject to relevant permissions. A wonderful opportunity to further enhance the lifestyle appeal of this unique home.
Side Garden
A truly magnificent partially walled garden unfolds to the side of the property—a private and picturesque sanctuary primarily laid to lawn, perfect for family living, entertaining, or quiet relaxation. The garden is safely enclosed, making it ideal for children and pets, with richly stocked borders filled with mature shrubs, perennials, and trees. A handsome original brick and stone wall frames one end, reinforcing the property’s historic character.
Agent's Note
To fulfil the obligation to share material information, please follow the web link where you'll find a comprehensive document containing key facts for buyers, providing valuable insights related to the property that you'll undoubtedly find useful.
Agent's Note 2
HMRC is a supervisory body for money laundering regulations, of which all estate agents need to be registered. As part of this, there are multiple requirements that agents must rigorously and consistently meet to ensure they stay compliant with the regulations and protect their clients. To do this, we use an identity verification service, approved by the Government as part of the Digital Identity and Attributes Trust Framework (DIATF). This method and the process we follow to ensure compliance for your transaction come with significant time, financial and legal implications hence a portion of this is passed on. We elected for this verification process due to the speed, certainty, and accuracy it delivers. This helps us to protect all our client's interests by using the most advanced verification process to help prevent the impacts of money laundering alongside our internal manual policies and procedures while staying compliant with HMRC.
Agent's Note Two Continued
The administrative charge for this process is £40 plus VAT for a sole purchaser, £65 plus VAT for two purchasers and £75 plus VAT three or more purchasers.
IMPORTANT NOTE TO POTENTIAL PURCHASERS:
We endeavour to make our particulars accurate and reliable, however, they do not constitute or form part of an offer or any contract and none is to be relied upon as statements of representation or fact. The services, systems and appliances listed in this specification have not been tested by us and no guarantee as to their operating ability or efficiency is given. All photographs and measurements have been taken as a guide only and are not precise. Floor plans where included are not to scale and accuracy is not guaranteed. If you require clarification or further information on any points, please contact us, especially if you are travelling some distance to view. Fixtures and fittings other than those mentioned are to be agreed with the seller.
Back Lane, Burton Pidsea, East Yorkshire, HU12
Additional Information
-
Property refHUL250371
-
TenureFreehold
-
Council TaxG
-
Local authorityEast Riding of Yorkshire Council
A grand welcome awaits through the impressive pillared portico, leading to a partially glazed timber entrance door that opens into the elegant entrance hall. This space delivers an immediate sense of the home's character and quality, with its stunning original spindled dog-leg staircase rising to the first floor. The hallway is finished with a warm-toned oak floor covering, beautiful ceiling coving, and a striking stained glass fanlight above the front door. Radiator and deep skirting boards complete the refined feel of this majestic introduction.
Stylishly appointed with a modern two-piece suite in white, comprising a flush WC and contemporary wash basin set into a sleek vanity unit with integrated storage. A side-facing window provides ventilation and natural light, ceramic splash-back tiling and laminate flooring completing the look.
A wonderfully proportioned reception room bathed in natural light from traditional sash windows to the front and side aspects, offering delightful views of the surrounding grounds. A beautiful marble fireplace with a complementary hearth houses a log-burning stove—perfect for cosy evenings. Rich oak flooring, elegant ceiling coving, and heritage-style skirting boards combine to create a timeless, luxurious living space.
Positioned to the front of the property, this inviting room is equally suited as a formal reception or relaxed family lounge. A period cast-iron fireplace with tiled inserts and an open grate offers an ideal focal point, framed by a charming overmantel mirror and surround. A built-in storage cupboard nestles into the recess, while oak flooring and ceiling coving continue the theme of classic elegance. A sash window adds to the room's authentic charm and fills the space with natural light.
The true heart of the home—this magnificent open-plan kitchen, dining, and living space is designed for family life and entertaining in style. Sash-style windows to the side and rear offer garden views and natural light throughout. The bespoke shaker-style cabinetry is arranged across wall and base levels and topped with solid midnight black granite worktops. Brick-pattern ceramic tiling adds texture and heritage charm, while an Inglenook-style recess houses an impressive cream Rangemaster oven. Built-in microwave. A substantial central island features a small white porcelain Belfast sink with mixer tap, extra storage, and a breakfast bar—ideal for informal dining or socialising. Additional features include a further Belfast sink unit, travertine flooring, ceiling spotlights, ceiling coving, and a raised oak-floored dining area. Two concealed staircases provide separate access to the upper floors, and partially glazed external doors lead to the side garden and a useful storage area.
Practical yet stylish, the utility room includes a Yorkshire sash style window to the side elevation and is fitted with a stainless steel sink inset into a laminated worktop. A range of storage cupboards is complemented by ceramic splashback tiling, with ample space for laundry appliances and household essentials.
A flexible space ideal for home working, reading, or quiet reflection. Windows to the side and rear allow plenty of natural light, while the neutral décor and laminate flooring create a calm and productive atmosphere.
Accessed via the magnificent original spindle staircase, the first-floor landing sets a graceful tone with its generous proportions and soft natural light. A feature sash window to the front offers charming views while detailed ceiling coving and a classic radiator continue the elegant period styling. A half-landing leads to the rear section of the home.
A superb principal suite, beautifully proportioned and filled with light from a large sash window to the front—complete with original shutters that add a touch of grandeur. Ceiling coving and radiator. A door and steps lead down to the en-suite bathroom, creating a private, luxurious retreat.
This stunning en-suite is a true highlight, appointed with a timeless four-piece suite in period style. It features a freestanding roll-top bath set on clawed feet, a wash basin atop a heritage vanity stand, a low-flush WC, and an large walk-in shower with fitted rain shower. Stylish ceramic tiling and a column radiator with an integrated heated towel rail complete the space, while a side-facing sash window brings in natural light.
Another elegant double room with sash window to the front, retaining original internal shutters that add character and authenticity. A built-in storage cupboard offers practicality, while ceiling coving and a traditional radiator complete the room’s timeless aesthetic. Door connecting through to the:
A charming double bedroom featuring a sash window to the side, ornate cast-iron fireplace providing an ornamental focal point, and traditional ceiling coving. A connecting door leads through to Bedroom Four, offering potential for a suite-style layout or flexible multi-room use. Another door opens into the Jack and Jill en-suite.
With a sash window overlooking the rear garden, Bedroom Four is a delightful space boasting ceiling coving, radiator and a charming feature fireplace. A small landing area off this room includes a staircase leading up to the loft room—adding scope and versatility.
Shared between Bedrooms Three and Four, this well-appointed en-suite shower room is fitted with a contemporary three-piece suite in white. It includes a flush WC, a wash basin set into a sleek vanity cabinet with storage, and a fully tiled shower enclosure. Stylish ceramic splashback tiling and vinyl floor covering complete the room.
This superbly finished family bathroom is bathed in natural light from two sash windows to the rear and showcases a luxurious four-piece suite in white. It features a panelled bath, a walk-in shower enclosure, low-flush WC, and a heritage-style vanity unit with wash basin. Extensive travertine wall tiling, tiled flooring, a column radiator with heated towel rail, and recessed ceiling spotlights complete this indulgent space.
Accessed via the rear staircase, Loft Room One is a substantial space filled with potential. Once used as staff quarters in a bygone era, it retains a traditional sash-style window to the side and is currently used for storage—though it offers excellent scope for conversion into an additional bedroom, home office, or creative studio.
‘The Chestnuts’ enjoys a commanding position along sought-after Back Lane, approached via an impressive in-and-out gravel driveway. Mature hedging and a collection of established chestnut and specimen trees provide privacy and grandeur, while generous parking is available for multiple vehicles. The western access is retained by the adjoining converted barn (the seller’s new residence), with a right of way/entry assigned for usage of the new owners of The Chestnuts. The entry point at the opposite end is solely for The Chestnuts.
To the rear lies a charming courtyard area—an ideal spot for a morning coffee or a quiet evening drink. A paved path connects this space back to the kitchen entrance and offers easy access to the stable block. Internal store (13'8'' max x 9'2'' max).
Rich with character and brimming with potential, the original stable block comprises separate rooms, each with its own entrance. Currently used for storage, this space is ideal for conversion into a studio, garden room, or bespoke home office, subject to relevant permissions. A wonderful opportunity to further enhance the lifestyle appeal of this unique home.
A truly magnificent partially walled garden unfolds to the side of the property—a private and picturesque sanctuary primarily laid to lawn, perfect for family living, entertaining, or quiet relaxation. The garden is safely enclosed, making it ideal for children and pets, with richly stocked borders filled with mature shrubs, perennials, and trees. A handsome original brick and stone wall frames one end, reinforcing the property’s historic character.
The pin shows the exact address of the property
Energy Efficiency Rating
Very energy efficient - lower running costs
Not energy efficient - higher running costs
Current
N/APotential
N/ACO2 Rating
Very energy efficient - lower running costs
Not energy efficient - higher running costs
