This calculator provides a guide to the amount of residential stamp duty you may pay and does not guarantee this will be the actual cost. This calculation is based on the Stamp Duty Land Tax Rates for residential properties purchased from 23rd September 2022 and second homes from 31st October 2024. For more information on Stamp Duty Land Tax, click here.
4 bedroom Detached House for sale, Colleys Lane, Willaston, Cheshire, CW5
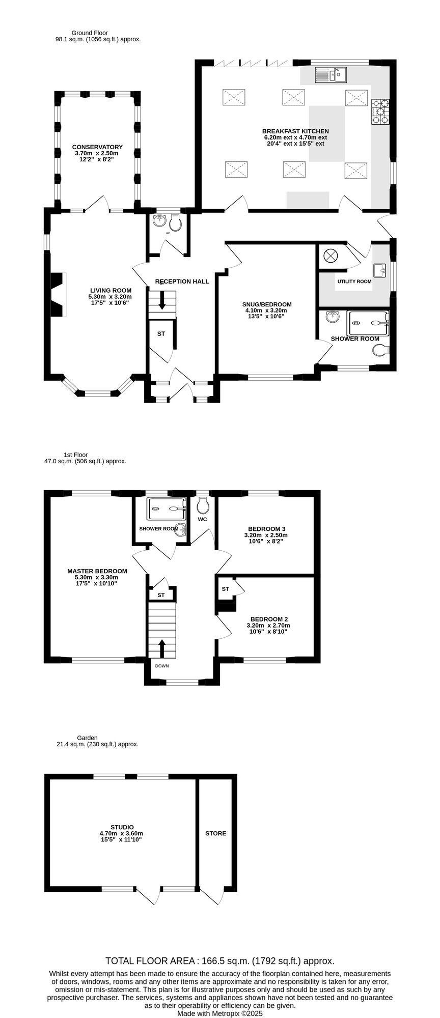
Features and Description
- Family-built home from the 1950s with enduring character
- Twenty ft kitchen/family room with vaulted ceiling
- Skylight windows flood family area with natural daylight
- Ground floor bedroom with private en-suite for flexibility
- Mature gardens offering privacy and year-round enjoyment
- Detached, fully insulated office/studio for home working
- Adaptable layout suited to multi-generational or evolving needs
- Situated in the heart of Willaston village community
- Excellent access to Nantwich, Chester and Manchester by road
- Strong rail connections nearby for swift regional travel
A fine period home, set at the heart of Willaston, occupying a private position along Colleys Lane, a location that blends village life with excellent access to Nantwich, Crewe and the Cheshire countryside. Built by the family in the early 1950s, the house has been carefully maintained and sensitively modernised, offering a home that is both welcoming and adaptable to the needs of contemporary living.
The most striking feature of the property is the twenty-foot kitchen and family room. Designed as the central hub of the house, with a stunning vaulted ceiling punctuated with skylight windows, drawing natural light throughout the day and creating a sense of space that is ideal for gatherings, cooking and daily life. Bi-fold doors open to the garden, allowing the inside and outside to connect seamlessly.
Practicality is well considered. The ground floor includes a spacious bedroom with its own private bathroom, offering independence and comfort for a relative, guest or older teenager. This arrangement makes the property versatile across different stages of family life, whether accommodating multi-generational living or offering privacy for visiting friends.
The gardens are mature and thoughtfully planned, with a detached, fully insulated office/studio tucked away to provide a quiet retreat. Whether used for home working, creative projects or exercise, it gives a professional standard of space separate from the main house.
Willaston itself retains the charm of a traditional Cheshire village, with local shops, a primary school and welcoming community atmosphere. Road and rail connections are excellent, placing Manchester, Chester and the North West within easy reach, while Nantwich provides a wider selection of restaurants, boutiques and services.
A rare opportunity to acquire a family-built home in a sought-after setting, offering both character and modern comfort in equal measure.
Living Room
6.1m x 3.25m max
Conservatory
12'12" x 9'4" (3.96m x 2.84m)
Bedroom 4
13'6" x 10'6" (4.11m x 3.20m)
Kitchen / Family Room
20'6" x 15'2" (6.25m x 4.62m)
Utility Room
7'4" x 6'8" (2.24m x 2.03m)
Bedroom 1
16'12" x 9'2" (5.18m x 2.80m)
Bedroom 2
10'6" x 8'8" (3.20m x 2.64m)
Bedroom 3
10'6" x 8'2" (3.20m x 2.50m)
Garden Office / Studio
15'6" x 12'0" (4.72m x 3.66m)
IMPORTANT NOTE TO POTENTIAL PURCHASERS:
We endeavour to make our particulars accurate and reliable, however, they do not constitute or form part of an offer or any contract and none is to be relied upon as statements of representation or fact. The services, systems and appliances listed in this specification have not been tested by us and no guarantee as to their operating ability or efficiency is given. All photographs and measurements have been taken as a guide only and are not precise. Floor plans where included are not to scale and accuracy is not guaranteed. If you require clarification or further information on any points, please contact us, especially if you are travelling some distance to view. Fixtures and fittings other than those mentioned are to be agreed with the seller.
Colleys Lane, Willaston, Cheshire, CW5
Additional Information
-
Property refNAN250226
-
EPCC
-
TenureFreehold
-
Council TaxE
-
Local authorityCheshire East County Council
Similar properties for sale by Reeds Rains Nantwich
The pin shows the exact address of the property
Energy Efficiency Rating
Very energy efficient - lower running costs
Not energy efficient - higher running costs
Current
72Potential
82CO2 Rating
Very energy efficient - lower running costs
Not energy efficient - higher running costs
